Prywatne
Rodzaj: Działki budowlane
Powierzchnia: 2 700 m²
Cena za m²: 92.59 zł/m²
Opis
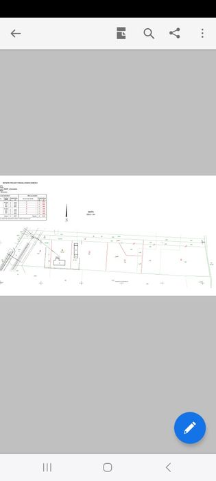
Sprzedam 2 działki budowlane we wsi Wąsosz gm Konopiska. Niedaleko jest wjazd na autostradę ok3 km ,do Częstochowy jest ok 12 km.Do wsi dojeżdża komunikacja miejska linii 33.
Dzialki są w pewnym oddaleniu od drogi. Dojazd drogą wewnętrzną o szerokości 5 m.wraz z działkami sprzedaż udziału w drodze, współwłasność.
Media ,prąd i woda na działce obok. Kanalizacja i gaz w ulicy.
Działki o szerokości ok33 m.
1 działka ma wielkość 1507 m,a druga 1200 m,graniczy z lasem.Na działki wydano WZ.Dzialki sprzed. Dzialki częściowo zalesione ,mają swój urok. Oddalenie od ulicy powoduję że jest klimatycznie .Polecam.tel. 88*******82
Dzialki są w pewnym oddaleniu od drogi. Dojazd drogą wewnętrzną o szerokości 5 m.wraz z działkami sprzedaż udziału w drodze, współwłasność.
Media ,prąd i woda na działce obok. Kanalizacja i gaz w ulicy.
Działki o szerokości ok33 m.
1 działka ma wielkość 1507 m,a druga 1200 m,graniczy z lasem.Na działki wydano WZ.Dzialki sprzed. Dzialki częściowo zalesione ,mają swój urok. Oddalenie od ulicy powoduję że jest klimatycznie .Polecam.tel. 88*******82
ID: 1028194080
xxx xxx xxx
Dodane 23 września 2025
Sprzedam ładne działki budowlane Wąsosz
250 000 zł
do negocjacji
Lokalizacja
Wąsosz
Śląskie