Prywatne
Rodzaj: Działki budowlane
Powierzchnia: 1 127 m²
Cena za m²: 133 zł/m²
Opis
Na sprzedaż działka budowlana o łącznej powierzchni 11,27 arów, bezpośrednio od właściciela.
Działka położona w spokojnej i malowniczej okolicy w Libiążu w dzielnicy Kosówki, przy ul. Miodowej, idealna dla osób ceniących sobie bliskość natury oraz komfort życia z dala od miejskiego zgiełku.
Szczegóły:
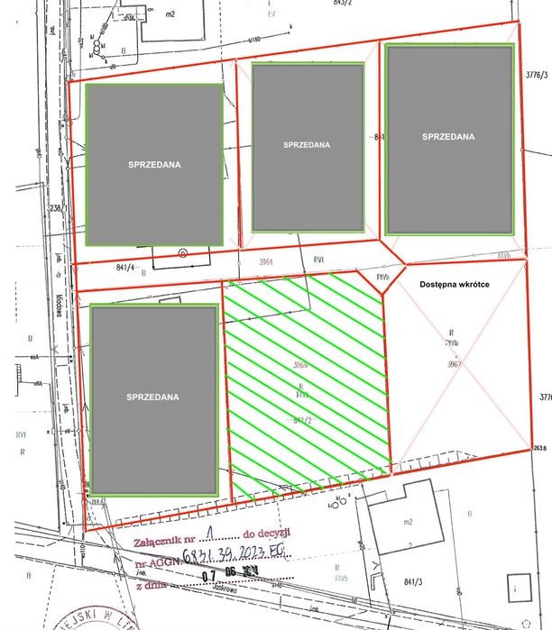
• Działka o numerze: 3966 (zakreślona zielonymi liniami)
• Łączna powierzchnia: 11,27 arów
• Lokalizacja: Libiąż, Kosówki
• Przeznaczenie: budowlane
• Media: prąd, woda, gaz w drodze
• Dojazd: drogą wewnętrzną
• Cena: 149 891 zł (13 300 zł/ar)
Zalety:
• Spokojna i bezpieczna okolica
• Bliskość lasu
• Dogodne położenie w połowie drogi między Krakowem, a aglomeracją śląską
• Idealna dla osób szukających miejsca na wymarzony dom
Zapraszam do kontaktu w celu uzyskania szczegółowych informacji oraz umówienia się na prezentację działki.
Działka położona w spokojnej i malowniczej okolicy w Libiążu w dzielnicy Kosówki, przy ul. Miodowej, idealna dla osób ceniących sobie bliskość natury oraz komfort życia z dala od miejskiego zgiełku.
Szczegóły:
• Działka o numerze: 3966 (zakreślona zielonymi liniami)
• Łączna powierzchnia: 11,27 arów
• Lokalizacja: Libiąż, Kosówki
• Przeznaczenie: budowlane
• Media: prąd, woda, gaz w drodze
• Dojazd: drogą wewnętrzną
• Cena: 149 891 zł (13 300 zł/ar)
Zalety:
• Spokojna i bezpieczna okolica
• Bliskość lasu
• Dogodne położenie w połowie drogi między Krakowem, a aglomeracją śląską
• Idealna dla osób szukających miejsca na wymarzony dom
Zapraszam do kontaktu w celu uzyskania szczegółowych informacji oraz umówienia się na prezentację działki.
ID: 937214560
xxx xxx xxx
Dodane 10 października 2025
Sprzedam działkę w Libiążu (Kosówki) - 11,27 ara
149 891 zł
Lokalizacja
Libiąż
Małopolskie