Prywatne
Opis
Dzień dobry,
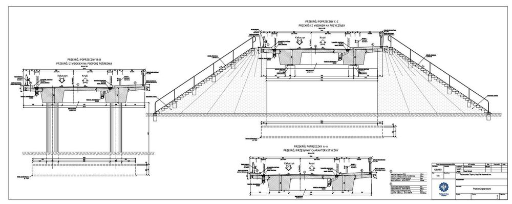
Projektant mostowy, absolwent Politechniki Warszawskiej z ponad 10cio letnim doświadczeniem w branży przyjmie zlecenia wykonania obliczeń statyczno-wytrzymałościowych konstrukcji budowlanych oraz budowlanych rysunków technicznych, w szczególności branży mostowej, a także kompletnych projektów.. Dodatkowo podejmę się wykonania rysunków konstrukcyjnych oraz obliczeń innych obiektów budowlanych:
- żelbetowych,
- stalowych,
- drewnianych.
Rysunki o szczegółowości projektu koncepcyjnego, budowlanego i wykonawczego:
- rysunki ogólne,
- rzuty,
- przekroje,
- rysunki zbrojeniowe,
- rysunki zestawieniowe konstrukcji stalowych.
Zapewniam fachowość, sumienność i terminowość.
Ceny do uzgodnienia po określeniu zakresu projektu.
Zapraszam do kontaktu najlepiej mailowego na adres autocad.projekty13[małpa]gmail.com.
Pozdrawiam.
Projektant mostowy, absolwent Politechniki Warszawskiej z ponad 10cio letnim doświadczeniem w branży przyjmie zlecenia wykonania obliczeń statyczno-wytrzymałościowych konstrukcji budowlanych oraz budowlanych rysunków technicznych, w szczególności branży mostowej, a także kompletnych projektów.. Dodatkowo podejmę się wykonania rysunków konstrukcyjnych oraz obliczeń innych obiektów budowlanych:
- żelbetowych,
- stalowych,
- drewnianych.
Rysunki o szczegółowości projektu koncepcyjnego, budowlanego i wykonawczego:
- rysunki ogólne,
- rzuty,
- przekroje,
- rysunki zbrojeniowe,
- rysunki zestawieniowe konstrukcji stalowych.
Zapewniam fachowość, sumienność i terminowość.
Ceny do uzgodnienia po określeniu zakresu projektu.
Zapraszam do kontaktu najlepiej mailowego na adres autocad.projekty13[małpa]gmail.com.
Pozdrawiam.
ID: 554529660
xxx xxx xxx
Dodane 24 grudnia 2025
Projekty, budownictwo, rysunki AutoCAD, mosty, ob
Lokalizacja