Prywatne
Rodzaj: Działki budowlane
Powierzchnia: 1 532 m²
Cena za m²: 1631.85 zł/m²
Opis
Nieruchomość gruntowa zabudowana budynkiem, położona w Ząbkowicach Śląskich przy ul. Niepodległości 1, na działce ewid. nr 15 o powierzchni 1532 m2.
Teren działki ogrodzony i zagospodarowany, na działce znajduje się budynek usługowy (były Sąd) oraz budynek garażowy.
Nieruchomość zlokalizowana jest w centralnej części miejscowości Ząbkowice Śląskie, w rejonie zabudowy usługowej, handlowej i mieszkaniowej. Bezpośrednie sąsiedztwo nieruchomości to teren stacji PKS i PKP, Urząd Miasta, banki, budynki mieszkalne wielorodzinne oraz sklepy ogólnospożywcze. Działka posiada bezpośredni dostęp do drogi publicznej od ul. Niepodległości oraz od ul. Legnickiej. Budynek znajduje się w Gminnej Ewidencji Zabytków. Ogrodzenie jest wpisane do Rejestru Zabytków.
Przeznaczenie terenu zgodnie z Miejscowym Planem Zagospodarowania Przestrzennego: Tereny zabudowy śródmiejskiej w formie zabudowy wolnostojącej (symbol A2.48MU2)
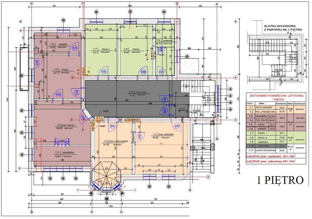
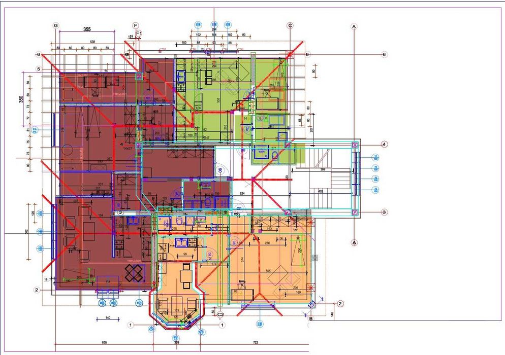
Do nieruchomości dołączam projekt i wizualizację adaptacji budynku na kilka mieszkań.
Dane budynku:
- Powierzchnia zabudowy 274 m2
- Powierzchnia użytkowa bez piwnic 600,70 m2
- Powierzchnia użytkowa piwnic 231,50 m2
- Rok budowy 1905
Nieruchomość sprzedawana jest bez VAT-u.
Teren działki ogrodzony i zagospodarowany, na działce znajduje się budynek usługowy (były Sąd) oraz budynek garażowy.
Nieruchomość zlokalizowana jest w centralnej części miejscowości Ząbkowice Śląskie, w rejonie zabudowy usługowej, handlowej i mieszkaniowej. Bezpośrednie sąsiedztwo nieruchomości to teren stacji PKS i PKP, Urząd Miasta, banki, budynki mieszkalne wielorodzinne oraz sklepy ogólnospożywcze. Działka posiada bezpośredni dostęp do drogi publicznej od ul. Niepodległości oraz od ul. Legnickiej. Budynek znajduje się w Gminnej Ewidencji Zabytków. Ogrodzenie jest wpisane do Rejestru Zabytków.
Przeznaczenie terenu zgodnie z Miejscowym Planem Zagospodarowania Przestrzennego: Tereny zabudowy śródmiejskiej w formie zabudowy wolnostojącej (symbol A2.48MU2)
Do nieruchomości dołączam projekt i wizualizację adaptacji budynku na kilka mieszkań.
Dane budynku:
- Powierzchnia zabudowy 274 m2
- Powierzchnia użytkowa bez piwnic 600,70 m2
- Powierzchnia użytkowa piwnic 231,50 m2
- Rok budowy 1905
Nieruchomość sprzedawana jest bez VAT-u.
ID: 1019434371
xxx xxx xxx
Dodane 01 października 2025
Najlepsza lokalizacja w Ząbkowicach! Działka z budynkiem w centrum.
2 500 000 zł
Lokalizacja
Ząbkowice Śląskie
Dolnośląskie