Prywatne
Forma zajęć: Online
Stawka za godzinę: 130 zł
Opis
Cześć!
Mam na imię Basia i jestem architektką. Specjalizuję się w nauczaniu szybkiej i efektywnej pracy w programie ArchiCAD.
Wykorzystując moje wieloletnie doświadczenie, pomagam nie tylko opanować obsługę programu, ale również doradzam w zakresie projektowania i omawiam kluczowe aspekty techniczne projektowania.
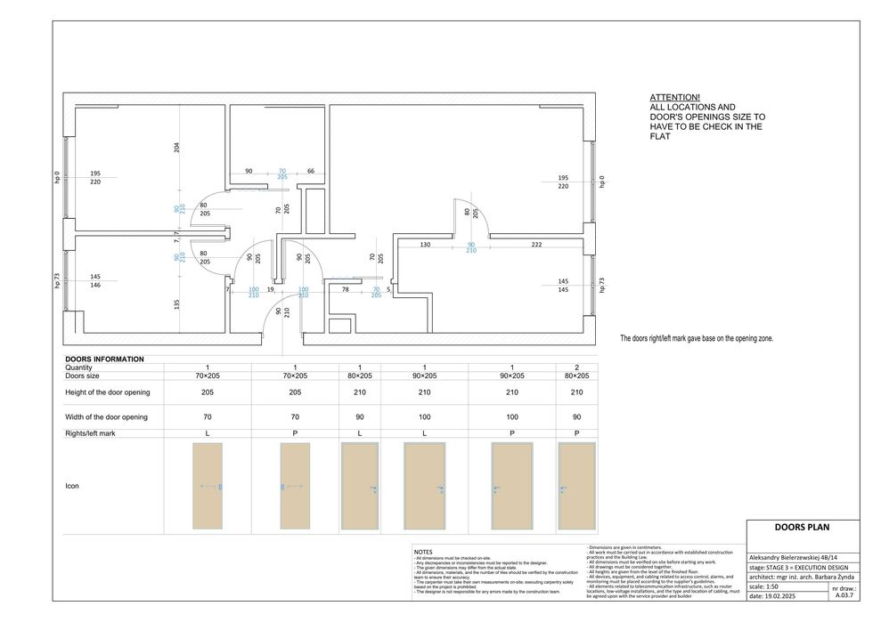
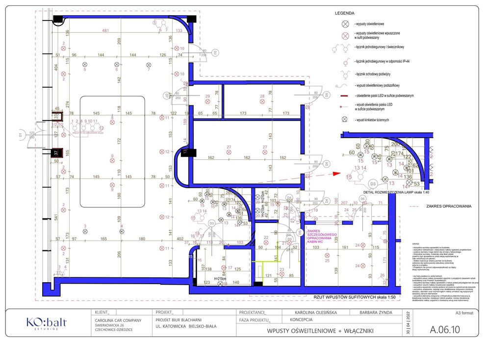
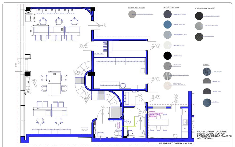
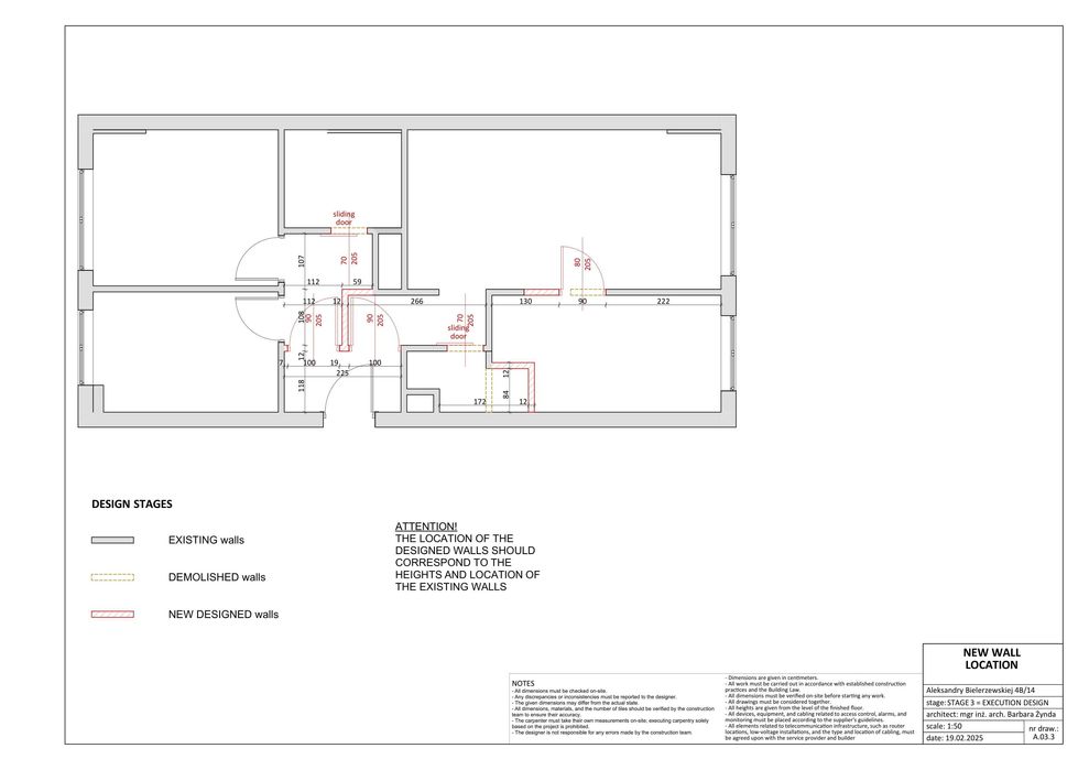
Podczas zajęć uczymy się zarówno tworzenia rysunków 2D, jak i budowania modeli 3D – aż po przygotowanie pełnej dokumentacji wykonawczej. Możesz wybrać jednorazowe spotkanie konsultacyjne lub kompleksowy kurs od podstaw, zakończony certyfikatem.
Na pojedynczych lekcjach możemy wspólnie rozwiązać konkretne problemy, które napotkałeś w pracy. Jeśli dopiero zaczynasz, przeprowadzę Cię krok po kroku przez cały proces projektowy, aż będziesz w stanie samodzielnie opracować pełną dokumentację projektową.
Pełny kurs przygotuje Cię do pracy w zawodzie. Otrzymujesz założenia projektowe oraz przestrzeń, na której będziemy pracować. Wspólnie analizujemy projekt, omawiamy techniczne aspekty i szukamy najlepszych rozwiązań.
Skupiamy się na maksymalnym wykorzystaniu możliwości ArchiCAD-a, aby usprawnić Twoją pracę. Otrzymasz również zadania domowe, które omówimy na kolejnych spotkaniach. Kładziemy nacisk na funkcjonalność, estetykę i zgodność projektów z wymaganiami wykonawczymi. Dodatkowo dostajesz dostęp do bonusowych materiałów.
Jeśli chcesz poznać więcej szczegółów – napisz, a prześlę Ci indywidualną ofertę wraz z darmowymi materiałami.
Mam bogate doświadczenie w prowadzeniu zajęć, dzięki czemu tempo i formę nauki dostosowuję do Twoich potrzeb – niezależnie od poziomu zaawansowania.
Lekcje odbywają się przez Google Meet. Wystawiam faktury.
Napisz wiadomość lub zadzwoń!
Chcesz zweryfikować moją wiedzę?
Zapraszam na moje social media!
IG i TikTok: kurswpigulce
kurswpigulce.pl
Opinie moich kursantów: g.page/r/CQTxruQ7zRf2EBM/
Wycena indywidualna.
Zapraszam do kontaktu telefonicznego.
Mam na imię Basia i jestem architektką. Specjalizuję się w nauczaniu szybkiej i efektywnej pracy w programie ArchiCAD.
Wykorzystując moje wieloletnie doświadczenie, pomagam nie tylko opanować obsługę programu, ale również doradzam w zakresie projektowania i omawiam kluczowe aspekty techniczne projektowania.
Podczas zajęć uczymy się zarówno tworzenia rysunków 2D, jak i budowania modeli 3D – aż po przygotowanie pełnej dokumentacji wykonawczej. Możesz wybrać jednorazowe spotkanie konsultacyjne lub kompleksowy kurs od podstaw, zakończony certyfikatem.
Na pojedynczych lekcjach możemy wspólnie rozwiązać konkretne problemy, które napotkałeś w pracy. Jeśli dopiero zaczynasz, przeprowadzę Cię krok po kroku przez cały proces projektowy, aż będziesz w stanie samodzielnie opracować pełną dokumentację projektową.
Pełny kurs przygotuje Cię do pracy w zawodzie. Otrzymujesz założenia projektowe oraz przestrzeń, na której będziemy pracować. Wspólnie analizujemy projekt, omawiamy techniczne aspekty i szukamy najlepszych rozwiązań.
Skupiamy się na maksymalnym wykorzystaniu możliwości ArchiCAD-a, aby usprawnić Twoją pracę. Otrzymasz również zadania domowe, które omówimy na kolejnych spotkaniach. Kładziemy nacisk na funkcjonalność, estetykę i zgodność projektów z wymaganiami wykonawczymi. Dodatkowo dostajesz dostęp do bonusowych materiałów.
Jeśli chcesz poznać więcej szczegółów – napisz, a prześlę Ci indywidualną ofertę wraz z darmowymi materiałami.
Mam bogate doświadczenie w prowadzeniu zajęć, dzięki czemu tempo i formę nauki dostosowuję do Twoich potrzeb – niezależnie od poziomu zaawansowania.
Lekcje odbywają się przez Google Meet. Wystawiam faktury.
Napisz wiadomość lub zadzwoń!
Chcesz zweryfikować moją wiedzę?
Zapraszam na moje social media!
IG i TikTok: kurswpigulce
kurswpigulce.pl
Opinie moich kursantów: g.page/r/CQTxruQ7zRf2EBM/
Wycena indywidualna.
Zapraszam do kontaktu telefonicznego.
ID: 889570021
xxx xxx xxx
Dodane 08 października 2025
Konsultacje ArchiCAD | Korepetycje ArchiCAD | Kurs ArchiCAD
130 zł
Lokalizacja