Firmowe
Rodzaj: Działki inwestycyjne
Powierzchnia: 2 762 m²
Cena za m²: 5756.7 zł/m²
Opis
Łódź, atrakcyjna działka z WZ budynku zamieszkania zbiorowego (akademik/hotel) - 292 pokoje, z usługami w parterze i parkingiem podziemnym wraz z projektem budowlanym - w trakcie uzyskiwania PNB.
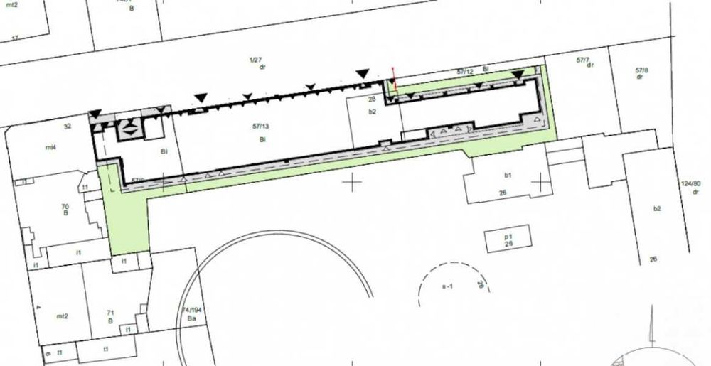
Do sprzedaży bardzo atrakcyjna działka komercyjna w Łodzi w bezpośrednim sąsiedztwem kampusu Politechniki Łódzkiej, w trakcie procedowania pozwolenia na budowę (wniosek z 2022 roku) z warunkami zabudowy dla BUDYNKU ZAMIESZKANIA ZBIOROWEGO (akademika) Z USŁUGAMI (powierzchnia sprzedaży do 1.500 m²) I PARKINGIEM PODZIEMNYM.
Doskonała lokalizacja pozwala na ulokowanie atrakcyjnej inwestycji (akademik) w bezpośrednim sąsiedztwie Politechniki Łódzkiej
Teren inwestycyjny składa się z dwóch działek przylegających do siebie, o powierzchni łącznej 2.762 m², w pierwszej linii zabudowy, z dostępnością do wszystkich mediów.
Nr działek: 57/13; 57/9
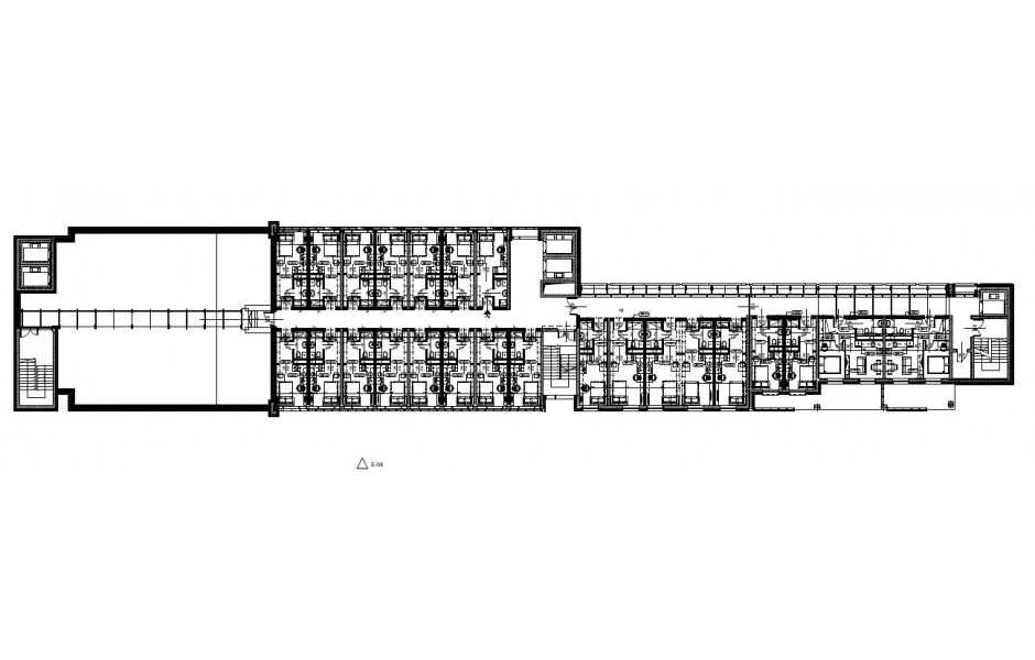
Liczba pokoi: 292
PUU:
- 4.447,5 m² powierzchnia pokoi,
- 996 m² powierzchnia lokali użytkowych
Przeznaczenie terenu: Bi – inne tereny zabudowane
Pełna własność.
Szczegółowe informacje i dokumentacja: na zapytanie.
Cena ofertowa: 15.900.000,00 PLN
Powyższa informacja nie stanowi oferty w rozumieniu przepisów Kodeksu Cywilnego.
Polecamy i Zapraszamy do kontaktu!
Do sprzedaży bardzo atrakcyjna działka komercyjna w Łodzi w bezpośrednim sąsiedztwem kampusu Politechniki Łódzkiej, w trakcie procedowania pozwolenia na budowę (wniosek z 2022 roku) z warunkami zabudowy dla BUDYNKU ZAMIESZKANIA ZBIOROWEGO (akademika) Z USŁUGAMI (powierzchnia sprzedaży do 1.500 m²) I PARKINGIEM PODZIEMNYM.
Doskonała lokalizacja pozwala na ulokowanie atrakcyjnej inwestycji (akademik) w bezpośrednim sąsiedztwie Politechniki Łódzkiej
Teren inwestycyjny składa się z dwóch działek przylegających do siebie, o powierzchni łącznej 2.762 m², w pierwszej linii zabudowy, z dostępnością do wszystkich mediów.
Nr działek: 57/13; 57/9
Liczba pokoi: 292
PUU:
- 4.447,5 m² powierzchnia pokoi,
- 996 m² powierzchnia lokali użytkowych
Przeznaczenie terenu: Bi – inne tereny zabudowane
Pełna własność.
Szczegółowe informacje i dokumentacja: na zapytanie.
Cena ofertowa: 15.900.000,00 PLN
Powyższa informacja nie stanowi oferty w rozumieniu przepisów Kodeksu Cywilnego.
Polecamy i Zapraszamy do kontaktu!
ID: 996421020
Dodane 16 października 2025
Idealna Działka pod Budowę Akademików zaraz obok Politechniki Łódzkiej
15 900 000 zł
Lokalizacja
Łódź, Górna
Łódzkie