Przejdź do głównej części
Czat

Powiadomienia

Dodaj ogłoszenie
Działki na sprzedaż - budowlana, rolna, łąka Łuków i okolice
Działki na sprzedaż - budowlana, rolna, łąka Łuków i okolice
Działki na sprzedaż - budowlana, rolna, łąka Łuków i okolice
Działki na sprzedaż - budowlana, rolna, łąka Łuków i okolice
Działki na sprzedaż - budowlana, rolna, łąka Łuków i okolice
Działki na sprzedaż - budowlana, rolna, łąka Łuków i okolice
Działki na sprzedaż - budowlana, rolna, łąka Łuków i okolice
Działki na sprzedaż - budowlana, rolna, łąka Łuków i okolice
PromujOdśwież

Prywatne

Rodzaj: Działki rolno-budowlane

Powierzchnia: 23 500 m²

Cena za m²: 6.38 zł/m²

Opis

Na sprzedaż 3 działki w Łukowie i okolicach. Zdjęcia dotyczące poszczególnych działek oznaczone numerami. Cena z ogłoszenia dotyczy tylko ostatniej działki. Poniżej opisy i ceny konkretnych działek:

Działka rolna nr 77 - Gręzówka - Kolonia pod Łukowem:
CENA - 200 000 zł
- powierzchnia: 2,3943 ha
- wymiary: 44m x 550m
- nr. ewid działki 77
- media: prąd w odległosci 120m
- R -tereny rolne (klasa IVb, V, VI)

Działka budowlano - rolna nr 4044/3 w Łukowie:
CENA - 235 000 zł
- lokalizacja: ul. Rodzinna (boczna ul. Glinki)
- powierzchnia: 54 ary
- wymiary zaznaczone na zdjęciu ze wskzaaniem 4044/3
- media w drodze: prąd, woda, gaz, kanalizacja

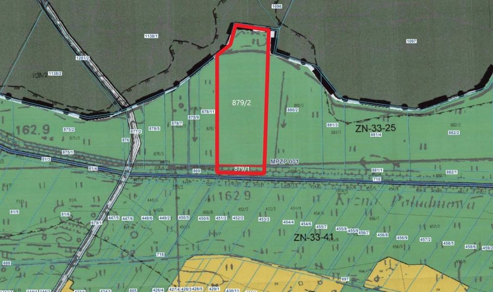
Działka rekreacyjno-rolna nr 879/1 i 879/2 w miejscowości Jata pod Łukowem:
CENA - 150 000
- powierzchnia: 1,97 ha
- wymiary: 80 x 240m
- nr ewid: 879/1 i 879/2
- dojazd: droga polna/leśna
- łąki (klasa III, IV, V)
ID: 1031517024

Skontaktuj się

Facebook connected icon

Maciej

Na OLX od sierpień 2013

Ostatnio online w dniu 11 października 2025

xxx xxx xxx

Dodane 11 października 2025

Działki na sprzedaż - budowlana, rolna, łąka Łuków i okolice

150 000 zł

Lokalizacja

Location

Łuków

Lubelskie

Darmowa aplikacja na Twój telefon