Prywatne
Rodzaj: Działki budowlane
Powierzchnia: 3 002 m²
Cena za m²: 332.78 zł/m²
Opis
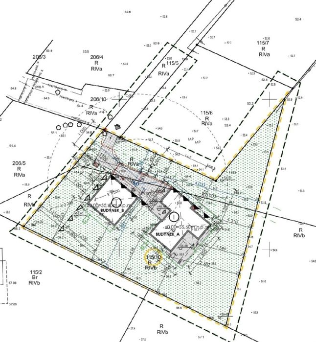
Działka 3002m
Działka ogrodzona.
Współczynnik zabudowy 13%
Wydane warunki zabudowy na dwa domy.
Możliwość podziału na dwie działki tj
1222m pod budynek A
1780m pod budynek B
Pozwolenie z Wód Polskich na studnie.
Możliwość podłączenia pod wodę i kanalizacje na sąsiedniej działce.
Działka ogrodzona.
Współczynnik zabudowy 13%
Wydane warunki zabudowy na dwa domy.
Możliwość podziału na dwie działki tj
1222m pod budynek A
1780m pod budynek B
Pozwolenie z Wód Polskich na studnie.
Możliwość podłączenia pod wodę i kanalizacje na sąsiedniej działce.
ID: 946267180
xxx xxx xxx
Dodane 01 lutego 2026
Działka Siadło Dolne warunki zabudowy
999 000 zł
do negocjacji
Lokalizacja
Siadło Dolne
Zachodniopomorskie
