Firmowe
Rodzaj: Działki budowlane
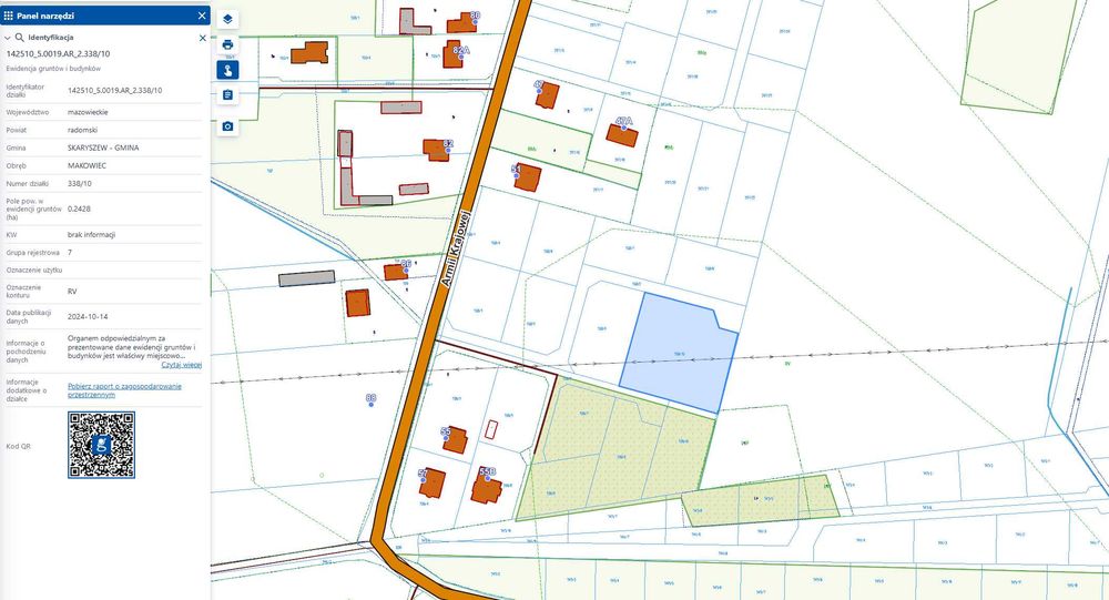
Powierzchnia: 2 428 m²
Cena za m²: 98.85 zł/m²
Opis
Witam mam na sprzedaż działkę w miejscowości makowiec
działka budowlana z mediami
powierzchnia 2428m2
numer działki
338/10
Przy ulicy armii krajowej
Bardzo dobra lokalizacja blisko radomia
sporo nowych domów powstaje w pobliżu oraz na działkach obok
zainteresowanych proszę o kontakt telefoniczny.
działka budowlana z mediami
powierzchnia 2428m2
numer działki
338/10
Przy ulicy armii krajowej
Bardzo dobra lokalizacja blisko radomia
sporo nowych domów powstaje w pobliżu oraz na działkach obok
zainteresowanych proszę o kontakt telefoniczny.
ID: 952113082
xxx xxx xxx

