Firmowe
Rodzaj: Działki budowlane
Powierzchnia: 1 501 m²
Cena za m²: 123.25 zł/m²
Opis
Na sprzedaż atrakcyjna działka znajdująca się w Boleścinie, nieopodal miasta Świdnica. W otoczeniu działki z zabudową jednorodzinną. Świetne połączenie ze Świdnicą oraz Dzierżoniowem. W pobliżu sklep oraz tereny rekreacyjne.
Działka nr 238/8 o powierzchni 1501 m2, ogrodzona. Do działki prowadzi droga utwardzona (udział w drodze 238/7 i 237/7), łącząca się z drogą asfaltową.
Prąd – skrzynka na granicy działki.
Woda – w niedalekiej okolicy, celem podłączenia trzeba wystąpić o warunki przyłączenia do sieci wodociągowej.
Na tym obszarze nie ma kanalizacji, więc konieczne będzie wykonanie przydomowej oczyszczalni do odprowadzania ścieków.
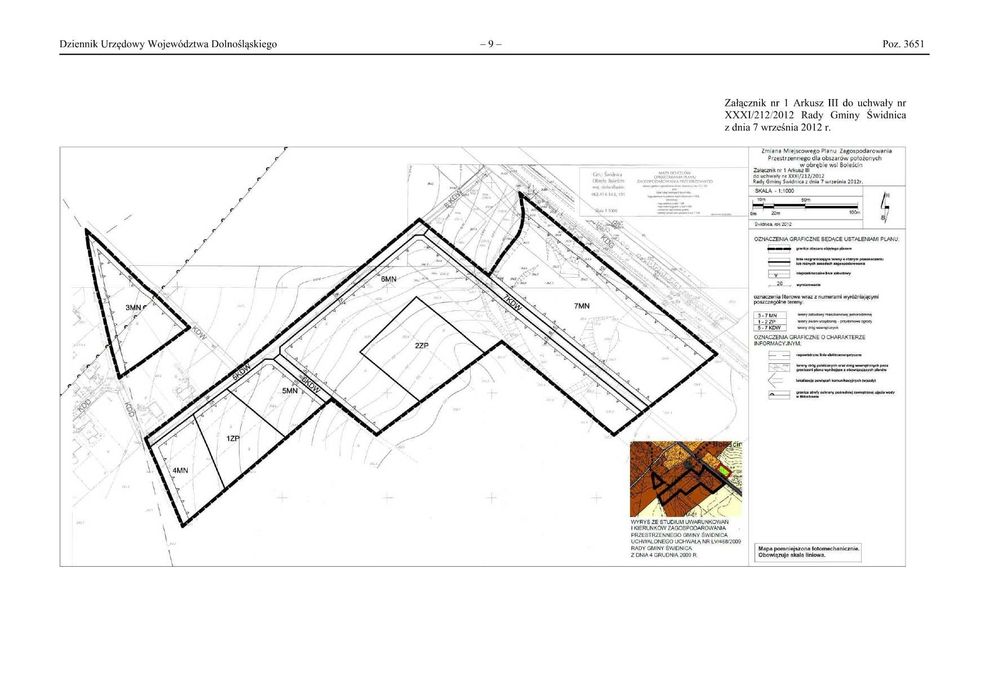
W miejscowym planie zagospodarowania (Uchwała nr XXXI/212/2012 Rady Gminy Świdnica z dnia 7 września 2012 r), działka znajduje się na terenie 7MN, czyli zabudowy mieszkaniowej jednorodzinnej.
Działka nr 238/8 o powierzchni 1501 m2, ogrodzona. Do działki prowadzi droga utwardzona (udział w drodze 238/7 i 237/7), łącząca się z drogą asfaltową.
Prąd – skrzynka na granicy działki.
Woda – w niedalekiej okolicy, celem podłączenia trzeba wystąpić o warunki przyłączenia do sieci wodociągowej.
Na tym obszarze nie ma kanalizacji, więc konieczne będzie wykonanie przydomowej oczyszczalni do odprowadzania ścieków.
W miejscowym planie zagospodarowania (Uchwała nr XXXI/212/2012 Rady Gminy Świdnica z dnia 7 września 2012 r), działka znajduje się na terenie 7MN, czyli zabudowy mieszkaniowej jednorodzinnej.
ID: 1014278485
xxx xxx xxx
Dodane 22 stycznia 2026
Działka budowlana 15 ar Boleścin
185 000 zł
Lokalizacja
Boleścin
Dolnośląskie