Prywatne
Rodzaj: Działki budowlane
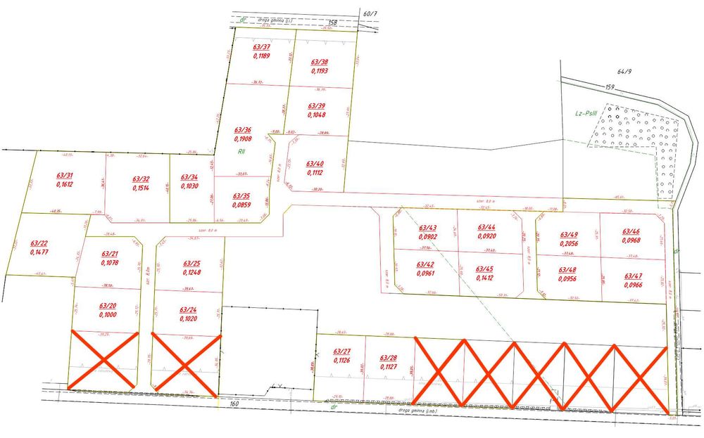
Powierzchnia: 1 126 m²
Cena za m²: 115.45 zł/m²
Opis
Na sprzedaż działka o powierzchni 11,26 ara (1126m²) przy drodze gminnej - asfaltowej w miejscowości Borowina Sitaniecka.
Inne działki w tej lokalizacji również są na sprzedaż - w pozostałych ogłoszeniach.
Do działki posiadam wydane prawomocne Warunki Zabudowy.
Prąd i gaz.
Woda we własnym zakresie - studnia.
Kanalizacja - planowana - póki co szambo lub oczyszczalnia.
Działka przeznaczona są pod budowę budynku mieszkalnego na podstawie warunków zabudowy lub zgodnie z powstającym Planem Ogólnym - zabudowa mieszkaniowa.
Wydane warunki umożliwiają budowę:
budynku mieszkalnego do 3 kondygnacji, z podpiwniczeniem lub bez, garażem lub bez o powierzchni od 80 do 250m², dodatkowo można postawić dodatkowy budynek gospodarczy, itp.
W sąsiedztwie szkoła podstawowa z boiskiem i siłownia plenerowa. Przystanek autobusowy przy szkole. Sklepy spożywcze na trasie Zamość - Borowina Sitaniecka - bezpośrednio przy drodze.
Cicha i spokojna okolica.
Pinezka Google Maps do lokalizacji działek:
goo.gl/maps/At8wcj798XnSiA8U8
Sprzedaż bezpośrednia, możliwość negocjacji cen.
Inne działki w tej lokalizacji również są na sprzedaż - w pozostałych ogłoszeniach.
Do działki posiadam wydane prawomocne Warunki Zabudowy.
Prąd i gaz.
Woda we własnym zakresie - studnia.
Kanalizacja - planowana - póki co szambo lub oczyszczalnia.
Działka przeznaczona są pod budowę budynku mieszkalnego na podstawie warunków zabudowy lub zgodnie z powstającym Planem Ogólnym - zabudowa mieszkaniowa.
Wydane warunki umożliwiają budowę:
budynku mieszkalnego do 3 kondygnacji, z podpiwniczeniem lub bez, garażem lub bez o powierzchni od 80 do 250m², dodatkowo można postawić dodatkowy budynek gospodarczy, itp.
W sąsiedztwie szkoła podstawowa z boiskiem i siłownia plenerowa. Przystanek autobusowy przy szkole. Sklepy spożywcze na trasie Zamość - Borowina Sitaniecka - bezpośrednio przy drodze.
Cicha i spokojna okolica.
Pinezka Google Maps do lokalizacji działek:
goo.gl/maps/At8wcj798XnSiA8U8
Sprzedaż bezpośrednia, możliwość negocjacji cen.
ID: 961009008
xxx xxx xxx
Dodane 29 września 2025
Działka 11a - asfalt - szkoła - sklepy - Zamość - Borowina Sitaniecka
130 000 zł
do negocjacji
Lokalizacja
Borowina Sitaniecka
Lubelskie