Prywatne
Rodzaj: Działki budowlane
Powierzchnia: 12 822 m²
Cena za m²: 35.1 zł/m²
Opis
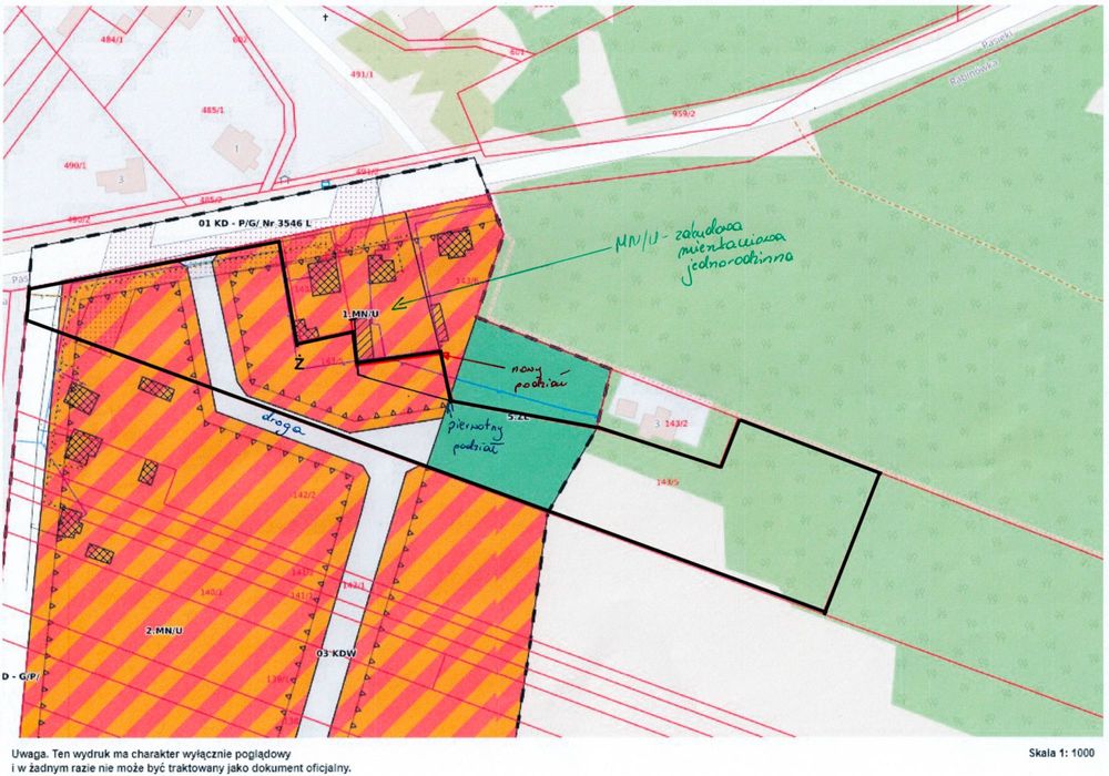
Na sprzedaż atrakcyjna działka o łącznej powierzchni 128,22 ara (12 822 m²), z czego 60 arów przeznaczone jest pod zabudowę mieszkaniową jednorodzinną, a pozostałe 68 arów stanowi las.
Nieruchomość znajduje się w miejscowości Rabinówka, bezpośrednio przy drodze powiatowej Tomaszów Lubelski – Susiec, w spokojnej i zielonej okolicy z zabudową domów jednorodzinnych.
Media dostępne w granicy działki: woda, prąd, gaz, internet.
Zgodnie z obowiązującym miejscowym planem zagospodarowania przestrzennego, część budowlana działki umożliwia wydzielenie nawet do 5 działek budowlanych pod zabudowę jednorodzinną (przykładowy podział załączony na mapie).
Atuty nieruchomości:
- duża, ustawna działka z potencjałem inwestycyjnym,
- część budowlana + własny las,
- dostęp do wszystkich podstawowych mediów,
- dogodna lokalizacja przy drodze powiatowej,
- spokojne otoczenie i bliskość natury.
Do ogłoszenia dołączone są:
- mapa z miejscowego planu zagospodarowania przestrzennego,
- propozycja podziału na mniejsze działki budowlane.
Nieruchomość znajduje się w miejscowości Rabinówka, bezpośrednio przy drodze powiatowej Tomaszów Lubelski – Susiec, w spokojnej i zielonej okolicy z zabudową domów jednorodzinnych.
Media dostępne w granicy działki: woda, prąd, gaz, internet.
Zgodnie z obowiązującym miejscowym planem zagospodarowania przestrzennego, część budowlana działki umożliwia wydzielenie nawet do 5 działek budowlanych pod zabudowę jednorodzinną (przykładowy podział załączony na mapie).
Atuty nieruchomości:
- duża, ustawna działka z potencjałem inwestycyjnym,
- część budowlana + własny las,
- dostęp do wszystkich podstawowych mediów,
- dogodna lokalizacja przy drodze powiatowej,
- spokojne otoczenie i bliskość natury.
Do ogłoszenia dołączone są:
- mapa z miejscowego planu zagospodarowania przestrzennego,
- propozycja podziału na mniejsze działki budowlane.
ID: 1038782175
xxx xxx xxx
Dodane 20 listopada 2025
Działka 1,28 ha z częścią budowlaną i lasem • Rabinówka
450 000 zł
do negocjacji
Lokalizacja
Rabinówka
Lubelskie