Prywatne
Rodzaj: Działki budowlane
Powierzchnia: 1 200 m²
Cena za m²: 83.33 zł/m²
Opis
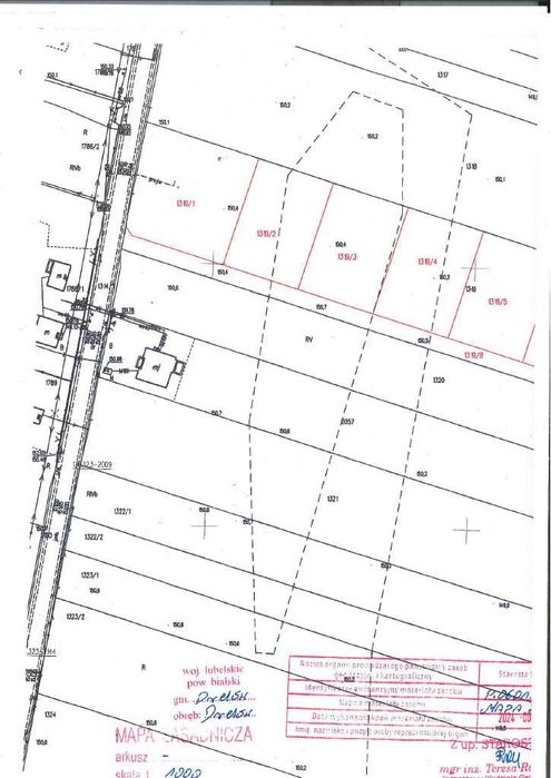
Na sprzedaż działki budowlane położone w samym centrum miejscowości Drelów, powiat bialski.
Idealne miejsce pod budowę domu jednorodzinnego lub jako inwestycja.
Powierzchnia każdej działki to około 12 arów.
Wymiary działek to ok. 50mx24m
Media dostępne w drodze: woda i prąd, światłowód
Wszystkie niezbędne pozwolenia zostały już uzyskane.
Okolica spokojna, a jednocześnie blisko centrum wsi – szkoła, sklepy, kościół i przystanek w pobliżu.
Działki gotowe do zakupu – bez zbędnych formalności.
Cena do uzgodnienia – kontakt telefoniczny lub przez OLX.
Możliwość obejrzenia mapki i dokumentacji na miejscu.
Idealne miejsce pod budowę domu jednorodzinnego lub jako inwestycja.
Powierzchnia każdej działki to około 12 arów.
Wymiary działek to ok. 50mx24m
Media dostępne w drodze: woda i prąd, światłowód
Wszystkie niezbędne pozwolenia zostały już uzyskane.
Okolica spokojna, a jednocześnie blisko centrum wsi – szkoła, sklepy, kościół i przystanek w pobliżu.
Działki gotowe do zakupu – bez zbędnych formalności.
Cena do uzgodnienia – kontakt telefoniczny lub przez OLX.
Możliwość obejrzenia mapki i dokumentacji na miejscu.
ID: 999385949
xxx xxx xxx
Dodane 03 października 2025
Dziaki budowlane Drelów
99 999 zł
Lokalizacja
Drelów
Lubelskie