Firmowe
Stan: Nowe
Opis
Domek drewniany letniskowy/całoroczny MOZAMBIK z poddaszem użytkowym.
Drewno jest suszone komorowo, strugane czterostronnie, łączone na długości na pióro-wpust oraz na połączenia węgłowe w narożnikach i miejscach krzyżowania się ścian.
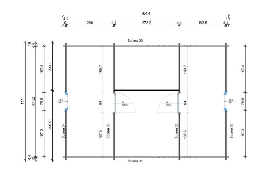
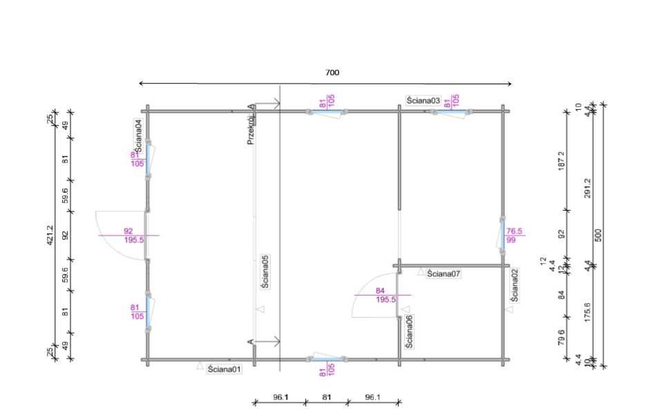
Zewnętrzne wymiary domku razem z wypustami wynoszą 500×700 cm (wypusty to elementy wystające po 10 cm poza ścianę zewnętrzną domku w wyniku połączenia balików za pomocą zamków węgłowych; wypusty nie są brane pod uwagę przy obliczaniu powierzchni domku).
Powierzchnia użytkowa całego domku wynosi 32,64 m2 na parterze plus 32,64m2 na piętrze.
Konstrukcja ścianach zewnętrznych oraz ścian działowych wykonana została w całości z litego balika 44×138 mm.
Konstrukcję zwieńcza dwuspadowy, symetryczny dach o kącie nachylenia 30 stopni, w całości odeskowany nadbitką drewnianą o grubości 19 mm. Dach dodatkowo należy pokryć papą podkładową z gontem lub blachodachówką.
Wysokość ściany kolankowej na poddaszu wynosi ok 90 cm.
Na piętro prowadzą schody proste z poręczą. Za dopłatą istnieje możliwość wykonania schodów zabiegowych.
Wnętrze domku MOZAMBIK podzielone jest na 6 pomieszczeń. Na parterze znajduje się WC, kuchnia oraz salon. Na piętrze wydzielone zostały dwie sypialnie oraz pokój przechodni z balustradą schodową.
Stolarka drzwiowa i okienna jest standardowym dopełnieniem każdej konstrukcji i jest już wliczona w cenę domku. Okna są szklone podwójne.
Do domku oferujemy pełen pakiet opcji dodatkowych tj.:
montaż, malowanie, pokrycie dachu papą/gontem/blachodachówką, ocieplenie podłogi/ścian/dachu, przygotowanie podłoża z bloczków betonowych, budowa komina, instalacja elektryczna i wodno-kanalizacyjna.
Zapraszamy do kontaktu - Klimatyczne Domki
Drewno jest suszone komorowo, strugane czterostronnie, łączone na długości na pióro-wpust oraz na połączenia węgłowe w narożnikach i miejscach krzyżowania się ścian.
Zewnętrzne wymiary domku razem z wypustami wynoszą 500×700 cm (wypusty to elementy wystające po 10 cm poza ścianę zewnętrzną domku w wyniku połączenia balików za pomocą zamków węgłowych; wypusty nie są brane pod uwagę przy obliczaniu powierzchni domku).
Powierzchnia użytkowa całego domku wynosi 32,64 m2 na parterze plus 32,64m2 na piętrze.
Konstrukcja ścianach zewnętrznych oraz ścian działowych wykonana została w całości z litego balika 44×138 mm.
Konstrukcję zwieńcza dwuspadowy, symetryczny dach o kącie nachylenia 30 stopni, w całości odeskowany nadbitką drewnianą o grubości 19 mm. Dach dodatkowo należy pokryć papą podkładową z gontem lub blachodachówką.
Wysokość ściany kolankowej na poddaszu wynosi ok 90 cm.
Na piętro prowadzą schody proste z poręczą. Za dopłatą istnieje możliwość wykonania schodów zabiegowych.
Wnętrze domku MOZAMBIK podzielone jest na 6 pomieszczeń. Na parterze znajduje się WC, kuchnia oraz salon. Na piętrze wydzielone zostały dwie sypialnie oraz pokój przechodni z balustradą schodową.
Stolarka drzwiowa i okienna jest standardowym dopełnieniem każdej konstrukcji i jest już wliczona w cenę domku. Okna są szklone podwójne.
Do domku oferujemy pełen pakiet opcji dodatkowych tj.:
montaż, malowanie, pokrycie dachu papą/gontem/blachodachówką, ocieplenie podłogi/ścian/dachu, przygotowanie podłoża z bloczków betonowych, budowa komina, instalacja elektryczna i wodno-kanalizacyjna.
Zapraszamy do kontaktu - Klimatyczne Domki
ID: 565836025
xxx xxx xxx
Dodane 06 października 2025
domek letniskowy / całoroczny MOZAMBIK 35 m2
60 000 zł
Lokalizacja