Prywatne
Stawka za godzinę: 50 zł
Opis
Jestem mgr inż. budownictwa z wieloletnim doświadczeniem zawodowym i oferuję kompleksową pomoc w zakresie:
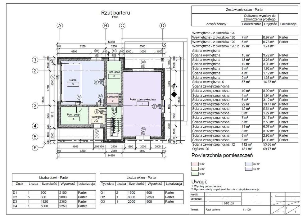
--> Rysunek techniczny – precyzyjnie, zgodnie ze standardami branżowymi
--> Projekty AutoCAD – szybkie i profesjonalne opracowania
--> Projekty Revit – od koncepcji po szczegółowe modele BIM
--> Obliczenia inżynierskie – solidne, sprawdzone i gotowe do użycia
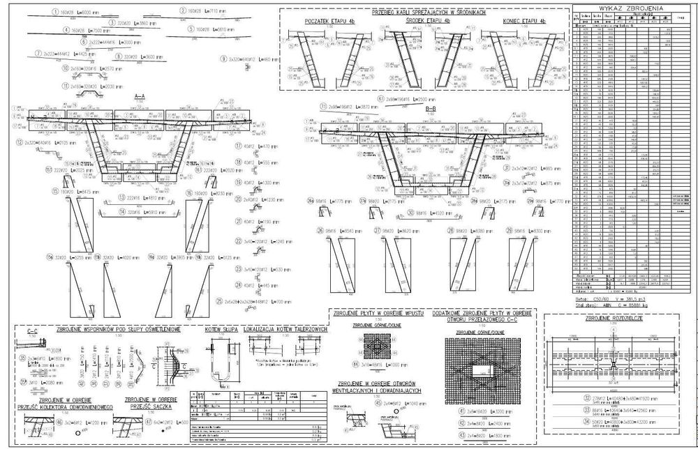
--> Rysunki zbrojeniowe - 4 lata doświadczenia w konstrukcjach żelbetowych
--> Konstrukcje stalowe - 2 lata doświadczenia w Wytwórni
--> Wizualizacje wnętrz – realistyczne, estetyczne i efektowne
--> Korepetycje z inżynierii lądowej – skuteczna nauka i praktyczne wskazówki
Dlaczego warto?
- Praktyczne doświadczenie i wiedza poparta wieloletnią pracą w branży
- Indywidualne podejście do każdego projektu
- Profesjonalizm i terminowość
Zapraszam do kontaktu w wiadomości prywatnej lub bezpośrednio na: olxrysunki(małpa)gmail.com
--> Rysunek techniczny – precyzyjnie, zgodnie ze standardami branżowymi
--> Projekty AutoCAD – szybkie i profesjonalne opracowania
--> Projekty Revit – od koncepcji po szczegółowe modele BIM
--> Obliczenia inżynierskie – solidne, sprawdzone i gotowe do użycia
--> Rysunki zbrojeniowe - 4 lata doświadczenia w konstrukcjach żelbetowych
--> Konstrukcje stalowe - 2 lata doświadczenia w Wytwórni
--> Wizualizacje wnętrz – realistyczne, estetyczne i efektowne
--> Korepetycje z inżynierii lądowej – skuteczna nauka i praktyczne wskazówki
Dlaczego warto?
- Praktyczne doświadczenie i wiedza poparta wieloletnią pracą w branży
- Indywidualne podejście do każdego projektu
- Profesjonalizm i terminowość
Zapraszam do kontaktu w wiadomości prywatnej lub bezpośrednio na: olxrysunki(małpa)gmail.com
ID: 1030234462
xxx xxx xxx
Dodane 04 października 2025
AutoCad | Revit | Projekty Inżynierskie | Budownictwo | Projekt studia
50 zł
Lokalizacja