Firmowe
Stan: Używane
Opis
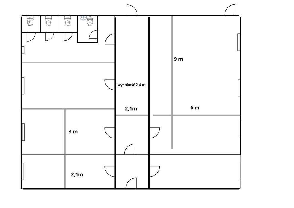
SPRZEDAM ZESTAW KONTENERÓW – UKŁAD 8 MODUŁÓW (schemat na zdjęciu)
Oferuję kompleks kontenerowy złożony z 8 modułów (kontenerów), tworzących funkcjonalny obiekt o powierzchni ok. 133 m², zgodnie z załączonym schematem.
To gotowe rozwiązanie, które możesz wykorzystać jako biura, zaplecze socjalne, kuchnię, łazienki, mieszkania pracownicze lub magazyn – dostępne od zaraz.
Cena 13 000 zł dotyczy jednego modułu / kontenera - otwartego (kontener w wersji modułowej – przystosowany do łączenia w większe obiekty pomieszczenia.
Posiada usuniętą jedną (lub dwie) ściany boczne, dzięki czemu po zestawieniu z innym modułem tworzy przestronne pomieszczenie bez podziału ścianą).
Cena za kontener z kompletem ścian - zamknięty - jest wyższa
Cały zestaw (8 kontenerów) można nabyć w komplecie lub częściowo – w zależności od potrzeb.
PARAMETRY TECHNICZNE
stalowa konstrukcja, ściany grubości 180 mm
izolacja wełną mineralną (klasa EI30)
instalacja elektryczna i oświetlenie
ogrzewanie gazowe i elektryczne
pełne wyposażenie sanitarne (3 toalety, 1 kuchnia)
nowoczesne wykończenie płytami i szkłem
wysokość pomieszczeń 2,4 m
ZASTOSOWANIA
Idealne jako:
przedszkole lub szkoła
biura lub zaplecze budowy
mieszkania pracownicze
strefy socjalne, kuchnie, sanitariaty
magazyn, showroom lub domki letniskowe
ZALETY
najniższa cena na rynku
gotowe do użytku od zaraz
możliwość dowolnego łączenia modułów
transport – cena do uzgodnienia
DODATKOWO DOSTĘPNE
Posiadam również dwa samodzielne kontenery o wymiarach 6x3 m, w bardzo dobrym stanie technicznym – idealne do natychmiastowego wykorzystania jako biura, punkty handlowe lub zaplecze budowy.
Cena tych kontenerów jest wyższa ze względu na ich niezależność i wyposażenie.
LOKALIZACJA: Racibórz, woj. śląskie
KONTAKT: +4*8*6*0*0*4*8*3*1*2*7
To inwestycja, która od pierwszego dnia pracuje na Ciebie.
Nie zwlekaj – zestawy i pojedyncze kontenery w takiej konfiguracji szybko znajdują nowych właścicieli.
Oferuję kompleks kontenerowy złożony z 8 modułów (kontenerów), tworzących funkcjonalny obiekt o powierzchni ok. 133 m², zgodnie z załączonym schematem.
To gotowe rozwiązanie, które możesz wykorzystać jako biura, zaplecze socjalne, kuchnię, łazienki, mieszkania pracownicze lub magazyn – dostępne od zaraz.
Cena 13 000 zł dotyczy jednego modułu / kontenera - otwartego (kontener w wersji modułowej – przystosowany do łączenia w większe obiekty pomieszczenia.
Posiada usuniętą jedną (lub dwie) ściany boczne, dzięki czemu po zestawieniu z innym modułem tworzy przestronne pomieszczenie bez podziału ścianą).
Cena za kontener z kompletem ścian - zamknięty - jest wyższa
Cały zestaw (8 kontenerów) można nabyć w komplecie lub częściowo – w zależności od potrzeb.
PARAMETRY TECHNICZNE
stalowa konstrukcja, ściany grubości 180 mm
izolacja wełną mineralną (klasa EI30)
instalacja elektryczna i oświetlenie
ogrzewanie gazowe i elektryczne
pełne wyposażenie sanitarne (3 toalety, 1 kuchnia)
nowoczesne wykończenie płytami i szkłem
wysokość pomieszczeń 2,4 m
ZASTOSOWANIA
Idealne jako:
przedszkole lub szkoła
biura lub zaplecze budowy
mieszkania pracownicze
strefy socjalne, kuchnie, sanitariaty
magazyn, showroom lub domki letniskowe
ZALETY
najniższa cena na rynku
gotowe do użytku od zaraz
możliwość dowolnego łączenia modułów
transport – cena do uzgodnienia
DODATKOWO DOSTĘPNE
Posiadam również dwa samodzielne kontenery o wymiarach 6x3 m, w bardzo dobrym stanie technicznym – idealne do natychmiastowego wykorzystania jako biura, punkty handlowe lub zaplecze budowy.
Cena tych kontenerów jest wyższa ze względu na ich niezależność i wyposażenie.
LOKALIZACJA: Racibórz, woj. śląskie
KONTAKT: +4*8*6*0*0*4*8*3*1*2*7
To inwestycja, która od pierwszego dnia pracuje na Ciebie.
Nie zwlekaj – zestawy i pojedyncze kontenery w takiej konfiguracji szybko znajdują nowych właścicieli.
ID: 1028243432
xxx xxx xxx
Dodane 31 października 2025
Zestaw 10 kontenerów – gotowe biura 158 m², Racibórz
13 000 zł
do negocjacji
Lokalizacja