Prywatne
Stan: Używane
Opis
Oferuję do sprzedaży wyposażony, przytulny, całoroczny domek mobilny 31 m² +
antresola 13,5 m², wybudowany w 2024 roku. Domek został zakupiony w stanie surowym otwartym i
wykończony własnoręcznie z wysokiej jakości materiałów dla własnych potrzeb – idealny
na miejsce do zamieszkania lub rekreacji.
Dane techniczne:
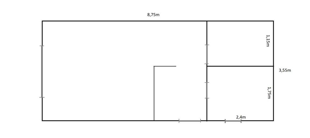
Wymiary zewnętrzne (dł/szer/wys): 8,75x3,55x4,15
Konstrukcja drewniana, solidna i trwała.
Ocieplenie ścian, dachu i podłogi wełną mineralną 15 cm, zapewniającą komfort
termiczny przez cały rok.
Okna 3-szybowe,
Podłogi w salonie i antresoli – panele laminowane; ściany – płyty k/g z gładzią, w
łazience – panele winylowe.
Klimatyzacja z funkcją grzania i chłodzenia.
Wnętrze i wyposażenie:
Salon z aneksem kuchennym – funkcjonalne i przestronne.
Łazienka – prysznic, WC, umywalka z szafką, grzejnik elektryczny.
Antresola 13,5m2 (4,5x3m)– idealne miejsce na sypialnie.
W zestawie pozostaje pełne wyposażenie w tym duża szafa w zabudowie, kuchnia, meble w salonie i sprzęty AGD (w skład nie wchodzi łóżko i TV itd.)
Stan i użytkowanie:
Domek użytkowany przez rok, całorocznie, w bardzo dobrym stanie, z drobnymi
śladami normalnego użytkowania.
Wszystkie prace wykończeniowe wykonane starannie osobiście, z dbałością o trwałość
i funkcjonalność.
Transport i lokalizacja:
Domek znajduje się w Szczerbicach, woj. śląskie.
Możliwość obejrzenia po wcześniejszym umówieniu.
Transport możliwy lawetą (domek przewożony był transportem niskopodłogowym 12 m i ładowany HDS-em). Możemy pomóc w zorganizowaniu transportu.
Sprzedaż prywatna – bez faktury VAT.
Domek gotowy do zamieszkania – solidny, ciepły i funkcjonalny, idealny
zarówno na działkę rekreacyjną, jak i jako całoroczne mieszkanie.
antresola 13,5 m², wybudowany w 2024 roku. Domek został zakupiony w stanie surowym otwartym i
wykończony własnoręcznie z wysokiej jakości materiałów dla własnych potrzeb – idealny
na miejsce do zamieszkania lub rekreacji.
Dane techniczne:
Wymiary zewnętrzne (dł/szer/wys): 8,75x3,55x4,15
Konstrukcja drewniana, solidna i trwała.
Ocieplenie ścian, dachu i podłogi wełną mineralną 15 cm, zapewniającą komfort
termiczny przez cały rok.
Okna 3-szybowe,
Podłogi w salonie i antresoli – panele laminowane; ściany – płyty k/g z gładzią, w
łazience – panele winylowe.
Klimatyzacja z funkcją grzania i chłodzenia.
Wnętrze i wyposażenie:
Salon z aneksem kuchennym – funkcjonalne i przestronne.
Łazienka – prysznic, WC, umywalka z szafką, grzejnik elektryczny.
Antresola 13,5m2 (4,5x3m)– idealne miejsce na sypialnie.
W zestawie pozostaje pełne wyposażenie w tym duża szafa w zabudowie, kuchnia, meble w salonie i sprzęty AGD (w skład nie wchodzi łóżko i TV itd.)
Stan i użytkowanie:
Domek użytkowany przez rok, całorocznie, w bardzo dobrym stanie, z drobnymi
śladami normalnego użytkowania.
Wszystkie prace wykończeniowe wykonane starannie osobiście, z dbałością o trwałość
i funkcjonalność.
Transport i lokalizacja:
Domek znajduje się w Szczerbicach, woj. śląskie.
Możliwość obejrzenia po wcześniejszym umówieniu.
Transport możliwy lawetą (domek przewożony był transportem niskopodłogowym 12 m i ładowany HDS-em). Możemy pomóc w zorganizowaniu transportu.
Sprzedaż prywatna – bez faktury VAT.
Domek gotowy do zamieszkania – solidny, ciepły i funkcjonalny, idealny
zarówno na działkę rekreacyjną, jak i jako całoroczne mieszkanie.
ID: 1033517897
xxx xxx xxx
Dodane 23 lutego 2026
Wyposażony domek mobilny całoroczny 31m2+antresola
149 000 zł
Lokalizacja