Prywatne
Poziom: Parter
Powierzchnia: 100 m²
Przeznaczenie lokalu: Usługowe
Opis
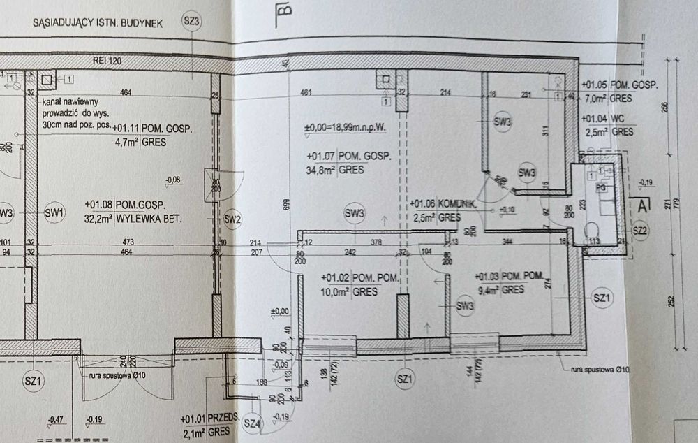
Oferuję do wynajęcia lokal użytkowy o powierzchni 98 m², położony na parterze budynku w okolicy ul. Arkuszowej. Lokal składa się z dużego, otwartego pomieszczenia (ok. 67 m²), dwóch mniejszych pokoi (idealnych na biuro lub magazyn) oraz zaplecza socjalnego z aneksem kuchennym, łazienką i toaletą. Lokal jest wykończony pod standard mieszkaniowy. Gresy i płytki we wszystkich pomieszczeniach.  Ściany niedawno malowane. Oświetlenie z lamp LED. 
Wejście od frontu przez szerokie, podwójne drzwi z witryną sklepową (ok. 2 m szerokości), umożliwiające łatwy wjazd i wniesienie sprzętu. Na terenie obiektu znajduje się duży parking na kilka samochodów.
Lokal wyposażony w ogrzewanie gazowe, prąd, wodę, niezależne liczniki. Dostęp 24/7, bez ograniczeń. Doskonała lokalizacja z dobrym dojazdem z głównej ulicy i możliwością umieszczenia reklamy od strony ul. Arkuszowej.
Lokal przeznaczony wyłącznie na działalność gospodarczą (biuro, magazyn, usługi, pracownia itp.). Nie wynajmuję na cele mieszkaniowe ani bary, puby itp.. (catering wysyłkowy i produkcja ok).
Więcej zdjęć wkrótce.
Widoczne słupki blokujące wjazd są w trakcie demontażu.
Najem w ramach umowy cywilnej bez VAT.
Cena 4500zł + opłaty licznikowe (prąd, woda, gaz). Umowa na odbiór odpadów we własnym zakresie.
Oferta bezpośrednia bez pośrednika.
Lokal dostępny od 10.11.2025.
Wejście od frontu przez szerokie, podwójne drzwi z witryną sklepową (ok. 2 m szerokości), umożliwiające łatwy wjazd i wniesienie sprzętu. Na terenie obiektu znajduje się duży parking na kilka samochodów.
Lokal wyposażony w ogrzewanie gazowe, prąd, wodę, niezależne liczniki. Dostęp 24/7, bez ograniczeń. Doskonała lokalizacja z dobrym dojazdem z głównej ulicy i możliwością umieszczenia reklamy od strony ul. Arkuszowej.
Lokal przeznaczony wyłącznie na działalność gospodarczą (biuro, magazyn, usługi, pracownia itp.). Nie wynajmuję na cele mieszkaniowe ani bary, puby itp.. (catering wysyłkowy i produkcja ok).
Więcej zdjęć wkrótce.
Widoczne słupki blokujące wjazd są w trakcie demontażu.
Najem w ramach umowy cywilnej bez VAT.
Cena 4500zł + opłaty licznikowe (prąd, woda, gaz). Umowa na odbiór odpadów we własnym zakresie.
Oferta bezpośrednia bez pośrednika.
Lokal dostępny od 10.11.2025.
ID: 1035533197
xxx xxx xxx
Dodane 30 października 2025
Wynajmę lokal użytkowy 98m2 Warszawa Radiowo - parking 24/7
4 500 zł
Lokalizacja
Mościska
Mazowieckie