Przejdź do głównej części
Czat

Powiadomienia

Twoje konto

Dodaj ogłoszenie
Wynajmę halę magazynowo/produkcyjną Racibórz-Brzezie
Wynajmę halę magazynowo/produkcyjną Racibórz-Brzezie
Wynajmę halę magazynowo/produkcyjną Racibórz-Brzezie
Wynajmę halę magazynowo/produkcyjną Racibórz-Brzezie
Wynajmę halę magazynowo/produkcyjną Racibórz-Brzezie
Wynajmę halę magazynowo/produkcyjną Racibórz-Brzezie
Wynajmę halę magazynowo/produkcyjną Racibórz-Brzezie
Wynajmę halę magazynowo/produkcyjną Racibórz-Brzezie
PromujOdśwież

Firmowe

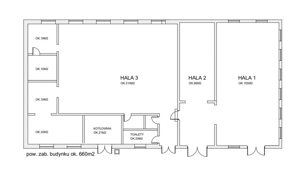
Powierzchnia: 660 m²

Opis

Wynajmę budynek przeznaczony pod działalność produkcyjną/ magazynową/ gospodarczą o powierzchni ok.660m2, kubatura 3932 m3 zlokalizowany na działce o pow. 2442m2.

Budynek mieści się na terenie przemysłowym przy ul. Zakładowej 2, Racibórz-Brzezie. Składa się z dwóch części. Pierwsza część, ogrzewana, z podziałem na dwie hale o pow. ok. 86 i 155m2, wys. 4,30m i 5,20m każda z bramą wjazdową. Ściany murowane, strop betonowy na konstrukcji stalowej. Druga część - hala o pow. ok.210m2, wys. 6,10m jest nieogrzewana, wysoka, ściany z cegły, dach- deski kryte papą na dźwigarach stalowych.

Przy dużej hali znajduje się węzeł sanitarny oraz pomieszczenia pomocniczo-magazynowe. Dookoła hali teren utwardzony z placem manewrowym, dojazd drogą wewnętrzną na prawie nieodpłatnej służebności gruntowej przejazdu i przechodu.
ID: 1054912541

Skontaktuj się

PG GROUP

Na OLX od listopad 2016

Ostatnio online w dniu 16 lutego 2026

xxx xxx xxx

Dodane 13 lutego 2026

Wynajmę halę magazynowo/produkcyjną Racibórz-Brzezie

10 000 zł

do negocjacji

Lokalizacja

Location

Racibórz

Śląskie

Darmowa aplikacja na Twój telefon