Prywatne
Poziom: Parter
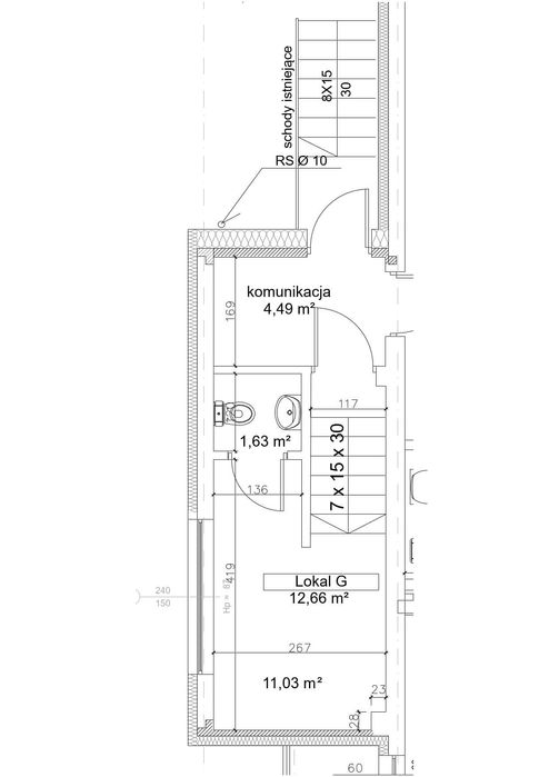
Powierzchnia: 12,66 m²
Przeznaczenie lokalu: Biurowe
Opis
Do wynajęcia od października lokal biurowy o powierzchni 12,66 m² w centrum Łowicza (ul. Nowa 8).
Lokalizacja: Ścisłe centrum miasta.
Dostęp: Niezależne wejście z domofonem i poczekalnią.
Wyposażenie: Własna toaleta z WC i umywalką, ogrzewanie podłogowe.
Opłaty: 750 zł netto miesięcznie - obejmuje już wszystkie media (ogrzewanie, woda, prąd), bez dodatkowych rachunków za media!
Faktura VAT: Możliwość odliczenia VAT.
Lokal wcześniej wynajmowany był przez logopedę i masażystę – jest idealny na małe biuro, gabinet specjalisty lub punkt usługowy. Lokal znajduje się na parterze, z niezależnym wejściem po schodkach (z domofonem), co zapewnia dyskrecję i swobodny dostęp. Przed wejściem do lokalu znajduje się wydzielona poczekalnia, która pozwoli na komfortowe przyjęcie klientów.
Zapraszam do kontaktu!
Lokalizacja: Ścisłe centrum miasta.
Dostęp: Niezależne wejście z domofonem i poczekalnią.
Wyposażenie: Własna toaleta z WC i umywalką, ogrzewanie podłogowe.
Opłaty: 750 zł netto miesięcznie - obejmuje już wszystkie media (ogrzewanie, woda, prąd), bez dodatkowych rachunków za media!
Faktura VAT: Możliwość odliczenia VAT.
Lokal wcześniej wynajmowany był przez logopedę i masażystę – jest idealny na małe biuro, gabinet specjalisty lub punkt usługowy. Lokal znajduje się na parterze, z niezależnym wejściem po schodkach (z domofonem), co zapewnia dyskrecję i swobodny dostęp. Przed wejściem do lokalu znajduje się wydzielona poczekalnia, która pozwoli na komfortowe przyjęcie klientów.
Zapraszam do kontaktu!
ID: 1022787598
xxx xxx xxx
Dodane 26 września 2025
Wynajmę biuro/gabinet w centrum Łowicza, ul. Nowa 8
750 zł
Lokalizacja
Łowicz
Łódzkie