Firmowe
Poziom: Parter
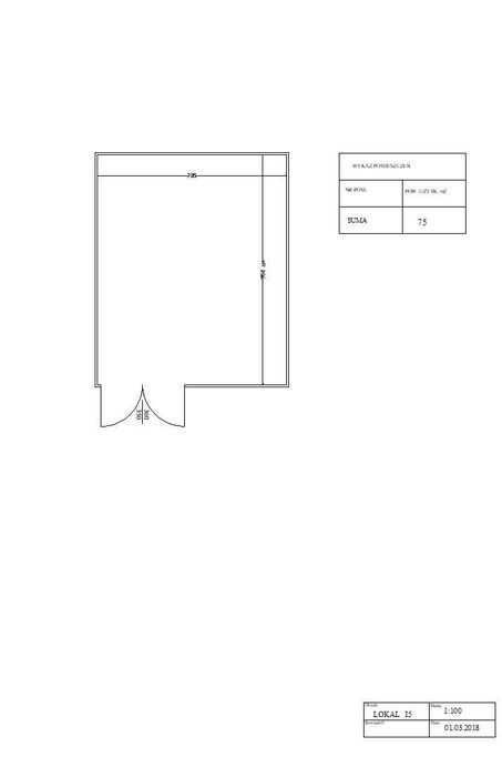
Powierzchnia: 75 m²
Przeznaczenie lokalu: Przemysłowe
Opis
Oferujemy wynajem przestronnego lokalu magazynowego z dużą bramą wjazdową. Dostęp bezpośrednio z dużego parkingu.
Lokal znajduję w samym sercu centrum usługowo handlowym Wilsona 30 i ma bezpośrednie wejście z parkingu.
DOSTĘPNY OD ZARAZ!
Oferujemy możliwość adaptacji lokalu.
Zapewniamy parking na ponad 150 samochodów.
Na terenie obiektu Światłowód.
Obecnie na terenie Centrum działalność prowadzi blisko 40 firm.
Zapraszamy do zapoznania się z lokalem na miejscu.
Jeśli szukasz lokalu na sklep, biuro lub magazyn?
Chcesz wynająć lokal w samym centrum Częstochowy?
Potrzebujesz dużego parkingu dla swoich klientów?
Zapraszamy do współpracy w zakresie wynajmu powierzchni handlowo - usługowych:
- świetna lokalizacja w centrum miasta
- powierzchnia handlowa dopasowana do potrzeb najemcy
- możliwość adaptacji lokali pod potrzeby klientów
- duży parking dla Ciebie i Twoich Klientów
- długoterminowe umowy najmu
W ofercie posiadamy także inne lokale-kliknij w pokaż wszystkie ogłoszenia użytkownika.
CENTRUM HANDLOWO-USŁUGOWE
"WILSONA 30"
ul. Wilsona 30, Częstochowa
www.wilsona30.pl
Kontakt 34 366 45 50 lub 60*******90
Lokal znajduję w samym sercu centrum usługowo handlowym Wilsona 30 i ma bezpośrednie wejście z parkingu.
DOSTĘPNY OD ZARAZ!
Oferujemy możliwość adaptacji lokalu.
Zapewniamy parking na ponad 150 samochodów.
Na terenie obiektu Światłowód.
Obecnie na terenie Centrum działalność prowadzi blisko 40 firm.
Zapraszamy do zapoznania się z lokalem na miejscu.
Jeśli szukasz lokalu na sklep, biuro lub magazyn?
Chcesz wynająć lokal w samym centrum Częstochowy?
Potrzebujesz dużego parkingu dla swoich klientów?
Zapraszamy do współpracy w zakresie wynajmu powierzchni handlowo - usługowych:
- świetna lokalizacja w centrum miasta
- powierzchnia handlowa dopasowana do potrzeb najemcy
- możliwość adaptacji lokali pod potrzeby klientów
- duży parking dla Ciebie i Twoich Klientów
- długoterminowe umowy najmu
W ofercie posiadamy także inne lokale-kliknij w pokaż wszystkie ogłoszenia użytkownika.
CENTRUM HANDLOWO-USŁUGOWE
"WILSONA 30"
ul. Wilsona 30, Częstochowa
www.wilsona30.pl
Kontakt 34 366 45 50 lub 60*******90
ID: 1012778819
xxx xxx xxx
Dodane 07 października 2025
Wynajem lokalu magazynowego 75 m2
1 556 zł
Lokalizacja
Częstochowa, Tysiąclecie
Śląskie