Firmowe
Cena za m²: 12641.79 zł/m²
Rynek: Pierwotny
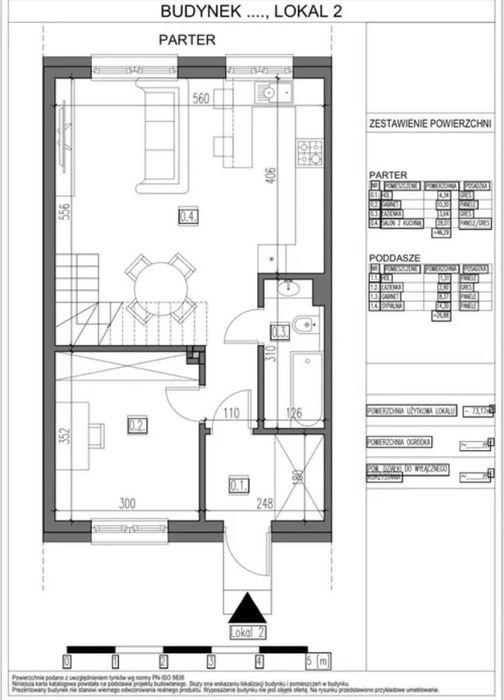
Powierzchnia: 73,17 m²
Powierzchnia działki: 125 m²
Rodzaj zabudowy: Bliźniak
Liczba pięter: Parterowy z użytkowym poddaszem
Opis
Zamieszkaj w sercu zielonej ciszy – Osiedle Stara Bawaria w Starej Iwicznej
Osiedle Stara Bawaria to idealne połączenie kameralnej atmosfery z wygodą codziennego życia.
Dobra wiadomość dla obywateli spoza UE – zakup nieruchomości nie wymaga zgody MSWiA!
Lokalizacja:
ul. Cichy Zakątek 6, Stara Iwiczna
Zaledwie 25 minut do centrum Warszawy i 15 minut do Lotniska Chopina. Bliskość Południowej Obwodnicy Warszawy oraz trasy S79 gwarantuje wygodne połączenia, a przystanek autobusowy i stacja PKP w okolicy ułatwiają codzienne dojazdy.
Projekt obejmuje 6 domów w zabudowie bliźniaczej. Dostępne lokale o powierzchni użytkowej 73,17 m² (ok. 90 m² po podłodze).
Elewacje z belgijskiej, ręcznie formowanej cegły w stylu bawarskim.
Każdy dom posiada prywatny ogródek z gotową trawą z rolki – idealne miejsce na poranną kawę lub rodzinne popołudnia.
Standard wykończenia:
• prywatny ogródek w każdym domu
• ogrzewanie gazowe (podłogowe na parterze, grzejniki na poddaszu)
*W lokalu wykończonym piec gazowy jest wliczony w cenę.
• miejskie media: woda i kanalizacja
• światłowód Ekoline
• drewniana konstrukcja stropu
• schody na metalowym karkasie
• tynkowane ściany i sufity, płyty GK na poddaszu
• ocieplenie dachu pianką PUR
• gotowe wylewki podłogowe
• pełne rozprowadzenie instalacji
W najbliższej okolicy:
• Biedronka – 450 m (6 min pieszo)
• Lidl – 1,2 km (3 min samochodem)
• Auchan Piaseczno – 2 km (5 min samochodem)
• Designer Outlet Warszawa – 3 km (7 min samochodem)
• Westfield Mokotów – 10 km (15 min samochodem)
• Przedszkole – 500 m
• Szkoła podstawowa – 1,5 km
• Kościół – 800 m
• Przystanek autobusowy – 400 m
• PKP Nowa Iwiczna – 2 km
• Żabka, Rossmann, Pepco, siłownia – ok. 300 m (5 min pieszo)
⸻
Cena:
Lokal środkowy – 73,17 m² z ogródkiem 24 m², wykończony
(wraz z montażem aneksu kuchennego – bez urządzeń AGD):
925 000 zł – przy jednorazowej płatności całościowej
975 000 zł – w przypadku finansowania z wykorzystaniem kredytu
* Cena wykończonego lokalu nie obejmuje mebli oraz urządzeń AGD, z wyjątkiem aneksu kuchennego (bez urządzeń AGD).
** Zdjęcia wnętrz mają charakter poglądowy.
W cenie każdego z lokali uwzględnione są 2 miejsca postojowe naziemne
Oddanie do użytkowania: styczeń-luty 2026 roku.
Zapraszamy do kontaktu!
Osiedle Stara Bawaria to idealne połączenie kameralnej atmosfery z wygodą codziennego życia.
Dobra wiadomość dla obywateli spoza UE – zakup nieruchomości nie wymaga zgody MSWiA!
Lokalizacja:
ul. Cichy Zakątek 6, Stara Iwiczna
Zaledwie 25 minut do centrum Warszawy i 15 minut do Lotniska Chopina. Bliskość Południowej Obwodnicy Warszawy oraz trasy S79 gwarantuje wygodne połączenia, a przystanek autobusowy i stacja PKP w okolicy ułatwiają codzienne dojazdy.
Projekt obejmuje 6 domów w zabudowie bliźniaczej. Dostępne lokale o powierzchni użytkowej 73,17 m² (ok. 90 m² po podłodze).
Elewacje z belgijskiej, ręcznie formowanej cegły w stylu bawarskim.
Każdy dom posiada prywatny ogródek z gotową trawą z rolki – idealne miejsce na poranną kawę lub rodzinne popołudnia.
Standard wykończenia:
• prywatny ogródek w każdym domu
• ogrzewanie gazowe (podłogowe na parterze, grzejniki na poddaszu)
*W lokalu wykończonym piec gazowy jest wliczony w cenę.
• miejskie media: woda i kanalizacja
• światłowód Ekoline
• drewniana konstrukcja stropu
• schody na metalowym karkasie
• tynkowane ściany i sufity, płyty GK na poddaszu
• ocieplenie dachu pianką PUR
• gotowe wylewki podłogowe
• pełne rozprowadzenie instalacji
W najbliższej okolicy:
• Biedronka – 450 m (6 min pieszo)
• Lidl – 1,2 km (3 min samochodem)
• Auchan Piaseczno – 2 km (5 min samochodem)
• Designer Outlet Warszawa – 3 km (7 min samochodem)
• Westfield Mokotów – 10 km (15 min samochodem)
• Przedszkole – 500 m
• Szkoła podstawowa – 1,5 km
• Kościół – 800 m
• Przystanek autobusowy – 400 m
• PKP Nowa Iwiczna – 2 km
• Żabka, Rossmann, Pepco, siłownia – ok. 300 m (5 min pieszo)
⸻
Cena:
Lokal środkowy – 73,17 m² z ogródkiem 24 m², wykończony
(wraz z montażem aneksu kuchennego – bez urządzeń AGD):
925 000 zł – przy jednorazowej płatności całościowej
975 000 zł – w przypadku finansowania z wykorzystaniem kredytu
* Cena wykończonego lokalu nie obejmuje mebli oraz urządzeń AGD, z wyjątkiem aneksu kuchennego (bez urządzeń AGD).
** Zdjęcia wnętrz mają charakter poglądowy.
W cenie każdego z lokali uwzględnione są 2 miejsca postojowe naziemne
Oddanie do użytkowania: styczeń-luty 2026 roku.
Zapraszamy do kontaktu!
ID: 1020713158
Skontaktuj się
xxx xxx xxx
Dodane 07 października 2025
Wykończony dom w Starej Iwicznej, super infrastruktura!
925 000 zł
Lokalizacja
Piastów
Mazowieckie