Prywatne
Umeblowane: Nie
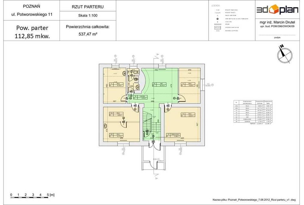
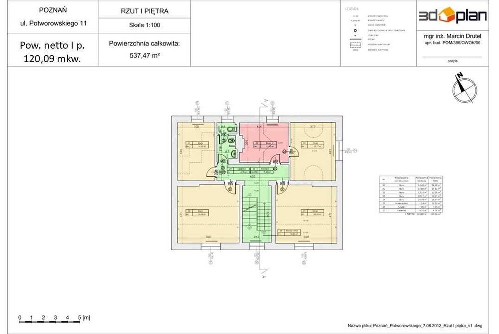
Powierzchnia: 537 m²
Powierzchnia działki: 400 m²
Rodzaj zabudowy: Wolnostojący
Liczba pięter: Dwupiętrowy i więcej
Opis
Biuro? Kancelaria? Pracownia? Znajdź prestiżową siedzibę w sercu miasta Poznania.
Na wynajem oferujemy unikalny, wolnostojący budynek o reprezentacyjnym charakterze, idealny pod działalność biurową lub usługową:
- kancelarię prawną lub notarialną;
- biuro rachunkowe lub podatkowe;
- agencję kreatywną, fundację, stowarzyszenie;
- pracownię projektową, artystyczną;
- lub inny prestiżowy biznes.
O BUDYNKU
Willa przy ul. Gustawa Potworowskiego 11 to wyjątkowy obiekt z duszą. Eklektyczna architektura z cegły, kilkukondygnacyjny układ pomieszczeń i klimatyczna historia miejsca sprawiają, że jest to idealna przestrzeń do prowadzenia działalności, która wymaga reprezentacyjnego adresu.
Budynek powstał prawdopodobnie w okresie międzywojennym lub tuż po wojnie. Przez lata pełnił funkcję mieszkalną i biurową – w czasach PRL mieścił się tu oddział PZU. Dziś, po częściowej modernizacji, wraca do funkcji biurowych z nową energią.
Otoczenie zieleni – podobnie jak wiele will miejskich, budynek pod adresem Potworowskiego 11 otoczony jest drzewami. Na południowej stronie ulicy rosną wysokie klony, co latem tworzy efekt „zielonego tunelu” dla pieszych .
LOKALIZACJA – ŁAZARZ
– prestiżowa, cicha ulica w sercu dzielnicy
– 10 minut pieszo do Parku Kasprowicza i Areny
– blisko głównych arterii, przystanków komunikacji i centrum
– kameralna, zielona okolica z „klimatem”
– idealna dla klientów ceniących spokój i dobrą energię miejsca
PARAMETRY I FUNKCJONALNOŚĆ BUDYNKU
– powierzchnia całkowita: ok. 537 m²
– dostępne 5 kondygnacji: piwnica, parter, I i II piętro oraz poddasze
– ponad 20 miejsc postojowych na terenie posesji
– 2 duże garaże
– własne podwórko i teren zielony
W budynku znajdują się m.in.:
- toalety na każdej kondygnacji
- klimatyzacja (indywidualna, niemal w każdym pomieszczeniu)
- pomieszczenie serwerowni z odpowiednim przygotowaniem technicznym
- 2 pomieszczenia archiwalne z szafami obrotowymi
- część pomieszczeń po remoncie, pokoje częściowo są odświeżone
- ogrzewanie gazowe – nowoczesny piec dwufunkcyjny
- system alarmowy
- brama na pilota, kontrolowany dostęp
DOSTĘPNOŚĆ
Budynek dostępny od połowy września 2025.
Możliwość wcześniejszych oględzin i rezerwacji.
WARUNKI NAJMU
Cena: 60 zł/m² netto + opłaty za media według zużycia
Umowa najmu minimum na 12 miesięcy.
KONTAKT
Marta Kromolicka
WYBIERZ WYJĄTKOWE MIEJSCE Z HISTORIĄ – STWÓRZ BIURO, KTÓRE INSPIRUJE.
POTWOROWSKIEGO 11 – PRESTIŻ, KOMFORT, WYGODA.
Na wynajem oferujemy unikalny, wolnostojący budynek o reprezentacyjnym charakterze, idealny pod działalność biurową lub usługową:
- kancelarię prawną lub notarialną;
- biuro rachunkowe lub podatkowe;
- agencję kreatywną, fundację, stowarzyszenie;
- pracownię projektową, artystyczną;
- lub inny prestiżowy biznes.
O BUDYNKU
Willa przy ul. Gustawa Potworowskiego 11 to wyjątkowy obiekt z duszą. Eklektyczna architektura z cegły, kilkukondygnacyjny układ pomieszczeń i klimatyczna historia miejsca sprawiają, że jest to idealna przestrzeń do prowadzenia działalności, która wymaga reprezentacyjnego adresu.
Budynek powstał prawdopodobnie w okresie międzywojennym lub tuż po wojnie. Przez lata pełnił funkcję mieszkalną i biurową – w czasach PRL mieścił się tu oddział PZU. Dziś, po częściowej modernizacji, wraca do funkcji biurowych z nową energią.
Otoczenie zieleni – podobnie jak wiele will miejskich, budynek pod adresem Potworowskiego 11 otoczony jest drzewami. Na południowej stronie ulicy rosną wysokie klony, co latem tworzy efekt „zielonego tunelu” dla pieszych .
LOKALIZACJA – ŁAZARZ
– prestiżowa, cicha ulica w sercu dzielnicy
– 10 minut pieszo do Parku Kasprowicza i Areny
– blisko głównych arterii, przystanków komunikacji i centrum
– kameralna, zielona okolica z „klimatem”
– idealna dla klientów ceniących spokój i dobrą energię miejsca
PARAMETRY I FUNKCJONALNOŚĆ BUDYNKU
– powierzchnia całkowita: ok. 537 m²
– dostępne 5 kondygnacji: piwnica, parter, I i II piętro oraz poddasze
– ponad 20 miejsc postojowych na terenie posesji
– 2 duże garaże
– własne podwórko i teren zielony
W budynku znajdują się m.in.:
- toalety na każdej kondygnacji
- klimatyzacja (indywidualna, niemal w każdym pomieszczeniu)
- pomieszczenie serwerowni z odpowiednim przygotowaniem technicznym
- 2 pomieszczenia archiwalne z szafami obrotowymi
- część pomieszczeń po remoncie, pokoje częściowo są odświeżone
- ogrzewanie gazowe – nowoczesny piec dwufunkcyjny
- system alarmowy
- brama na pilota, kontrolowany dostęp
DOSTĘPNOŚĆ
Budynek dostępny od połowy września 2025.
Możliwość wcześniejszych oględzin i rezerwacji.
WARUNKI NAJMU
Cena: 60 zł/m² netto + opłaty za media według zużycia
Umowa najmu minimum na 12 miesięcy.
KONTAKT
Marta Kromolicka
WYBIERZ WYJĄTKOWE MIEJSCE Z HISTORIĄ – STWÓRZ BIURO, KTÓRE INSPIRUJE.
POTWOROWSKIEGO 11 – PRESTIŻ, KOMFORT, WYGODA.
ID: 1017908701
xxx xxx xxx
Dodane 25 października 2025
WYJĄTKOWA WILLA NA WYNAJEM – Poznań, Łazarz, ul. Potworowskiego 11
32 220 zł
do negocjacji
Lokalizacja
Poznań, Grunwald
Wielkopolskie