Prywatne
Poziom: 3
Powierzchnia: 47 m²
Przeznaczenie lokalu: Biurowe
Opis
Wynajmę lokal na Starym Mokotowie o powierzchni całkowitej 47 m2, a użytkowej 34 m / poddasze, lokal ma skosy/. Doświetlone światłem naturalnym.
Idealne miejsce na pracownie; ciche biuro do pracy kreatywnej, twórczej, pracownie artystyczna, ceramiczną.
Aktualnie jest pracownia plastyczna, można kontynuować działalność. Istnieje również możliwość odkupienia pełnego wyposażenia. Idealne na start własnej działalności lub rozwiniecie już istniejącej.
Zalety :
- adres - Narbutta 3, tylko 100 m od ul. Puławskiej (a jednocześnie jest cicho)
- duża ilość naturalnego światła;
- 13 m2 powierzchni dodatkowej/ pod skosami (np. do przechowywania dokumentów)
- możliwość umeblowania we własnym zakresie
Lokal znajduje się na poddaszu na 3 pietrze w kameralnej kamienicy- tylko 5 mieszkań, wejście z klatki schodowej.
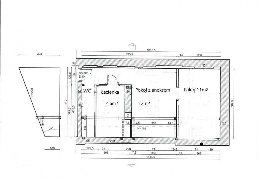
- pokój z aneksem kuchennym bez możliwości gotowania -12 m2
- pokój zamykany 11 m2
- łazienka 4.6 m2
- wc -2.2 m2
- przedpokój 4,5 m2
Koszt najmu - 2500+500 PLN = 3000 PLN za miesiąc
Do ceny najmu należy doliczyć opłatę za prąd i wodę / liczniki/ - średnio 40-80 zl .
Obowiązuje kaucja w wysokości 3 000 zł.
Właściciel nie wystawia fakturę VAT.
Okolica oferuje pełną infrastrukturę handlowo-usługową z doskonałym połączeniem komunikacyjnym: 2 min do przystanku tramwajowego; 10 min spacerem do metra Pole Mokotowskie.
Idealne miejsce na pracownie; ciche biuro do pracy kreatywnej, twórczej, pracownie artystyczna, ceramiczną.
Aktualnie jest pracownia plastyczna, można kontynuować działalność. Istnieje również możliwość odkupienia pełnego wyposażenia. Idealne na start własnej działalności lub rozwiniecie już istniejącej.
Zalety :
- adres - Narbutta 3, tylko 100 m od ul. Puławskiej (a jednocześnie jest cicho)
- duża ilość naturalnego światła;
- 13 m2 powierzchni dodatkowej/ pod skosami (np. do przechowywania dokumentów)
- możliwość umeblowania we własnym zakresie
Lokal znajduje się na poddaszu na 3 pietrze w kameralnej kamienicy- tylko 5 mieszkań, wejście z klatki schodowej.
- pokój z aneksem kuchennym bez możliwości gotowania -12 m2
- pokój zamykany 11 m2
- łazienka 4.6 m2
- wc -2.2 m2
- przedpokój 4,5 m2
Koszt najmu - 2500+500 PLN = 3000 PLN za miesiąc
Do ceny najmu należy doliczyć opłatę za prąd i wodę / liczniki/ - średnio 40-80 zl .
Obowiązuje kaucja w wysokości 3 000 zł.
Właściciel nie wystawia fakturę VAT.
Okolica oferuje pełną infrastrukturę handlowo-usługową z doskonałym połączeniem komunikacyjnym: 2 min do przystanku tramwajowego; 10 min spacerem do metra Pole Mokotowskie.
ID: 1030332962
xxx xxx xxx
Dodane 12 października 2025
Stary Mokotów. Kameralna jasna pracownia
2 500 zł
Lokalizacja
Warszawa, Mokotów
Mazowieckie