Prywatne
Cena za m²: 1996.31 zł/m²
Rynek: Pierwotny
Powierzchnia: 325,60 m²
Powierzchnia działki: 1 460 m²
Rodzaj zabudowy: Wolnostojący
Liczba pięter: Dwupiętrowy i więcej
Opis
Witam,
Mam na sprzedaż budynek usługowy - pensjonat w stanie surowym otwartym. Budynek o powierzchni 325mkw. znajduje się w Targanicach, przy ul. Nowa Wieś.
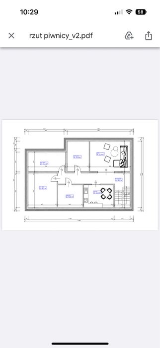
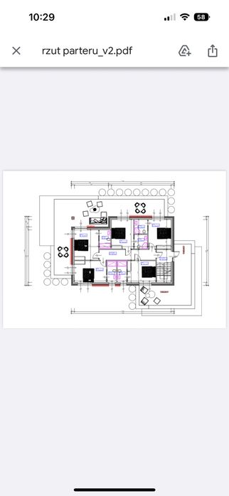
Posiada on 10-2 osobowych pokoi z łazienkami, na poddaszu apartament z trzema sypialniami, łazienką i salonem z aneksem kuchennym. W piwnicy przewidziano miejsce na kuchnie z jadalnia, pralnie, a także bawialnie dla dzieci.
Obiekt znajduje się na 14ar działce w spokojnym sąsiedztwie domów rodzinnych. Idealna baza wypadowa by odwiedzić najbliższe okolice a także miłośników pieszych wędrówek:
Leskowiec 17km
Andrychów 8km
Wadowice 20km
Inwald park Miniatur 13km
Energylandia 29km
Wspaniałe miejsce również dla osób, które potrzebują wyciszenia i odpoczynku.
Zapraszamy do kontaktu wszystkie zainteresowane osoby.
Mam na sprzedaż budynek usługowy - pensjonat w stanie surowym otwartym. Budynek o powierzchni 325mkw. znajduje się w Targanicach, przy ul. Nowa Wieś.
Posiada on 10-2 osobowych pokoi z łazienkami, na poddaszu apartament z trzema sypialniami, łazienką i salonem z aneksem kuchennym. W piwnicy przewidziano miejsce na kuchnie z jadalnia, pralnie, a także bawialnie dla dzieci.
Obiekt znajduje się na 14ar działce w spokojnym sąsiedztwie domów rodzinnych. Idealna baza wypadowa by odwiedzić najbliższe okolice a także miłośników pieszych wędrówek:
Leskowiec 17km
Andrychów 8km
Wadowice 20km
Inwald park Miniatur 13km
Energylandia 29km
Wspaniałe miejsce również dla osób, które potrzebują wyciszenia i odpoczynku.
Zapraszamy do kontaktu wszystkie zainteresowane osoby.
ID: 836754401
xxx xxx xxx
Dodane 03 października 2025
Sprzedam pensjonat
650 000 zł
do negocjacji
Lokalizacja
Wadowice
Małopolskie