Prywatne
Cena za m²: 7959.46 zł/m²
Poziom: 3
Umeblowane: Tak
Rynek: Wtórny
Rodzaj zabudowy: Blok
Powierzchnia: 74 m²
Liczba pokoi: 4 i więcej
Opis
NOWE, 4-POKOJOWE MIESZKANIE GOTOWE DO ZAMIESZKANIA!
Świeżo po generalnym remoncie, w świetnej lokalizacji — od zaraz dla Ciebie!
Nigdy niezamieszkałe
Wszystko nowe — na gwarancji
Idealny układ — 4 niezależne pokoje
Bliskie centrum i terenów zielonych
Szczegóły mieszkania:
Powierzchnia: ~74,5 m²
Piętro: 3 z 4 (bez windy)
Wysokość pomieszczeń: 257 cm
Balkon: 6,03 m²
Piwnica: 4,43 m²
Układ pomieszczeń:
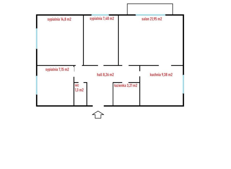
Przestronny hall - 8,26 m²
Kuchnia - 7,15 m²
Salon z kominkiem- 21,95 m²
Sypialnia 1 - 14,80 m²
Sypialnia 2 - 7,48 m²
Sypialnia 3 - 9,38 m²
Łazienka - 3,21 m²
Toaleta - 1,30 m²
? Co zostało zrobione?
Pełny remont generalny
Wymienione instalacje, piony, kaloryfery
przygotowana instalacja do klimatyzacji
Nowe okna 4-szybowe
Nowe drzwi
Sprzęt AGD nowy, na gwarancji
Kuchnia widna z oknem kompletnie wyposażona:
(lodówka, piekarnik, płyta indukcyjna, okap, zmywarka 60cm)
? Lokalizacja:
Spokojna, zielona okolica blisko rzeki Narew
Pełna infrastruktura: sklepy (Lidl, Biedronka, osiedlowe), przedszkola, żłobki, szkoły
Liczne place zabaw
Szybki dojazd do centrum
? Czynsz: ok. 900
Budynek po remoncie elewacji w 2023 roku. Nowe balkony i parapety. Zadbana klatka, dobra administracja.
Zainteresowanych zapraszam do kontaktu — 50*******23
Świeżo po generalnym remoncie, w świetnej lokalizacji — od zaraz dla Ciebie!
Nigdy niezamieszkałe
Wszystko nowe — na gwarancji
Idealny układ — 4 niezależne pokoje
Bliskie centrum i terenów zielonych
Szczegóły mieszkania:
Powierzchnia: ~74,5 m²
Piętro: 3 z 4 (bez windy)
Wysokość pomieszczeń: 257 cm
Balkon: 6,03 m²
Piwnica: 4,43 m²
Układ pomieszczeń:
Przestronny hall - 8,26 m²
Kuchnia - 7,15 m²
Salon z kominkiem- 21,95 m²
Sypialnia 1 - 14,80 m²
Sypialnia 2 - 7,48 m²
Sypialnia 3 - 9,38 m²
Łazienka - 3,21 m²
Toaleta - 1,30 m²
? Co zostało zrobione?
Pełny remont generalny
Wymienione instalacje, piony, kaloryfery
przygotowana instalacja do klimatyzacji
Nowe okna 4-szybowe
Nowe drzwi
Sprzęt AGD nowy, na gwarancji
Kuchnia widna z oknem kompletnie wyposażona:
(lodówka, piekarnik, płyta indukcyjna, okap, zmywarka 60cm)
? Lokalizacja:
Spokojna, zielona okolica blisko rzeki Narew
Pełna infrastruktura: sklepy (Lidl, Biedronka, osiedlowe), przedszkola, żłobki, szkoły
Liczne place zabaw
Szybki dojazd do centrum
? Czynsz: ok. 900
Budynek po remoncie elewacji w 2023 roku. Nowe balkony i parapety. Zadbana klatka, dobra administracja.
Zainteresowanych zapraszam do kontaktu — 50*******23
ID: 1033410660
xxx xxx xxx
Dodane 20 października 2025
Sprzedam mieszkanie w Pułtusku bezpośrednio
589 000 zł
do negocjacji
Lokalizacja
Pułtusk
Mazowieckie