Prywatne
Poziom: Parter
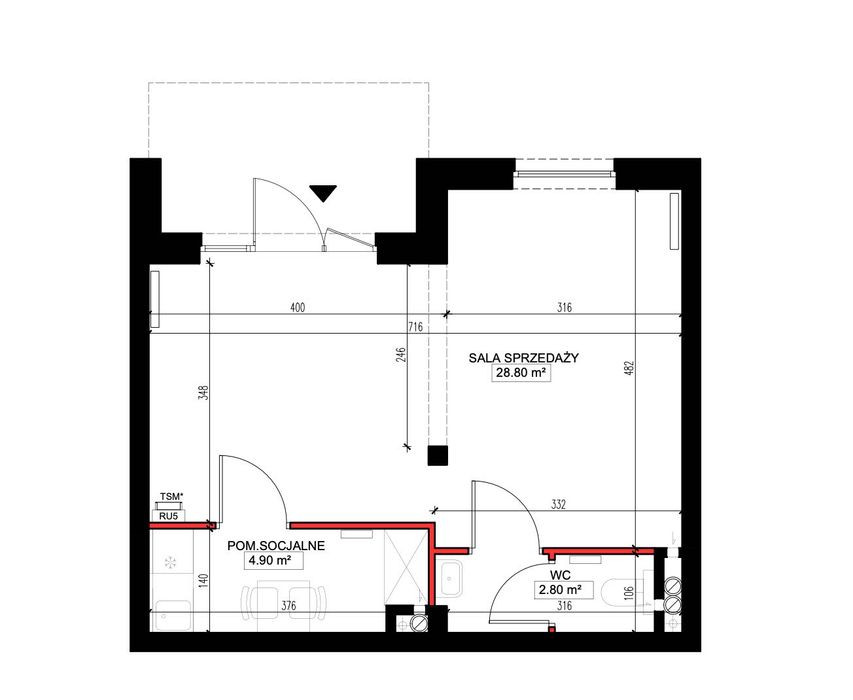
Powierzchnia: 36,50 m²
Przeznaczenie lokalu: Usługowe
Opis
Na sprzedaż lokal usługowy 36,5 m2 w skład lokalu wchodzi toaleta, pomieszczenie socjalne i sala sprzedaży.
Blok oddany do użytku w 2025 nowe osiedle.
Lokal wykończony, płytki, oświetlenie, sufit podwieszany lastrowy, wc umywalki, zabudowa socjalna. Pełna wentylacja i klimatyzacja w lokalu.
Więcej informacji telefonicznie, możliwość oglądania na miejscu.
Blok oddany do użytku w 2025 nowe osiedle.
Lokal wykończony, płytki, oświetlenie, sufit podwieszany lastrowy, wc umywalki, zabudowa socjalna. Pełna wentylacja i klimatyzacja w lokalu.
Więcej informacji telefonicznie, możliwość oglądania na miejscu.
ID: 1050187616
xxx xxx xxx
Dodane 18 stycznia 2026
Sprzedam lokal usługowy Grójec
500 000 zł
Lokalizacja
Grójec
Mazowieckie
