Firmowe
Cena za m²: 1903.85 zł/m²
Rynek: Pierwotny
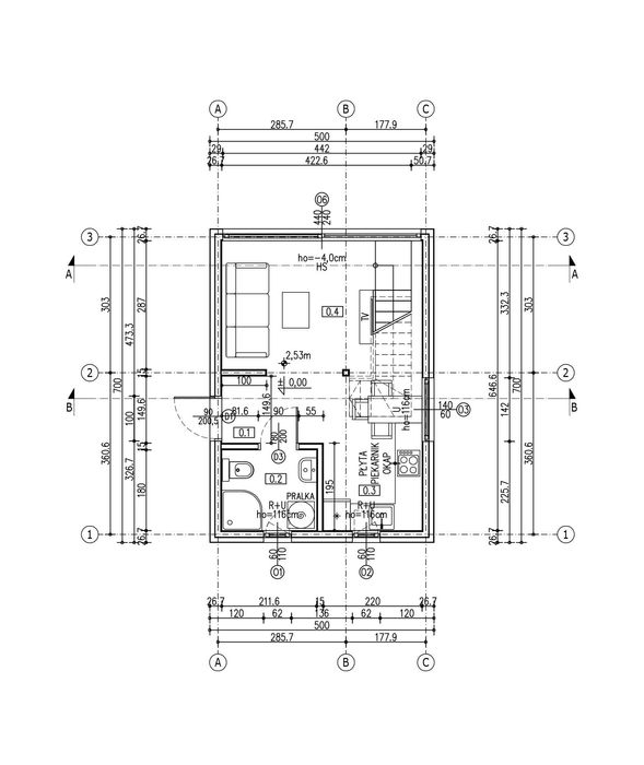
Powierzchnia: 52 m²
Powierzchnia działki: 1 m²
Rodzaj zabudowy: Wolnostojący
Liczba pięter: Parterowy z użytkowym poddaszem
Opis
Konstrukcja domu 5x7 m z drewna C24 z montażem, transportem i 5 lat gwarancji
Firma oferuje do sprzedaży kompletną konstrukcję budynku mieszkalnego o wymiarach 5 m x 7 m i powierzchni netto 52,02 m2.
Konstrukcja wykonana z certyfikowanego drewna konstrukcyjnego C24, suszonego komorowo, czterostronnie struganego i fazowanego.
Budynek przeznaczony do samodzielnego wykończenia według indywidualnych potrzeb inwestora.
W skład zestawu wchodzi:
Elewacja – wiatroizolacja
Konstrukcja ścian zewnętrznych – płyta OSB grubości 12 mm oraz konstrukcja drewniana 60x220 mm z drewna C24
Konstrukcja ścian wewnętrznych – konstrukcja drewniana 60x100 mm z drewna C24 oraz płyta OSB grubości 12 mm
Konstrukcja dachu – kontrłaty 24x45 mm, membrana dachowa, wiązary dachowe z drewna C24
Konstrukcja stropu – dolny pas wiązara,
Transport i montaż obejmują:
dostarczenie elementów budynku na plac budowy, - do 50 km od Bielska-Białej
montaż konstrukcji na miejscu,
zapewnienie dźwigu oraz rusztowania na czas montażu.
Dlaczego warto wybrać naszą konstrukcję:
solidne wykonanie z certyfikowanego drewna C24,
prefabrykowane elementy umożliwiają szybki i precyzyjny montaż,
konstrukcja idealna pod dom całoroczny,
5 lat gwarancji na konstrukcję,
możliwość obejrzenia takiego domu w stanie wykończonym.
Cena: 99 000 zł brutto
Po szczegóły zapraszamy do kontaktu telefonicznego pod numerem 53*******44 lub do odwiedzenia naszej ekspozycji w Bystrej przy ul. Szczyrkowskiej 144.
Na miejscu można obejrzeć taki dom w stanie wykończonym.
Firma oferuje do sprzedaży kompletną konstrukcję budynku mieszkalnego o wymiarach 5 m x 7 m i powierzchni netto 52,02 m2.
Konstrukcja wykonana z certyfikowanego drewna konstrukcyjnego C24, suszonego komorowo, czterostronnie struganego i fazowanego.
Budynek przeznaczony do samodzielnego wykończenia według indywidualnych potrzeb inwestora.
W skład zestawu wchodzi:
Elewacja – wiatroizolacja
Konstrukcja ścian zewnętrznych – płyta OSB grubości 12 mm oraz konstrukcja drewniana 60x220 mm z drewna C24
Konstrukcja ścian wewnętrznych – konstrukcja drewniana 60x100 mm z drewna C24 oraz płyta OSB grubości 12 mm
Konstrukcja dachu – kontrłaty 24x45 mm, membrana dachowa, wiązary dachowe z drewna C24
Konstrukcja stropu – dolny pas wiązara,
Transport i montaż obejmują:
dostarczenie elementów budynku na plac budowy, - do 50 km od Bielska-Białej
montaż konstrukcji na miejscu,
zapewnienie dźwigu oraz rusztowania na czas montażu.
Dlaczego warto wybrać naszą konstrukcję:
solidne wykonanie z certyfikowanego drewna C24,
prefabrykowane elementy umożliwiają szybki i precyzyjny montaż,
konstrukcja idealna pod dom całoroczny,
5 lat gwarancji na konstrukcję,
możliwość obejrzenia takiego domu w stanie wykończonym.
Cena: 99 000 zł brutto
Po szczegóły zapraszamy do kontaktu telefonicznego pod numerem 53*******44 lub do odwiedzenia naszej ekspozycji w Bystrej przy ul. Szczyrkowskiej 144.
Na miejscu można obejrzeć taki dom w stanie wykończonym.
ID: 1032510506
xxx xxx xxx
Dodane 16 października 2025
Sprzedam konstrukcję domu 52 m² – prefabrykowana, z montażem 99 tys zł
99 000 zł
Lokalizacja
Bielsko-Biała
Śląskie