Prywatne
Cena za m²: 6285.71 zł/m²
Rynek: Wtórny
Powierzchnia: 175 m²
Powierzchnia działki: 760 m²
Rodzaj zabudowy: Wolnostojący
Liczba pięter: Parterowy z użytkowym poddaszem
Opis
Sprzedam wolnostojący dom
jednorodzinny w Zamościu przy ulicy Zagrodowej.
Dom wybudowany w 2024r. na podstawie projektu Dom w Złoci (A) z adaptacjami:
- łazienka na parterze została powiększona o powierzchnię spiżarni tworząc komfortową przestrzeń z dużym prysznicem i dwoma umywalkami;
- w strefie dziennej okno zostało zastąpione dużymi drzwiami tarasowymi wychodzącymi na ogród od strony południowej;
- pralnia na piętrze została przekształcona w dodatkowy pokoj;
-pralnia znajduje się w pomieszczeniu gospodarczym na piętrze.
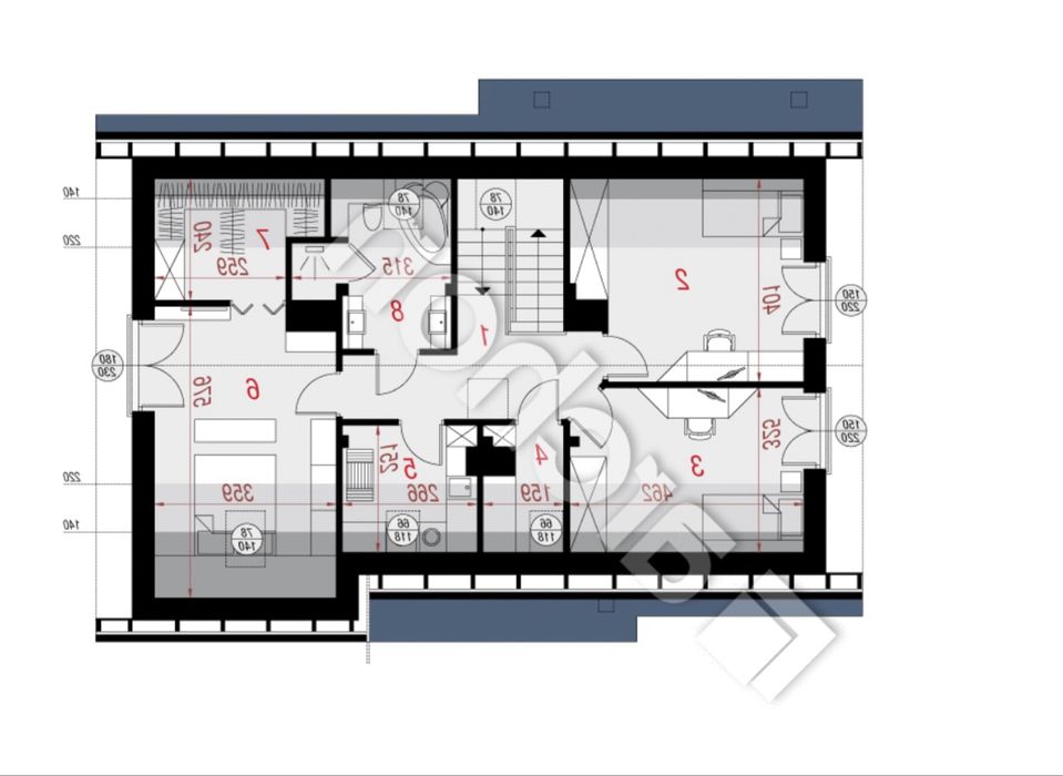
Dom ma 175 m² powierzchni.
Posiada 5 pokoi, 2 łazienki, otwartą strefę dzienną na parterze, która mieści kuchnie, część jadalnianą i wypoczynkową; wiatrołap, pojedynczy garaż, kotłownię, pralnię oraz strych.
Działka o powierzchni 7,6 ara.
To idealne miejsce dla rodzin szukających spokoju i komfortu.
Zadzwoń i umów się na prezentację, aby osobiście ocenić potencjał tej nieruchomości.
Dom jest możliwy do zamieszkania z możliwością wykończenia wnętrza w trakcie użytkowania.
Dom posiada:
~ instalację elektryczną
~ instalację wodno- kanalizacyjną (szambo)
~ gazową instalację centralnego ogrzewania
~ instalacja centralnego ogrzewania jest przygotowana na możliwość podłączenia pieca na paliwo stałe
~ ogrzewanie podłogowe na powierzchni całego domu (z rozdzielaczami)
- instalację pod klimatyzację
~ uzdatniacz wody w kotłowni
~ tynki cementowo-gipsowe oraz ściany wewnętrzne pokryte farbą lateksową w kolorze białym,
~ panele podłogowe i płytki podłogowe w kuchni, wiatrołapie, kotłowni;
~kuchnię w pełni wyposażoną wraz ze wszystkimi sprzętami (montaż w sierpniu 2025r)
~łazienkę w pełni wykończoną na parterze w neutralnej, nowoczesnej kolorystyce (wykończenie sierpień 2025r.)
~ okna trzyszybowe
~ rolety adaptacyjne zewnętrzne
~ drzwi wewnętrzne
~ możliwość instalacji kominka na paliwo stałe, gazowego lub elektrycznego w strefie dziennej
- instalację elektryczna przygotowaną pod monitoring zewnętrzny; elektrycznie otwieraną bramę i furtkę, domofon z video podglądem
Dom był użytkowany przez bardzo krótki okres czasu.
Zachęcam do kontaktu, chętnie odpowiem na więcej pytań.
jednorodzinny w Zamościu przy ulicy Zagrodowej.
Dom wybudowany w 2024r. na podstawie projektu Dom w Złoci (A) z adaptacjami:
- łazienka na parterze została powiększona o powierzchnię spiżarni tworząc komfortową przestrzeń z dużym prysznicem i dwoma umywalkami;
- w strefie dziennej okno zostało zastąpione dużymi drzwiami tarasowymi wychodzącymi na ogród od strony południowej;
- pralnia na piętrze została przekształcona w dodatkowy pokoj;
-pralnia znajduje się w pomieszczeniu gospodarczym na piętrze.
Dom ma 175 m² powierzchni.
Posiada 5 pokoi, 2 łazienki, otwartą strefę dzienną na parterze, która mieści kuchnie, część jadalnianą i wypoczynkową; wiatrołap, pojedynczy garaż, kotłownię, pralnię oraz strych.
Działka o powierzchni 7,6 ara.
To idealne miejsce dla rodzin szukających spokoju i komfortu.
Zadzwoń i umów się na prezentację, aby osobiście ocenić potencjał tej nieruchomości.
Dom jest możliwy do zamieszkania z możliwością wykończenia wnętrza w trakcie użytkowania.
Dom posiada:
~ instalację elektryczną
~ instalację wodno- kanalizacyjną (szambo)
~ gazową instalację centralnego ogrzewania
~ instalacja centralnego ogrzewania jest przygotowana na możliwość podłączenia pieca na paliwo stałe
~ ogrzewanie podłogowe na powierzchni całego domu (z rozdzielaczami)
- instalację pod klimatyzację
~ uzdatniacz wody w kotłowni
~ tynki cementowo-gipsowe oraz ściany wewnętrzne pokryte farbą lateksową w kolorze białym,
~ panele podłogowe i płytki podłogowe w kuchni, wiatrołapie, kotłowni;
~kuchnię w pełni wyposażoną wraz ze wszystkimi sprzętami (montaż w sierpniu 2025r)
~łazienkę w pełni wykończoną na parterze w neutralnej, nowoczesnej kolorystyce (wykończenie sierpień 2025r.)
~ okna trzyszybowe
~ rolety adaptacyjne zewnętrzne
~ drzwi wewnętrzne
~ możliwość instalacji kominka na paliwo stałe, gazowego lub elektrycznego w strefie dziennej
- instalację elektryczna przygotowaną pod monitoring zewnętrzny; elektrycznie otwieraną bramę i furtkę, domofon z video podglądem
Dom był użytkowany przez bardzo krótki okres czasu.
Zachęcam do kontaktu, chętnie odpowiem na więcej pytań.
ID: 1031851603
xxx xxx xxx
Dodane 12 listopada 2025
Sprzedam dom jednorodzinny przy ulicy Zagrodowej w Zamosciu
1 100 000 zł
Lokalizacja
Zamość
Lubelskie