Prywatne
Opis
Do sprzedania budynek Warszawa Wola.
Pierwsza linia zabudowy przy Alei Prymasa 1000 lecia pomiędzy ulicami Górczewską i Obozową. Miejscowy Plan Zagospodarowania Przestrzennego pozwala na prowadzenie różnego rodzaju usług i handlu włącznie z usługami związanymi z zamieszkaniem typu hostel czy kwatery pracownicze.
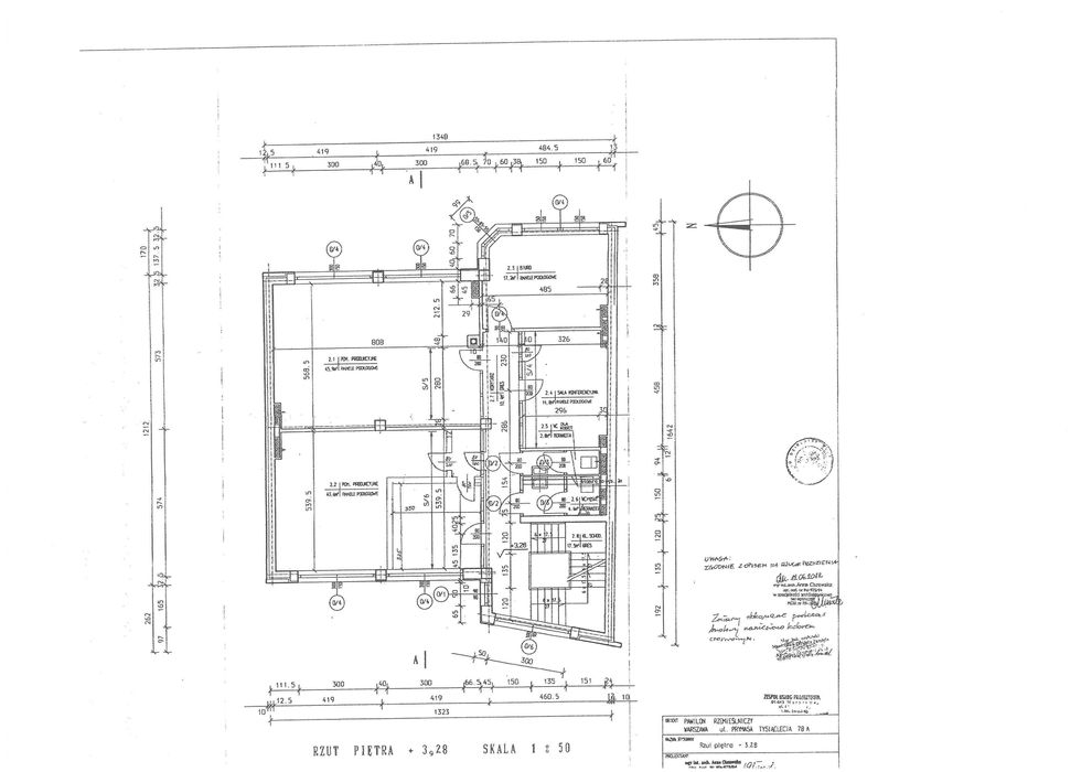
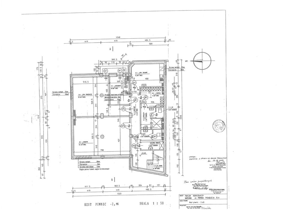
Łącznie 4 kondygnacje 620 m2 ( wykończona -użytkowa piwnica + 3 kondygnacje naziemne ) .
Wewnątrz nie ma windy ale przygotowane jest miejsce na jej montaż.
Grunt ( własność hipoteczna ) 269 m2
Rok zakończenia budowy 2012.
Budynek można przeznaczyć na siedzibę lub przedstawicielstwo firmy, placówkę usługowo-handlową, biura, pracownie, kwatery pracownicze jak również na produkcję, serwis, ekspozycję itp. Posiada wszelkie wymagane zezwolenia. Każde piętro stanowić może odrębną jednostkę o powierzchni ok. 160 mkw, z własnym pokojem recepcyjnym i dwoma łazienkami.
Otwarta konstrukcja budynku pozwala na dowolne ukształtowanie powierzchni użytkowej pięter, wg indywidualnych potrzeb użytkownika. Dodatkowo w piwnicy budynku znajdują się pomieszczenia magazynowe i/lub warsztatowe. Budynek wyposażony jest w linie telefoniczne i trójfazową instalację elektryczną z przydziałem mocy 32kW oraz własne ogrzewanie gazowe.
Do dyspozycji użytkownika obiektu są miejsca parkingowe na terenie działki, jak również
w bezpośrednim otoczeniu posesji na wewnętrznej drodze dojazdowej ( strefa bezpłatnego parkowania ) . 2 wejścia do budynku : z głównej ulicy Alei Prymasa Tysiąclecia oraz od strony drogi wewnętrznej.
Atutem obiektu jest doskonała lokalizacja – bezpośrednio przy obwodnicy Warszawy oraz autostrady A2. Obok budynku znajduje się przystanek autobusowy, minut pieszo do tramwaju i metra ( stacja Młynów) , tak samo stacja kolejki SKM. Obok kompleks pawilonów produkcyjno-usługowych położonych w odległości zaledwie 4 km od Centrum i 9 km od lotniska Okęcie ( bezpośredni dojazd SKM ). Dojazd do budynku jest bardzo dogodny- zarówno samochodem jak i komunikacją miejską.
Aktualnie na parterze budynku prowadzona jest działalność - serwis elektroniki samochodowej a piętra są wynajmowane. Zapraszam do kontaktu.
Pierwsza linia zabudowy przy Alei Prymasa 1000 lecia pomiędzy ulicami Górczewską i Obozową. Miejscowy Plan Zagospodarowania Przestrzennego pozwala na prowadzenie różnego rodzaju usług i handlu włącznie z usługami związanymi z zamieszkaniem typu hostel czy kwatery pracownicze.
Łącznie 4 kondygnacje 620 m2 ( wykończona -użytkowa piwnica + 3 kondygnacje naziemne ) .
Wewnątrz nie ma windy ale przygotowane jest miejsce na jej montaż.
Grunt ( własność hipoteczna ) 269 m2
Rok zakończenia budowy 2012.
Budynek można przeznaczyć na siedzibę lub przedstawicielstwo firmy, placówkę usługowo-handlową, biura, pracownie, kwatery pracownicze jak również na produkcję, serwis, ekspozycję itp. Posiada wszelkie wymagane zezwolenia. Każde piętro stanowić może odrębną jednostkę o powierzchni ok. 160 mkw, z własnym pokojem recepcyjnym i dwoma łazienkami.
Otwarta konstrukcja budynku pozwala na dowolne ukształtowanie powierzchni użytkowej pięter, wg indywidualnych potrzeb użytkownika. Dodatkowo w piwnicy budynku znajdują się pomieszczenia magazynowe i/lub warsztatowe. Budynek wyposażony jest w linie telefoniczne i trójfazową instalację elektryczną z przydziałem mocy 32kW oraz własne ogrzewanie gazowe.
Do dyspozycji użytkownika obiektu są miejsca parkingowe na terenie działki, jak również
w bezpośrednim otoczeniu posesji na wewnętrznej drodze dojazdowej ( strefa bezpłatnego parkowania ) . 2 wejścia do budynku : z głównej ulicy Alei Prymasa Tysiąclecia oraz od strony drogi wewnętrznej.
Atutem obiektu jest doskonała lokalizacja – bezpośrednio przy obwodnicy Warszawy oraz autostrady A2. Obok budynku znajduje się przystanek autobusowy, minut pieszo do tramwaju i metra ( stacja Młynów) , tak samo stacja kolejki SKM. Obok kompleks pawilonów produkcyjno-usługowych położonych w odległości zaledwie 4 km od Centrum i 9 km od lotniska Okęcie ( bezpośredni dojazd SKM ). Dojazd do budynku jest bardzo dogodny- zarówno samochodem jak i komunikacją miejską.
Aktualnie na parterze budynku prowadzona jest działalność - serwis elektroniki samochodowej a piętra są wynajmowane. Zapraszam do kontaktu.
ID: 993747344
xxx xxx xxx
Dodane 10 października 2025
Sprzedam budynek usługowy / komercyjny / handlowy / hostel
3 250 000 zł
Lokalizacja
Warszawa, Wola
Mazowieckie