Prywatne
Poziom: Parter
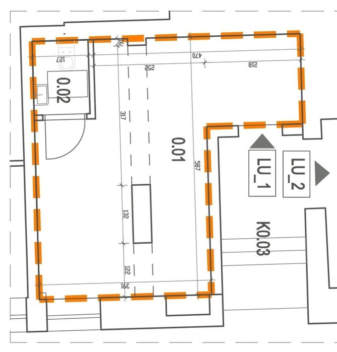
Powierzchnia: 27 m²
Przeznaczenie lokalu: Usługowe
Opis
Sprzedam bezpośrednio lokal usługowy przy płycie Rynku w Stęszewie
Adres: Rynek 11 (przy Lotto)
Metraż: 27m2
Lokal idealnie nadaje się na działalność gastronomiczną np. kawiarnia (zgoda z gminy na wystawienie 3-4 stolików przed budynek), fryzjer/barbet/kosmetyczka lub małe biuro np. rachunkowe/księgowe.
Sąsiedztwo Lotto gwarantuje ciągły ruch pieszy.
Kamienica jest po generalnym remoncie wraz z pięknie odnowioną elewacja. Elewacja jest oświetlona.
Lokal jest po remoncie w stanie deweloperskim do własnej aranżacji. Kabel zasilający w lokalu z licznikiem.
Wyprowadzone media pod łazienkę.
Lokal ma jedno okno z widokiem na Rynek i dużą witrynę z klatki schodowej.
Możliwość montażu logo na ścianie elewacji.
Ogrzewanie centralne z kotłowni gazowej na taryfie mieszkaniowej a nie biznes.
Bardzo korzystna opcja dla małych firm.
W budynku jest światłowód. Miejsca parkingowe wokół płyty Rynku i za budynkiem od ul. Kosickiego 17. Nie obowiązuje strefa płatnego parkowania.
Wartość dodana w tym lokalu to bankomat i umowa z bankiem na długi okres.
Czynsz najmu z banku 1100 netto/moc + prąd wg zużycia
Czynsz administracyjny do Wspólnoty mieszkaniowej: ok 250 zł
Cena sprzedaży może być z 23% lub ZW z uwagi na zakup budynku bez VAT. Kwestia do uzgodnienia między stronami. Podana cena w ofercie jest w wartości netto.
Zapraszam do oglądania.
Adres: Rynek 11 (przy Lotto)
Metraż: 27m2
Lokal idealnie nadaje się na działalność gastronomiczną np. kawiarnia (zgoda z gminy na wystawienie 3-4 stolików przed budynek), fryzjer/barbet/kosmetyczka lub małe biuro np. rachunkowe/księgowe.
Sąsiedztwo Lotto gwarantuje ciągły ruch pieszy.
Kamienica jest po generalnym remoncie wraz z pięknie odnowioną elewacja. Elewacja jest oświetlona.
Lokal jest po remoncie w stanie deweloperskim do własnej aranżacji. Kabel zasilający w lokalu z licznikiem.
Wyprowadzone media pod łazienkę.
Lokal ma jedno okno z widokiem na Rynek i dużą witrynę z klatki schodowej.
Możliwość montażu logo na ścianie elewacji.
Ogrzewanie centralne z kotłowni gazowej na taryfie mieszkaniowej a nie biznes.
Bardzo korzystna opcja dla małych firm.
W budynku jest światłowód. Miejsca parkingowe wokół płyty Rynku i za budynkiem od ul. Kosickiego 17. Nie obowiązuje strefa płatnego parkowania.
Wartość dodana w tym lokalu to bankomat i umowa z bankiem na długi okres.
Czynsz najmu z banku 1100 netto/moc + prąd wg zużycia
Czynsz administracyjny do Wspólnoty mieszkaniowej: ok 250 zł
Cena sprzedaży może być z 23% lub ZW z uwagi na zakup budynku bez VAT. Kwestia do uzgodnienia między stronami. Podana cena w ofercie jest w wartości netto.
Zapraszam do oglądania.
ID: 1028196407
xxx xxx xxx
Dodane 29 września 2025
Sprzedam bezpośrednio lokal użytkowy przy Rynku w Stęszewie
250 000 zł
Lokalizacja
Stęszew
Wielkopolskie