Prywatne
Cena za m²: 8058.46 zł/m²
Poziom: 1
Umeblowane: Nie
Rynek: Wtórny
Rodzaj zabudowy: Blok
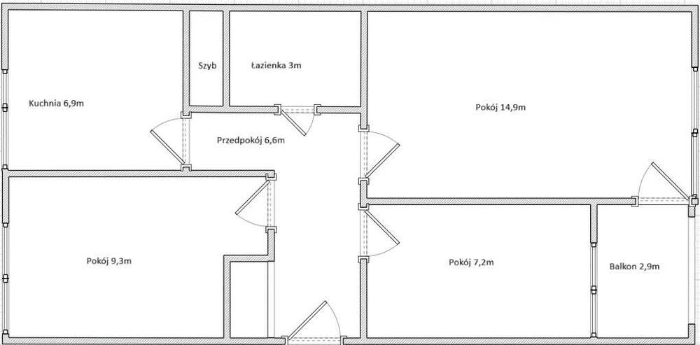
Powierzchnia: 47,90 m²
Liczba pokoi: 3 pokoje
Opis
Na sprzedaż gotowe do wprowadzenia 3 pokojowe mieszkanie o powierzchni 47,9 m2 usytuowane na pierwszym piętrze w ocieplonym bloku na Osiedlu Jasnym 17 w Dzierżoniowie. Składa się z trzech pokoi, kuchni, łazienki z WC oraz przedpokoju. Mieszkanie z balkonem, piwnicą i własnym miejscem parkingowym.
Stan techniczny:
Mieszkanie całkowicie odnowione, po generalnym remoncie obejmującym instalację elektryczną i hydrauliczną. Nowe okna PCV, drzwi wewnętrzne, panele na podłodze oraz odnowione ściany i sufity.
Wyposażenie:
Nowa, wyposażona łazienka (prysznic, umywalka, toaleta, meble wiszące)
Nowe meble kuchenne z wbudowanym okapem
Nowa płyta indukcyjna
Nowa szafa wnękowa
Drewniane drzwi wejściowe
Dodatkowe udogodnienia:
Salon południowo-zachodni, nasłoneczniony w ciągu dnia i dzięki temu odczuwalnie cieplejszy
Nowy balkon z oświetleniem
Własne miejsce parkingowe przypisane do mieszkania
Do mieszkania przynależy piwnica.
Ogrzewanie oraz ciepła woda z sieci miejskiej.
Mieszkanie pod zarządem spółdzielni mieszkaniowej.
Możliwość samodzielnego umeblowania mieszkania.
Lokalizacja:
W bezpośrednim sąsiedztwie znajdują się spokojny, zielony park, wesoły i bezpieczny plac zabaw, szkoła, przedszkole, centrum handlowe, przychodnia oraz komunikacja miejska. Jest to miejsce łączące spokój, bezpieczeństwo i wygodę.
Idealne dla rodziny, par lub jako inwestycja. Brak prowizji od kupującego.
Serdecznie zapraszam – zadzwoń lub napisz i umów się na oglądanie mieszkania.
Stan techniczny:
Mieszkanie całkowicie odnowione, po generalnym remoncie obejmującym instalację elektryczną i hydrauliczną. Nowe okna PCV, drzwi wewnętrzne, panele na podłodze oraz odnowione ściany i sufity.
Wyposażenie:
Nowa, wyposażona łazienka (prysznic, umywalka, toaleta, meble wiszące)
Nowe meble kuchenne z wbudowanym okapem
Nowa płyta indukcyjna
Nowa szafa wnękowa
Drewniane drzwi wejściowe
Dodatkowe udogodnienia:
Salon południowo-zachodni, nasłoneczniony w ciągu dnia i dzięki temu odczuwalnie cieplejszy
Nowy balkon z oświetleniem
Własne miejsce parkingowe przypisane do mieszkania
Do mieszkania przynależy piwnica.
Ogrzewanie oraz ciepła woda z sieci miejskiej.
Mieszkanie pod zarządem spółdzielni mieszkaniowej.
Możliwość samodzielnego umeblowania mieszkania.
Lokalizacja:
W bezpośrednim sąsiedztwie znajdują się spokojny, zielony park, wesoły i bezpieczny plac zabaw, szkoła, przedszkole, centrum handlowe, przychodnia oraz komunikacja miejska. Jest to miejsce łączące spokój, bezpieczeństwo i wygodę.
Idealne dla rodziny, par lub jako inwestycja. Brak prowizji od kupującego.
Serdecznie zapraszam – zadzwoń lub napisz i umów się na oglądanie mieszkania.
ID: 1043831861
xxx xxx xxx
Dodane 10 grudnia 2025
Słoneczne mieszkanie, 1 piętro, nowe 3 pokoje kuchnia łazienka balkon
386 000 zł
do negocjacji
Lokalizacja
Dzierżoniów
Dolnośląskie