Prywatne
Cena za m²: 6020.67 zł/m²
Rynek: Wtórny
Powierzchnia: 116,10 m²
Powierzchnia działki: 332 m²
Rodzaj zabudowy: Szeregowiec
Liczba pięter: Dwupiętrowy i więcej
Opis
Sprzedaż bez pośredników! Nieruchomość z czystą księgą wieczystą – brak hipotek, zadłużeń i jakichkolwiek obciążeń prawnych.
Cena za m²: 5.805,65 zł/m²
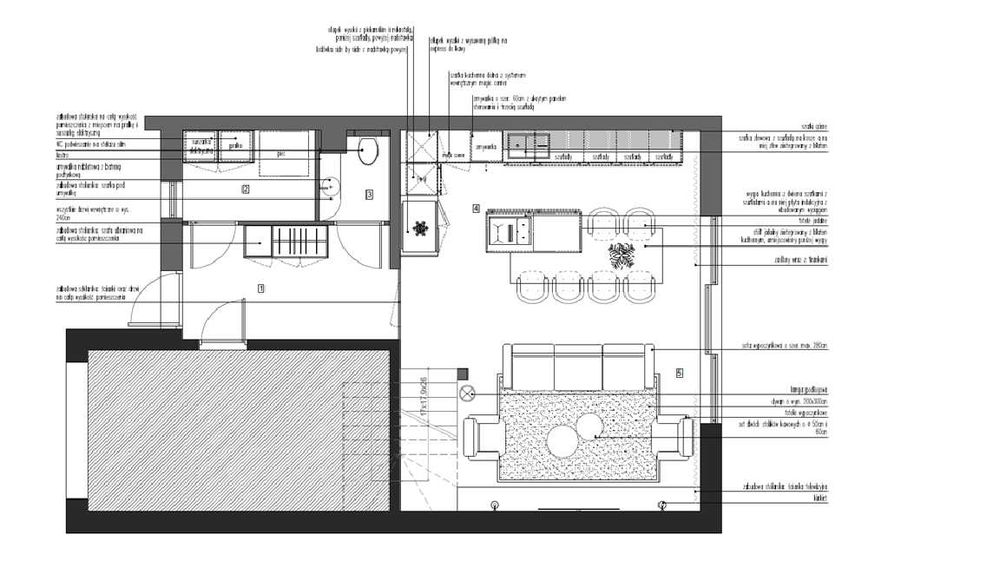
Dół to strefa dzienna salon połączony z kuchnią i jadalnią, WC, przedpokój, kotłownia wraz z pralnią i suszarnią.
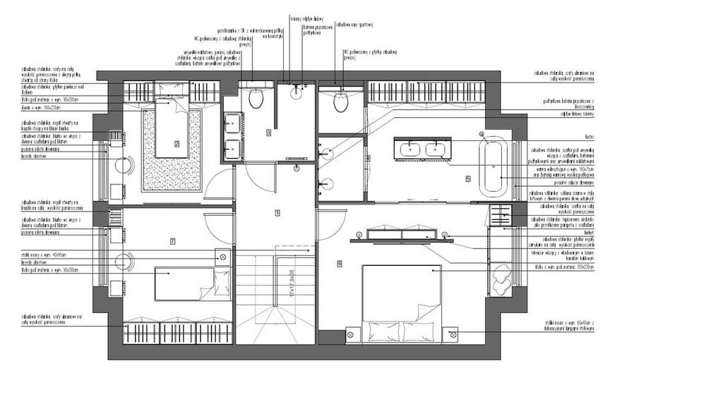
Na piętrze przedpokój, 2 pokoje po około 10 m², łazienka z prysznicem i podwójna umywalką, 1 duża sypialnia połączona z pokojem kąpielowym i garderobą- to pomieszczenie to "strefa rodziców" wyposażona w wannę oraz podwójny prysznic, podwójną umywalkę, wc).
Segment został wzbogacony już na etapie budowy o dodatkowe rozwiązania, które podnoszą komfort, funkcjonalność i wartość nieruchomości w porównaniu do standardowej oferty dewelopera.
Segment Sławacinek Stary, powierzchnia całkowita 136,9 m²
Na sprzedaż nowoczesny segment o powierzchni użytkowej 116,10 m² (bez garażu i kotłowni/pralni) na nowym, kameralnym osiedlu w Sławacinku Starym (oddanie w 2024 roku).
Dom wykonany w solidnej technologii murowanej, dwukondygnacyjny, z garażem i miejscem postojowym (przed nieruchomością można wydzielić dwa miejsca postojowe). Na parterze: wiatrołap 5,4 m², komunikacja 8,3 m², wc 2,0 m², kuchnia 6,8 m², pokój dzienny 26,10 m², pom. z kotłem pralnia 4,3 m², garaż 16,5 m²; Na piętrze: komunikacja 10 m², łazienka z garderobą 15,8 m², pokój "rodziców" 17,2 m², 1 pokój 10,3 m², 2 pokój 9,2 m², łazienka 5,0 m²
Segment w rozszerzonym standardzie deweloperskim obejmuje:
- wzmocnione poddasze z możliwością adaptacji (dodatkowy metraż nieruchomości na bawialnie/ biuro/ lub schowek; otwór/wejście na poddasze jest tak usytuowane aby można było zamontować na stałe schody spiralne)
- ogrzewanie podłogowe w całym domu
- na etapie budowy wykonano dedykowany kanał wentylacyjny pod okap zintegrowany z płytą indukcyjną (system typu downdraft), co eliminuje konieczność montażu tradycyjnego, wiszącego okapu.
- rozbudowaną instalację elektryczną i hydrauliczną
- wydzielone pomieszczenie z oknem w której przewidziano piec, wraz z pralnią i suszarnią
- wyprowadzone czujki ruchu oświetlenia schodów
- rolety zewnętrzne automatyczne
- podniesione nadproża drzwi wewnętrznych dzięki czemu zwiększają doświetlenie wnętrz i estetykę
- gotowy projekt wnętrza w cenie!
- możliwość modyfikacji aranżacji według własnych preferencji
- projektantka wnętrz – przygotuje pełną listę materiałów z ilościami oraz wskazaniem miejsc zakupu (za dodatkową opłatą)
Garaż + miejsce postojowe przed budynkiem (można wydzielić dwa miejsca postojowe)
Budynek murowany, 2-kondygnacyjny, wykonany z wysokiej jakości materiałów.
Media: woda, ścieki, prąd, gaz
Lokalizacja:
Nowe, spokojne osiedle w Sławacinku Starym – idealne miejsce dla rodzin lub osób szukających ciszy i komfortu, a jednocześnie blisko Białej Podlaskiej i pełnej infrastruktury.
Numer działki: 143/58
Obręb: 0033
Powierzchnia: 332 m²
Obwód: 84 m
Więcej zdjęć oraz wizualizacje projektu pokazuję podczas prezentacji. Posiadamy również zdjęcia z różnych etapów budowy oraz zdjęciacałej instalacji elektrycznej
Projekt wnętrza stanowi własność przyszłego nabywcy – zastrzegam wysyłanie oraz publikowanie jego materiałów graficznych.
Zadzwoń i umów się na prezentację!
Zamieszkaj w nowoczesnym segmencie gotowym na Twój wymarzony wystrój – z pomocą profesjonalnej projektantki
Cena za m²: 5.805,65 zł/m²
Dół to strefa dzienna salon połączony z kuchnią i jadalnią, WC, przedpokój, kotłownia wraz z pralnią i suszarnią.
Na piętrze przedpokój, 2 pokoje po około 10 m², łazienka z prysznicem i podwójna umywalką, 1 duża sypialnia połączona z pokojem kąpielowym i garderobą- to pomieszczenie to "strefa rodziców" wyposażona w wannę oraz podwójny prysznic, podwójną umywalkę, wc).
Segment został wzbogacony już na etapie budowy o dodatkowe rozwiązania, które podnoszą komfort, funkcjonalność i wartość nieruchomości w porównaniu do standardowej oferty dewelopera.
Segment Sławacinek Stary, powierzchnia całkowita 136,9 m²
Na sprzedaż nowoczesny segment o powierzchni użytkowej 116,10 m² (bez garażu i kotłowni/pralni) na nowym, kameralnym osiedlu w Sławacinku Starym (oddanie w 2024 roku).
Dom wykonany w solidnej technologii murowanej, dwukondygnacyjny, z garażem i miejscem postojowym (przed nieruchomością można wydzielić dwa miejsca postojowe). Na parterze: wiatrołap 5,4 m², komunikacja 8,3 m², wc 2,0 m², kuchnia 6,8 m², pokój dzienny 26,10 m², pom. z kotłem pralnia 4,3 m², garaż 16,5 m²; Na piętrze: komunikacja 10 m², łazienka z garderobą 15,8 m², pokój "rodziców" 17,2 m², 1 pokój 10,3 m², 2 pokój 9,2 m², łazienka 5,0 m²
Segment w rozszerzonym standardzie deweloperskim obejmuje:
- wzmocnione poddasze z możliwością adaptacji (dodatkowy metraż nieruchomości na bawialnie/ biuro/ lub schowek; otwór/wejście na poddasze jest tak usytuowane aby można było zamontować na stałe schody spiralne)
- ogrzewanie podłogowe w całym domu
- na etapie budowy wykonano dedykowany kanał wentylacyjny pod okap zintegrowany z płytą indukcyjną (system typu downdraft), co eliminuje konieczność montażu tradycyjnego, wiszącego okapu.
- rozbudowaną instalację elektryczną i hydrauliczną
- wydzielone pomieszczenie z oknem w której przewidziano piec, wraz z pralnią i suszarnią
- wyprowadzone czujki ruchu oświetlenia schodów
- rolety zewnętrzne automatyczne
- podniesione nadproża drzwi wewnętrznych dzięki czemu zwiększają doświetlenie wnętrz i estetykę
- gotowy projekt wnętrza w cenie!
- możliwość modyfikacji aranżacji według własnych preferencji
- projektantka wnętrz – przygotuje pełną listę materiałów z ilościami oraz wskazaniem miejsc zakupu (za dodatkową opłatą)
Garaż + miejsce postojowe przed budynkiem (można wydzielić dwa miejsca postojowe)
Budynek murowany, 2-kondygnacyjny, wykonany z wysokiej jakości materiałów.
Media: woda, ścieki, prąd, gaz
Lokalizacja:
Nowe, spokojne osiedle w Sławacinku Starym – idealne miejsce dla rodzin lub osób szukających ciszy i komfortu, a jednocześnie blisko Białej Podlaskiej i pełnej infrastruktury.
Numer działki: 143/58
Obręb: 0033
Powierzchnia: 332 m²
Obwód: 84 m
Więcej zdjęć oraz wizualizacje projektu pokazuję podczas prezentacji. Posiadamy również zdjęcia z różnych etapów budowy oraz zdjęciacałej instalacji elektrycznej
Projekt wnętrza stanowi własność przyszłego nabywcy – zastrzegam wysyłanie oraz publikowanie jego materiałów graficznych.
Zadzwoń i umów się na prezentację!
Zamieszkaj w nowoczesnym segmencie gotowym na Twój wymarzony wystrój – z pomocą profesjonalnej projektantki
ID: 1035960403
xxx xxx xxx
Odświeżono dnia 01 lutego 2026
Segment 136,9m² -stan deweloperski PLUS /narożna DUŻA działka/
699 000 zł
Lokalizacja
Sławacinek Stary
Lubelskie