Firmowe
Stan: Nowe
Opis
Oczyszczalnię biologiczna SBR METRIA . Przeznaczona do oczyszczania ścieków bytowo-gospodarczych i komunalnych, gdzie wymagane jest skuteczne oczyszczanie przy zmiennym obciążeniu.
Dzięki swojej specyficznej konstrukcji odporna jest na nadmiar ścieków, przeciążenia, wahania temperatury i chwilowy brak dopływu ścieków np.: z powodu wyjazdu na urlop. Dlatego do typowych zastosowań SBR należą również niewielkie jednostki osadnicze, kompleksy rekreacyjne i sportowe, hotele, ośrodki turystyczne.
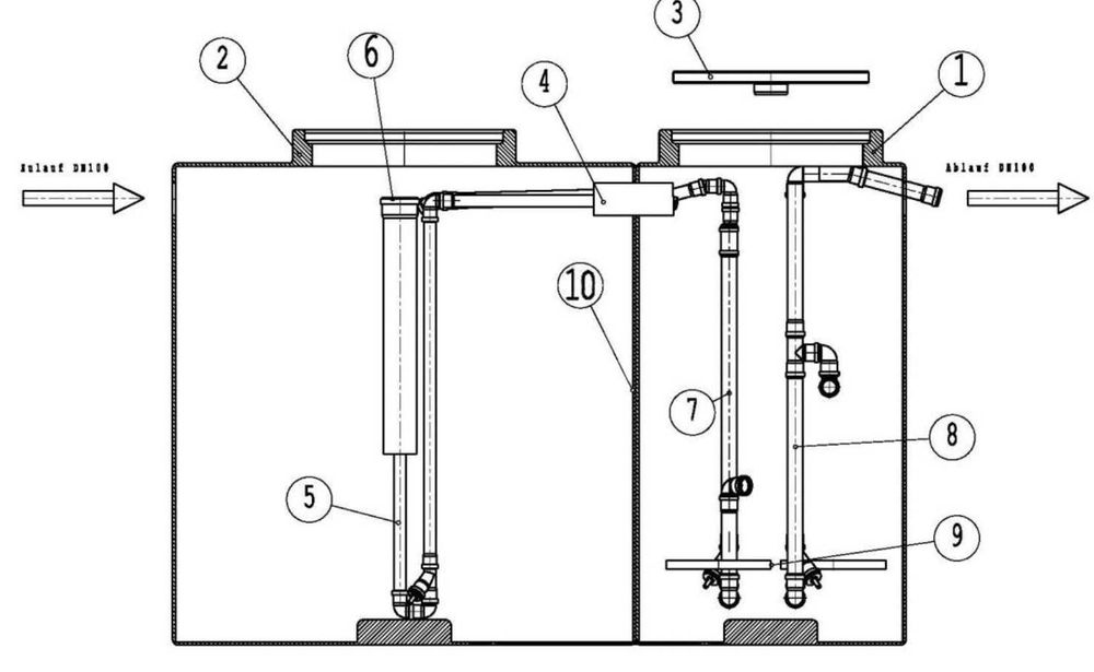
Technologia oczyszczania ścieków osadem czynnym w systemach porcjowych (SBR) oparta jest na sekwencyjnych reaktorach. Proces oczyszczania zachodzi cyklicznie i składa się z kilku faz.
Fazy oczyszczania ścieków w oczyszczalni biologicznej:
Faza wstępna – Zakończony proces dekantencji warstwy sklarowanych, oczyszczonych ścieków. Ścieki surowe dopływają do reaktora.
Faza mieszania i napełniania – Surowe ścieki nadal dopływają do reaktora w którym na przemian wytwarzane są warunki tlenowe i beztlenowe. Obciążenie osadu czynnego rośnie wraz z dopływającą ilością ścieków. Dzięki kontroli pracy urządzenia napowietrzającego symultanicznie przebiegają procesy nitryfikacji i denitryfikacji.
Faza końcowa – Koniec procesów technologicznych związanych z oczyszczaniem, poziom ścieków w zbiorniku zbliżą się do maksymalnego.
Faza sedymentacji – Wstrzymanie pracy urządzenia napowietrzająco-mieszającego. Rozpoczyna się proces sedymentacji osadu i klarowania ścieków.
Faza dekantacji i usuwania nadmiernego osadu – Po zakończeniu procesu sedymentacji osad czynny gromadzi się w warstwie przydennej odsłaniając warstwę sklarowanych ścieków. Następuje pompowa lub statyczna dekantacja ścieków oczyszczonych. Po zakończonym procesie usuwany jest nadmiar osadu.
Unikatowa konstrukcja zbiornika zapewnia bardzo dużą wytrzymałością na ściskanie dzięki specjalnej konstrukcji i gęstemu ożebrowaniu - dodatkowo wewnątrz zbiornika stalowe wzmocnienie.
poj zbiornika 3500L - RLM dla 4-6 osób
dokumentacja techniczna oczyszczalni zawierająca instrukcję obsługi, warunki gwarancyjne, certyfikaty i deklaracje.
oczyszczalnia SBR METRIA posiada oznakowanie CE – przebadana przez europejską notyfikowaną jednostkę badawczą na zgodność z normą PN – EN 12566-3+A2:2013
10 lat gwarancji na zbiornik i 2 lat na wyposażenie
Zapytaj o profesjonalny montaż oczyszczalni pod 692_807_706
www.tiktok.com/grand_eko
facebook.com/Grandeko
Cena 9700 netto 11 900 brutto
Dzięki swojej specyficznej konstrukcji odporna jest na nadmiar ścieków, przeciążenia, wahania temperatury i chwilowy brak dopływu ścieków np.: z powodu wyjazdu na urlop. Dlatego do typowych zastosowań SBR należą również niewielkie jednostki osadnicze, kompleksy rekreacyjne i sportowe, hotele, ośrodki turystyczne.
Technologia oczyszczania ścieków osadem czynnym w systemach porcjowych (SBR) oparta jest na sekwencyjnych reaktorach. Proces oczyszczania zachodzi cyklicznie i składa się z kilku faz.
Fazy oczyszczania ścieków w oczyszczalni biologicznej:
Faza wstępna – Zakończony proces dekantencji warstwy sklarowanych, oczyszczonych ścieków. Ścieki surowe dopływają do reaktora.
Faza mieszania i napełniania – Surowe ścieki nadal dopływają do reaktora w którym na przemian wytwarzane są warunki tlenowe i beztlenowe. Obciążenie osadu czynnego rośnie wraz z dopływającą ilością ścieków. Dzięki kontroli pracy urządzenia napowietrzającego symultanicznie przebiegają procesy nitryfikacji i denitryfikacji.
Faza końcowa – Koniec procesów technologicznych związanych z oczyszczaniem, poziom ścieków w zbiorniku zbliżą się do maksymalnego.
Faza sedymentacji – Wstrzymanie pracy urządzenia napowietrzająco-mieszającego. Rozpoczyna się proces sedymentacji osadu i klarowania ścieków.
Faza dekantacji i usuwania nadmiernego osadu – Po zakończeniu procesu sedymentacji osad czynny gromadzi się w warstwie przydennej odsłaniając warstwę sklarowanych ścieków. Następuje pompowa lub statyczna dekantacja ścieków oczyszczonych. Po zakończonym procesie usuwany jest nadmiar osadu.
Unikatowa konstrukcja zbiornika zapewnia bardzo dużą wytrzymałością na ściskanie dzięki specjalnej konstrukcji i gęstemu ożebrowaniu - dodatkowo wewnątrz zbiornika stalowe wzmocnienie.
poj zbiornika 3500L - RLM dla 4-6 osób
dokumentacja techniczna oczyszczalni zawierająca instrukcję obsługi, warunki gwarancyjne, certyfikaty i deklaracje.
oczyszczalnia SBR METRIA posiada oznakowanie CE – przebadana przez europejską notyfikowaną jednostkę badawczą na zgodność z normą PN – EN 12566-3+A2:2013
10 lat gwarancji na zbiornik i 2 lat na wyposażenie
Zapytaj o profesjonalny montaż oczyszczalni pod 692_807_706
www.tiktok.com/grand_eko
facebook.com/Grandeko
Cena 9700 netto 11 900 brutto
ID: 703312515
xxx xxx xxx