Firmowe
Poziom: 1
Powierzchnia: 114 m²
Przeznaczenie lokalu: Biurowe
Opis
Pomieszczenia w budynku przy hali magazynowej zlokalizowanej w Lubiczu Dolnym przy ul. Grębockiej.
Znajduje się przy drodze wojewódzkiej nr 552, w odległości 550 metrów od skrzyżowania z drogą krajową nr 10 oraz około 2 km od zjazdu z autostrady A4 (zjazd Lubicz)
Obiekt objęty jest monitoringiem oraz całodobową ochroną fizyczną w systemie 24/7.
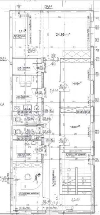
Obecnie do wynajęcia przygotowane jest trzy pomieszczenia o powierzchni odpowiednio 10,07 m², 14,86 m² oraz 24,95 m². Do ostatniego pomieszczenia przynależne jest zaplecze o powierzchni 6,3 m² ( również istnieje możliwość wynajmu).
Do każdego z pomieszczeń przynależy wspólna powierzchnia użytkowa (42,98m² w proporcji 1/3). Wysokość czynszu wynosi 23 zł/m², powierzchnia wspólna 11 zł/m² . Dodatkowo zostanie doliczona opłata administracyjna w wysokości 2 zł/m² netto opłata za ochronę 2,5 zł/m² netto, oraz zużyte media woda, korzystanie z energii elektrycznej, ogrzewanie.
Cena czynszu podana przy wynajmie wszystkich pomieszczeń.
Znajduje się przy drodze wojewódzkiej nr 552, w odległości 550 metrów od skrzyżowania z drogą krajową nr 10 oraz około 2 km od zjazdu z autostrady A4 (zjazd Lubicz)
Obiekt objęty jest monitoringiem oraz całodobową ochroną fizyczną w systemie 24/7.
Obecnie do wynajęcia przygotowane jest trzy pomieszczenia o powierzchni odpowiednio 10,07 m², 14,86 m² oraz 24,95 m². Do ostatniego pomieszczenia przynależne jest zaplecze o powierzchni 6,3 m² ( również istnieje możliwość wynajmu).
Do każdego z pomieszczeń przynależy wspólna powierzchnia użytkowa (42,98m² w proporcji 1/3). Wysokość czynszu wynosi 23 zł/m², powierzchnia wspólna 11 zł/m² . Dodatkowo zostanie doliczona opłata administracyjna w wysokości 2 zł/m² netto opłata za ochronę 2,5 zł/m² netto, oraz zużyte media woda, korzystanie z energii elektrycznej, ogrzewanie.
Cena czynszu podana przy wynajmie wszystkich pomieszczeń.
ID: 984902209
xxx xxx xxx
Dodane 14 października 2025
Pomieszczenia biurowe w dogodnej lokalizacji
1 755 zł
Lokalizacja
Lubicz Dolny
Kujawsko-pomorskie