Prywatne
Cena za m²: 8465.75 zł/m²
Poziom: 1
Umeblowane: Tak
Rynek: Wtórny
Rodzaj zabudowy: Kamienica
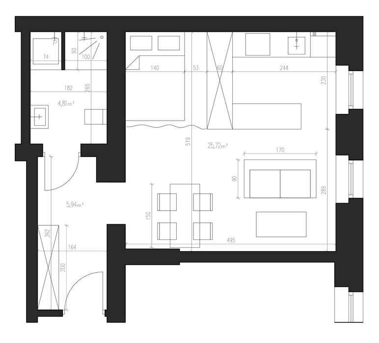
Powierzchnia: 36,50 m²
Liczba pokoi: 2 pokoje
Opis
Na sprzedaż wyjątkowe mieszkanie w stylu loft – po generalnym remoncie
Oferuję na sprzedaż klimatyczne mieszkanie w stylu loft, które zachwyca charakterem i nowoczesnym wykończeniem. Odsłonięta naturalna cegła, czarne płyty OSB, nastrojowe podświetlenia LED oraz starannie dobrane detale tworzą niepowtarzalne wnętrze z loftową duszą.
Mieszkanie o powierzchni 36,5 m² znajduje się na 1. piętrze czteropiętrowej kamienicy przy ul. św. Elżbiety. Lokal posiada oddzielną księgę wieczystą.
Mieszkanie przeszło generalny remont:
- wymieniono wszystkie instalacje (elektryczną, wentylację oraz wodno-kanalizacyjną),
- wykonano nową łazienkę,
- zamontowano sufity podwieszane o podwyższonej odporności ogniowej,
- położono gładzie oraz nowe podłogi.
Dodatkowo mieszkanie posiada umeblowaną kuchnię i sypialnię.
W kuchni znajduje się blat z mikrobetonu, a fronty szafy w sypialni wykonano z płyt OSB malowanych na czarno, co idealnie wpisuje się w loftowy charakter wnętrza.
Do ceny mieszkania trzeba doliczyć cenę mebli i wyposażenia agd łącznie 13.280zł
Również kamienica przeszła gruntowny remont:
- wyremontowano dach,
- wymieniono instalacje elektryczne i wodno-kanalizacyjne,
- wyremontowano klatkę schodową,
- zainstalowano monitoring,
- budynek został podłączony do ogrzewania miejskiego oraz ciepłej wody użytkowej,
- została wyremontowana i ocieplona elewacja budynku
Czynsz: 438 zł (zawiera ogrzewanie oraz ciepłą wodę).
Kamienica położona jest przy ulicy Chorzowskiej, która wkrótce przejdzie gruntowną przebudowę.
Cena do negocjacji.
Oferta prywatna – nie współpracuję z biurami nieruchomości.
Zapraszam do oglądania – zdjęcia nie oddają w pełni klimatu tego miejsca. To mieszkanie naprawdę warto zobaczyć na żywo :)
Dariusz Bernacki
tel: 78*****12
Oferuję na sprzedaż klimatyczne mieszkanie w stylu loft, które zachwyca charakterem i nowoczesnym wykończeniem. Odsłonięta naturalna cegła, czarne płyty OSB, nastrojowe podświetlenia LED oraz starannie dobrane detale tworzą niepowtarzalne wnętrze z loftową duszą.
Mieszkanie o powierzchni 36,5 m² znajduje się na 1. piętrze czteropiętrowej kamienicy przy ul. św. Elżbiety. Lokal posiada oddzielną księgę wieczystą.
Mieszkanie przeszło generalny remont:
- wymieniono wszystkie instalacje (elektryczną, wentylację oraz wodno-kanalizacyjną),
- wykonano nową łazienkę,
- zamontowano sufity podwieszane o podwyższonej odporności ogniowej,
- położono gładzie oraz nowe podłogi.
Dodatkowo mieszkanie posiada umeblowaną kuchnię i sypialnię.
W kuchni znajduje się blat z mikrobetonu, a fronty szafy w sypialni wykonano z płyt OSB malowanych na czarno, co idealnie wpisuje się w loftowy charakter wnętrza.
Do ceny mieszkania trzeba doliczyć cenę mebli i wyposażenia agd łącznie 13.280zł
Również kamienica przeszła gruntowny remont:
- wyremontowano dach,
- wymieniono instalacje elektryczne i wodno-kanalizacyjne,
- wyremontowano klatkę schodową,
- zainstalowano monitoring,
- budynek został podłączony do ogrzewania miejskiego oraz ciepłej wody użytkowej,
- została wyremontowana i ocieplona elewacja budynku
Czynsz: 438 zł (zawiera ogrzewanie oraz ciepłą wodę).
Kamienica położona jest przy ulicy Chorzowskiej, która wkrótce przejdzie gruntowną przebudowę.
Cena do negocjacji.
Oferta prywatna – nie współpracuję z biurami nieruchomości.
Zapraszam do oglądania – zdjęcia nie oddają w pełni klimatu tego miejsca. To mieszkanie naprawdę warto zobaczyć na żywo :)
Dariusz Bernacki
tel: 78*****12
ID: 1065927013
xxx xxx xxx
Dodane 09 kwietnia 2026
Piękne mieszkanie w stylu loft
309 000 zł
Lokalizacja
Gliwice, Śródmieście
Śląskie