Firmowe
Stan: Używane
Rok produkcji: 2013
Opis
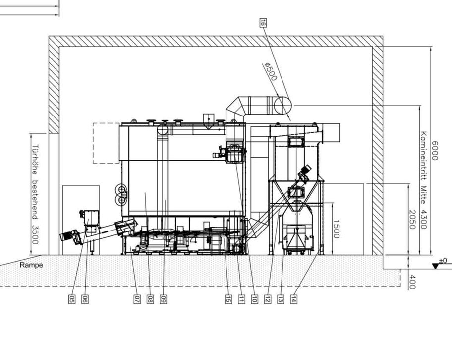
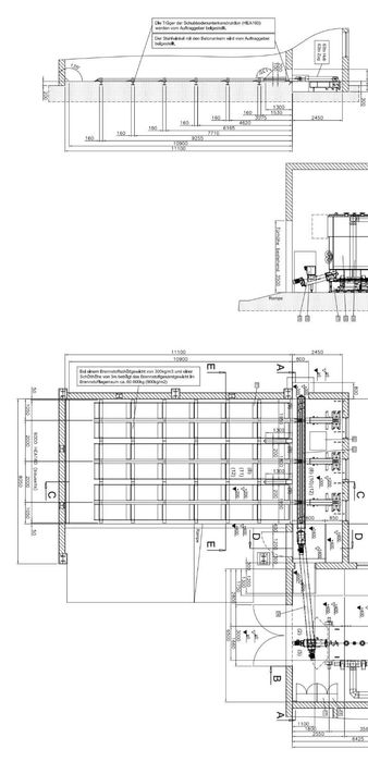
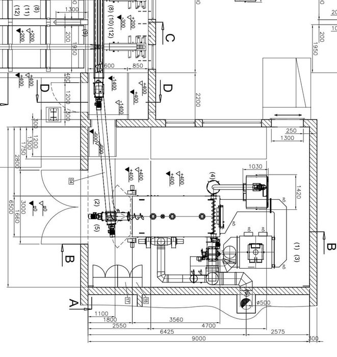
Kocioł na zrębki drzewne BINDER RRK 1200-1650 KW Wypalanie rusztu zasilającego spoiwo szamot , MOC 1650kW, rok budowy 2013, w tym sterowanie, w tym śruba zasilająca, w tym ochrona przed cofaniem się płomienia, w tym ruchoma podłoga, w tym śruby do transportu paliwa, w tym usuwanie popiołu, w tym usuwanie pyłu, w tym dokumentacja instalacji, instalacja
UWAGA musi zostać zdemontowana samodzielnie! wszystko w pełni funkcjonalne, instalacja dostępna natychmiast. Kotłownia była regularnie serwisowana wszystko jest w bardzo dobrym stanie zostanie wymieniana z powodu zwiększenia mocy do 3mW
W razie pytań zapraszam do kontaktu Łukasz
UWAGA musi zostać zdemontowana samodzielnie! wszystko w pełni funkcjonalne, instalacja dostępna natychmiast. Kotłownia była regularnie serwisowana wszystko jest w bardzo dobrym stanie zostanie wymieniana z powodu zwiększenia mocy do 3mW
W razie pytań zapraszam do kontaktu Łukasz
ID: 969598350
xxx xxx xxx
