Prywatne
Cena za m²: 4608.97 zł/m²
Rynek: Pierwotny
Powierzchnia: 156 m²
Powierzchnia działki: 228 m²
Rodzaj zabudowy: Szeregowiec
Liczba pięter: Dwupiętrowy i więcej
Opis
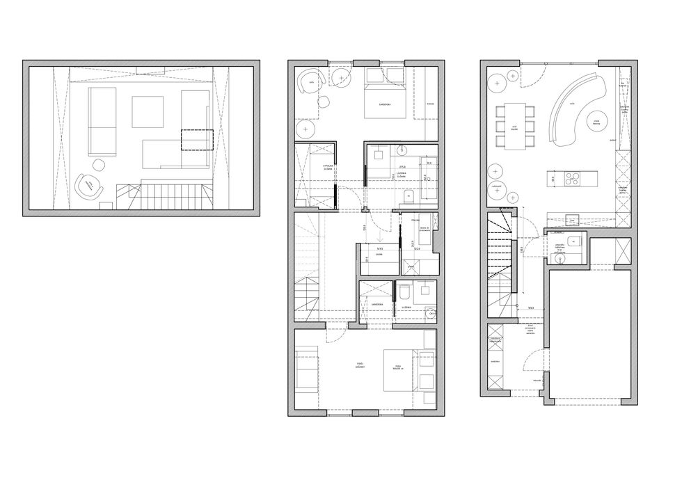
Atrakcyjny dom szeregowy 137,45 m² + garaż + 43m2 poddasza
Na sprzedaż skrajna szeregówka w stanie deweloperskim o powierzchni 137,45 m², położona na nowoczesnym Osiedlu Miłosza w Lublińcu. Budynek posiada największy ogród w całym szeregu,
Najważniejsze atuty nieruchomości:
Powierzchnia całkowita domu: 137,45 m²
Garaż w bryle budynku – 16,85 m² (1 stanowisko)
Przestronny ogród + taras – miejsce idealne na odpoczynek
Możliwość adaptacji strychu – dodatkowa przestrzeń według własnych potrzeb - 43m2 dodatkowe
Spokojna, zielona okolica z szybkim dojazdem do centrum i obwodnicy
Nowoczesna zabudowa – Osiedle Miłosza
Stan deweloperski – możliwość wykończenia według własnego projektu
Architekt może przy sprzedaży zaadaptować projekt lub przygotować go pod indywidualne potrzeby kupującego
Lokalizacja:
Osiedle Miłosza to nowoczesny kompleks budynków zaprojektowany z myślą o osobach ceniących spokojną i bezpieczną okolicę, jednocześnie pozostając blisko udogodnień miasta.
Dzięki położeniu osiedla:szybko dostaniesz się do ścisłego centrum Lublińca, wygodnie wyjedziesz z miasta obwodnicą DK11, omijając korki.
Dodatkowy atut – pełny projekt wykonawczy!
Do domu został wykonany kompletny projekt wykonawczy (ok. 100 stron), zawierający:
szczegółowe rzuty, instalacje i układ funkcjonalny, detale wykonawcze,
wizualizacje wnętrz, które pozwalają maksymalnie wykorzystać potencjał nieruchomości.
To ogromna oszczędność czasu i pieniędzy przy planowaniu wykończenia!
Informacje dodatkowe:
Dom został zakupiony jako inwestycja, jednak z uwagi na wydłużający się proces przekazania nieruchomości przez dewelopera plany uległy zmianie. Budynek jest gotowy do przejęcia przez nowego właściciela.
Na sprzedaż skrajna szeregówka w stanie deweloperskim o powierzchni 137,45 m², położona na nowoczesnym Osiedlu Miłosza w Lublińcu. Budynek posiada największy ogród w całym szeregu,
Najważniejsze atuty nieruchomości:
Powierzchnia całkowita domu: 137,45 m²
Garaż w bryle budynku – 16,85 m² (1 stanowisko)
Przestronny ogród + taras – miejsce idealne na odpoczynek
Możliwość adaptacji strychu – dodatkowa przestrzeń według własnych potrzeb - 43m2 dodatkowe
Spokojna, zielona okolica z szybkim dojazdem do centrum i obwodnicy
Nowoczesna zabudowa – Osiedle Miłosza
Stan deweloperski – możliwość wykończenia według własnego projektu
Architekt może przy sprzedaży zaadaptować projekt lub przygotować go pod indywidualne potrzeby kupującego
Lokalizacja:
Osiedle Miłosza to nowoczesny kompleks budynków zaprojektowany z myślą o osobach ceniących spokojną i bezpieczną okolicę, jednocześnie pozostając blisko udogodnień miasta.
Dzięki położeniu osiedla:szybko dostaniesz się do ścisłego centrum Lublińca, wygodnie wyjedziesz z miasta obwodnicą DK11, omijając korki.
Dodatkowy atut – pełny projekt wykonawczy!
Do domu został wykonany kompletny projekt wykonawczy (ok. 100 stron), zawierający:
szczegółowe rzuty, instalacje i układ funkcjonalny, detale wykonawcze,
wizualizacje wnętrz, które pozwalają maksymalnie wykorzystać potencjał nieruchomości.
To ogromna oszczędność czasu i pieniędzy przy planowaniu wykończenia!
Informacje dodatkowe:
Dom został zakupiony jako inwestycja, jednak z uwagi na wydłużający się proces przekazania nieruchomości przez dewelopera plany uległy zmianie. Budynek jest gotowy do przejęcia przez nowego właściciela.
ID: 1041962384
xxx xxx xxx
Dodane 05 grudnia 2025
Nowy dom z ogrodem, garażem – Osiedle Miłosza - 156m2 + poddasze
719 000 zł
Lokalizacja
Lubliniec
Śląskie