Prywatne
Cena za m²: 3350.36 zł/m²
Rynek: Pierwotny
Powierzchnia: 137 m²
Powierzchnia działki: 807 m²
Rodzaj zabudowy: Wolnostojący
Liczba pięter: Parterowy
Opis
Nowy dom parterowy 110 m² powierzchni użytkowej | 807 m² działki | 2 km od Zalewu Sulejowskiego | Twarda
Na sprzedaż nowy, parterowy dom wolnostojący w spokojnej, zielonej części miejscowości Twarda, zaledwie 2 km od Zalewu Sulejowskiego oraz 10 km od Tomaszowa Mazowieckiego. Idealna propozycja dla osób szukających komfortowego domu w otoczeniu natury, a jednocześnie blisko miasta.
Najważniejsze atuty:
Duża, ustawna działka 807 m² (35,5 × 23 m)
Spokojna okolica, widok na tereny zielone
Utwardzona droga dojazdowa (udział w drodze)
Możliwość personalizacji wnętrza według własnych potrzeb
Oszczędność czasu – bez formalności związanych z pozwoleniami i przyłączami
Parametry domu:
Projekt: „Dom w Lipiennikach 5” (z delikatnymi zmianami)
Powierzchnia zabudowy: 137 m²
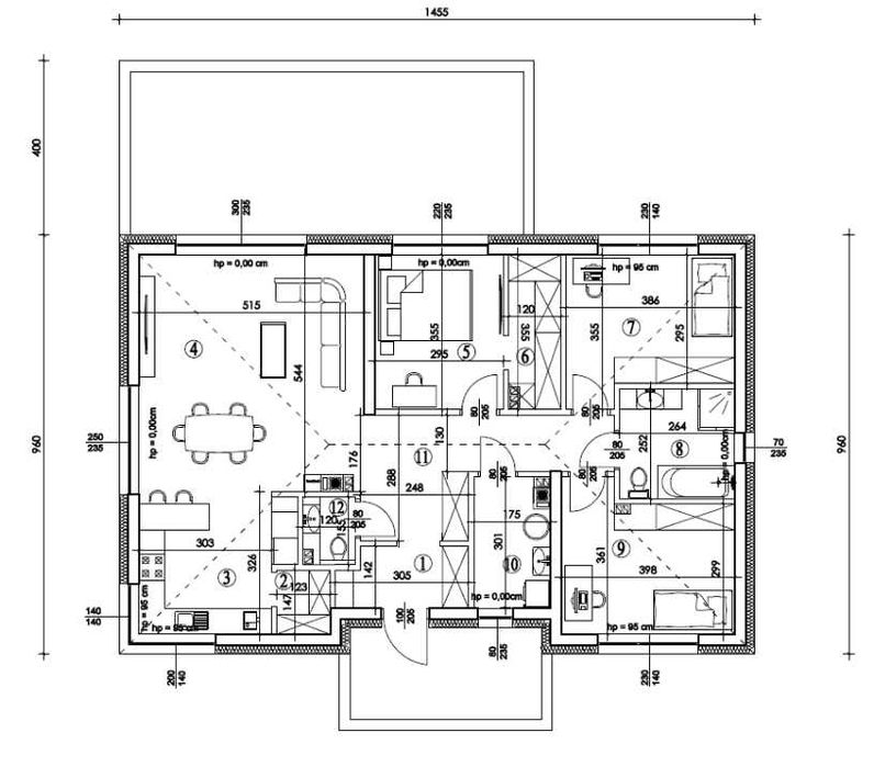
Powierzchnia użytkowa: ok. 110 m²
Wysokość pomieszczeń: 2,75m - 2.8m (podwyższony standard)
Rozkład:
Przestronny salon z miejscem na kominek
Kuchnia z jadalnią
Spiżarka
3 sypialnie
Łazienka + osobne WC
Kotłownia
Standard wykonania:
Ściany: pustak ceramiczny Termoton
Fundamenty ocieplone styropianem 15 cm
Strop żelbetowy
Dach kopertowy – więźba tradycyjna, blachodachówka grafitowa
Dwa kominy systemowe (kotłownia + salon/kominek)
Ogrodzenie panelowe z bramą i furtką w kolorze grafitowym
Wstępna wylewka z rozprowadzoną kanalizacją
Media:
-Przyłącze elektryczne
-Szambo
Etap realizacji:
Dom w trakcie budowy – zakończenie do stanu surowego otwartego planowane na I kwartał 2026 r.
Kupując na tym etapie, masz możliwość dopasowania wielu elementów pod własne potrzeby, bez długiego oczekiwania na formalności (warunki zabudowy, przyłącza, pozwolenia).
Opcja wykończenia:
Istnieje możliwość doprowadzenia domu do stanu deweloperskiego w ok. 4 miesiące ( tynki, wylewki, instalację, opaska z kostki, taras, schody, elewacja, wylewki, izolacje)
Koszt: ok. 200 000 zł
Dom gotowy do wykończenia czyli Stan Deweloperski w atrakcyjnej cenie około 650 000 zł
Zapraszam do kontaktu i na prezentację nieruchomości
Na sprzedaż nowy, parterowy dom wolnostojący w spokojnej, zielonej części miejscowości Twarda, zaledwie 2 km od Zalewu Sulejowskiego oraz 10 km od Tomaszowa Mazowieckiego. Idealna propozycja dla osób szukających komfortowego domu w otoczeniu natury, a jednocześnie blisko miasta.
Najważniejsze atuty:
Duża, ustawna działka 807 m² (35,5 × 23 m)
Spokojna okolica, widok na tereny zielone
Utwardzona droga dojazdowa (udział w drodze)
Możliwość personalizacji wnętrza według własnych potrzeb
Oszczędność czasu – bez formalności związanych z pozwoleniami i przyłączami
Parametry domu:
Projekt: „Dom w Lipiennikach 5” (z delikatnymi zmianami)
Powierzchnia zabudowy: 137 m²
Powierzchnia użytkowa: ok. 110 m²
Wysokość pomieszczeń: 2,75m - 2.8m (podwyższony standard)
Rozkład:
Przestronny salon z miejscem na kominek
Kuchnia z jadalnią
Spiżarka
3 sypialnie
Łazienka + osobne WC
Kotłownia
Standard wykonania:
Ściany: pustak ceramiczny Termoton
Fundamenty ocieplone styropianem 15 cm
Strop żelbetowy
Dach kopertowy – więźba tradycyjna, blachodachówka grafitowa
Dwa kominy systemowe (kotłownia + salon/kominek)
Ogrodzenie panelowe z bramą i furtką w kolorze grafitowym
Wstępna wylewka z rozprowadzoną kanalizacją
Media:
-Przyłącze elektryczne
-Szambo
Etap realizacji:
Dom w trakcie budowy – zakończenie do stanu surowego otwartego planowane na I kwartał 2026 r.
Kupując na tym etapie, masz możliwość dopasowania wielu elementów pod własne potrzeby, bez długiego oczekiwania na formalności (warunki zabudowy, przyłącza, pozwolenia).
Opcja wykończenia:
Istnieje możliwość doprowadzenia domu do stanu deweloperskiego w ok. 4 miesiące ( tynki, wylewki, instalację, opaska z kostki, taras, schody, elewacja, wylewki, izolacje)
Koszt: ok. 200 000 zł
Dom gotowy do wykończenia czyli Stan Deweloperski w atrakcyjnej cenie około 650 000 zł
Zapraszam do kontaktu i na prezentację nieruchomości
ID: 1008408662
Skontaktuj się
xxx xxx xxx
Dodane 25 lutego 2026
Nowy dom parterowy 110m², działka 800m², 2 km od Zalewu Sulejowskiego
459 000 zł
do negocjacji
Lokalizacja
Twarda
Łódzkie