Prywatne
Cena za m²: 6453.85 zł/m²
Rynek: Pierwotny
Powierzchnia: 130 m²
Powierzchnia działki: 513 m²
Rodzaj zabudowy: Bliźniak
Liczba pięter: Parterowy z użytkowym poddaszem
Opis
Na sprzedaż OSTATNI DOM 130m2 w stylu nowoczesnej STODOŁY.
Dom z działką o powierzchni 513m2 !!!
Domy wykonane z cegły leier 25P+W ocieplone styropianem 20cm. Na zewnątrz tynk silikonowo – silkatowy połączony z deską kompozytową drewnaną. Dach wykonany z blachy płaskiej na rąbek. Okna trzyszybowe firmy Drutex.
W środku wykonano instalację elektryczną oraz hydrauliczną. Rozprowadzony został inetrnet, alarm oraz tv. W domu zostały wykonane tynki gipsowe oraz wylewki. Na górze płyty karton-gips ocieplone PODWÓJNIE wełną mineralną.
Dom o podwyższonym standardzie deweloperskim - ogrzewanie podłogowe w całym budynku.
Ogrzewanie POMPĄ CIEPŁA Kaisai 7 kW SPLIT
Dookoła domu została ułożona kostka brukowa imitująca płyty tarasowe (podjazd oraz tarasy).
Zostało wykonane ogrodzenie panelowe firmy WIŚNIOWSKI ocynkowane i malowane proszkowo.
Bramy garażowe wyposażone w silnik, bramy wjazdowe z możliwością podłączenia automatu.
Doprowadzone zostały media : woda , prąd.
Kanalizacja – szambo 10m3
Na dom wystawiana fv VAT . Podana cena brutto.
Kupujący zwolnoniy z opłaty PCC 2%.
DOMY GOTOWE !!!
Parter
1. Wiatrołap 4,13 m²
2. Hol + schody 9,83 m²
3. Kuchnia 7,28 m²
4. Pokój dzienny 30,69 m²
5. Łazienka 2.50 m²
6. Kotłownia 5,39 m²
7. Garaż 17,65 m²
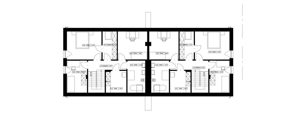
Poddasze
1. Korytarz 11,59 m²
2. Sypialnia 11,35 m²
3. Sypialnia 9,98 m²
4. Sypialnia 7,84 m²
5. Garderoba 5,16 m²
6. Pralnia 4,56m2
6. Łazienka 7,54 m²
CENA 839 000zł brutto DO NEGOCJACJI !!!
Kontakt : Tomek sprzedaż bezpośrednia !!!
Dom z działką o powierzchni 513m2 !!!
Domy wykonane z cegły leier 25P+W ocieplone styropianem 20cm. Na zewnątrz tynk silikonowo – silkatowy połączony z deską kompozytową drewnaną. Dach wykonany z blachy płaskiej na rąbek. Okna trzyszybowe firmy Drutex.
W środku wykonano instalację elektryczną oraz hydrauliczną. Rozprowadzony został inetrnet, alarm oraz tv. W domu zostały wykonane tynki gipsowe oraz wylewki. Na górze płyty karton-gips ocieplone PODWÓJNIE wełną mineralną.
Dom o podwyższonym standardzie deweloperskim - ogrzewanie podłogowe w całym budynku.
Ogrzewanie POMPĄ CIEPŁA Kaisai 7 kW SPLIT
Dookoła domu została ułożona kostka brukowa imitująca płyty tarasowe (podjazd oraz tarasy).
Zostało wykonane ogrodzenie panelowe firmy WIŚNIOWSKI ocynkowane i malowane proszkowo.
Bramy garażowe wyposażone w silnik, bramy wjazdowe z możliwością podłączenia automatu.
Doprowadzone zostały media : woda , prąd.
Kanalizacja – szambo 10m3
Na dom wystawiana fv VAT . Podana cena brutto.
Kupujący zwolnoniy z opłaty PCC 2%.
DOMY GOTOWE !!!
Parter
1. Wiatrołap 4,13 m²
2. Hol + schody 9,83 m²
3. Kuchnia 7,28 m²
4. Pokój dzienny 30,69 m²
5. Łazienka 2.50 m²
6. Kotłownia 5,39 m²
7. Garaż 17,65 m²
Poddasze
1. Korytarz 11,59 m²
2. Sypialnia 11,35 m²
3. Sypialnia 9,98 m²
4. Sypialnia 7,84 m²
5. Garderoba 5,16 m²
6. Pralnia 4,56m2
6. Łazienka 7,54 m²
CENA 839 000zł brutto DO NEGOCJACJI !!!
Kontakt : Tomek sprzedaż bezpośrednia !!!
ID: 1057269133
xxx xxx xxx
Odświeżono dzisiaj o 09:29
NOWY DOM KRZYWIEC RĄBIEŃ stan deweloperski 130m2
839 000 zł
Lokalizacja
Krzywiec
Łódzkie