Prywatne
Cena za m²: 5200 zł/m²
Rynek: Pierwotny
Powierzchnia: 100 m²
Powierzchnia działki: 1 000 m²
Rodzaj zabudowy: Wolnostojący
Liczba pięter: Parterowy
Opis
Oferujemy Państwu dom wolnostojący w trakcie budowy o powierzchni 100m², posadowiony na ogrodzonej działce 1000m². Inwestycja, której zakończenie planowane jest na maj 2026 roku, znajduje się w atrakcyjnej i spokojnej lokalizacji w Obrębku.
Kluczowe Informacje o Nieruchomości:
• Stan nieruchomości: Stan surowy zamknięty.
• Powierzchnia: Dom 100 m² + działka 1000 m
• Cena: 520 000 zł (5 200 zł/m²)
• Planowany termin oddania do użytku: Maj 2026 r
• Media: Prąd, woda, szambo.
Dlaczego warto kupić dom w trakcie budowy?
• Możliwość personalizacji: To Państwa szansa na wprowadzenie własnych zmian i adaptacji, aby dom w pełni odpowiadał potrzebom rodziny. Istnieje m.in. możliwość adaptacji poddasza.
• Korzyść finansowa: Atrakcyjna cena w fazie budowy pozwala na inwestycję w nieruchomość, która zyskuje na wartości.
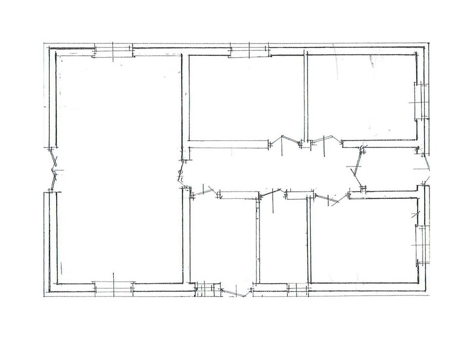
Funkcjonalny Projekt
Dom został zaprojektowany z myślą o praktycznym układzie pomieszczeń. Plan obejmuje 6 głównych pomieszczeń:
• Przestronną, otwartą przestrzeń dzienną (salon z jadalnią i kuchnią)
• Łazienkę
• Trzy sypialnie
• Kotłownię
Doskonale Skomunikowana i Cicha Lokalizacja
Nieruchomość położona jest w centrum urokliwej miejscowości Obrębek, gmina Pokrzywnica, oferując zarówno spokój, jak i doskonały dostęp do infrastruktury.
• Bliskość natury: Tylko 100 m do lasu – idealnie na spacery i aktywne spędzanie czasu.
• Dobra komunikacja: Ok. 40 km od Warszawy i 10 km od Pułtuska.
• Codzienna wygoda: W odległości 2 km znajduje się supermarket Dino, a 3 km do przedszkola.
To doskonała oferta dla tych, którzy szukają możliwości stworzenia domu na miarę swoich potrzeb w atrakcyjnej lokalizacji.
Zapraszam do kontaktu w celu uzyskania szczegółów i umówienia oględzin
Jarosław Klara
klara.jaroslawOgmail.com
Tel.: 6O1 &95 677
Kluczowe Informacje o Nieruchomości:
• Stan nieruchomości: Stan surowy zamknięty.
• Powierzchnia: Dom 100 m² + działka 1000 m
• Cena: 520 000 zł (5 200 zł/m²)
• Planowany termin oddania do użytku: Maj 2026 r
• Media: Prąd, woda, szambo.
Dlaczego warto kupić dom w trakcie budowy?
• Możliwość personalizacji: To Państwa szansa na wprowadzenie własnych zmian i adaptacji, aby dom w pełni odpowiadał potrzebom rodziny. Istnieje m.in. możliwość adaptacji poddasza.
• Korzyść finansowa: Atrakcyjna cena w fazie budowy pozwala na inwestycję w nieruchomość, która zyskuje na wartości.
Funkcjonalny Projekt
Dom został zaprojektowany z myślą o praktycznym układzie pomieszczeń. Plan obejmuje 6 głównych pomieszczeń:
• Przestronną, otwartą przestrzeń dzienną (salon z jadalnią i kuchnią)
• Łazienkę
• Trzy sypialnie
• Kotłownię
Doskonale Skomunikowana i Cicha Lokalizacja
Nieruchomość położona jest w centrum urokliwej miejscowości Obrębek, gmina Pokrzywnica, oferując zarówno spokój, jak i doskonały dostęp do infrastruktury.
• Bliskość natury: Tylko 100 m do lasu – idealnie na spacery i aktywne spędzanie czasu.
• Dobra komunikacja: Ok. 40 km od Warszawy i 10 km od Pułtuska.
• Codzienna wygoda: W odległości 2 km znajduje się supermarket Dino, a 3 km do przedszkola.
To doskonała oferta dla tych, którzy szukają możliwości stworzenia domu na miarę swoich potrzeb w atrakcyjnej lokalizacji.
Zapraszam do kontaktu w celu uzyskania szczegółów i umówienia oględzin
Jarosław Klara
klara.jaroslawOgmail.com
Tel.: 6O1 &95 677
ID: 1032436892
xxx xxx xxx
Dodane 15 października 2025
Nowy Dom 100m² z Działką 1000m² | Świetna Lokalizacja
520 000 zł
Lokalizacja
Obrębek
Mazowieckie
