Prywatne
Stan: Nowe
Opis
Przedstawiamy Państwu projekt Nowoczesnej Stodoły całorocznej o powierzchni zabudowy 54m2 i 108m2 powierzchni całkowitej w stanie deweloperskim gotowym do zamieszkania .
BEZ ŻADNYCH UKRYTYCH KOSZTÓW I NIE JASNYCH UMÓW !!
Co obejmuje kwota powyższego projektu :
-Pokrycie dachowe z nowoczesnej blachy na rąbek w kolorze antracyt
-Kominki wentylacyjne zainstalowane na dachu 2szt
-Izolacja budynku to wełna mineralna o gr 200mm
-Dodatkowa termika budynku za pomocą paroizolacji z ekranem termicznym na całej powierzchni budynku.
-Wiatroizolacja od strony zewnętrznej budynku
-Elwacja budynku pokryta deską elewacyjną świerkową zaimpregnowaną z palety kolorów do wyboru .
-Ściana kolankowa pokryta nowoczesną blachą na rąbek w kolorze antracyt
-Orynnowanie oraz wszelkie obróbki blacharskie w kolorze antracyt .
-Stolarka okienna w kolorze obustronnym antracyt .
-Wnętrze budynku wykończone do wyboru deska naturalna na pióro wpust lub płyty G-K.
-Podłogi wykończone panelem podłogowym 3 rodzaje do wyboru .
-Kompletna instalacja elektryczna wraz z puszkami w budynku
-Kompletna instalacja Wod-Kan w budynku
-Drewniane schody zabiegowe świerkowe
-Transport z montażem
-Projekt budowlany wraz z projektem płyty fundamentowej.
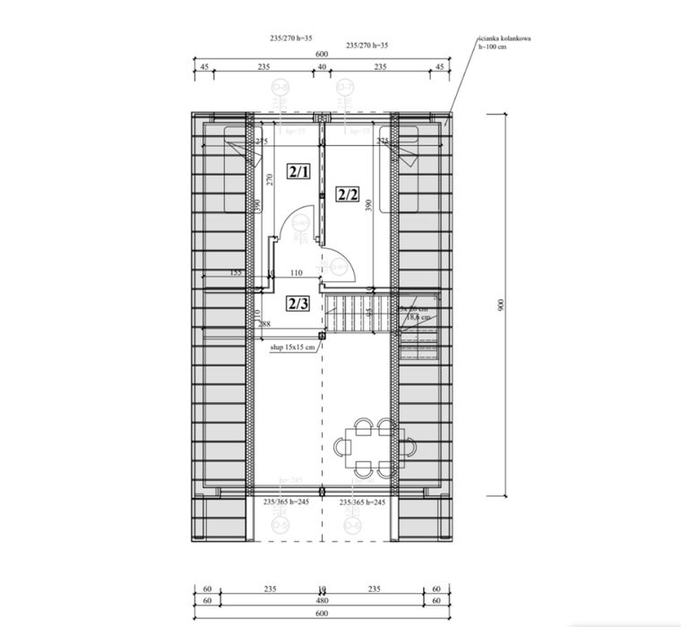
Rozmieszanie pomieszczeń :
-Na parterze duży salon z otwartym aneksem kuchennym oraz osobnym pomieszczeniem na łazienkę lub dodatkową sypialnią .
-Na piętrze dwie osobne sypialnie oraz osobne pomieszczenie na łazienkę lub garderobę przy zachowaniu antresoli .
Kwota nie obejmuje:
-Płyty fundamentowej
-Wylewki końcowej
-Ogrzewania budynku
-Drzwi wewnętrznych
-Białego montażu
Wszystkie przez nas budowane domy są wykonywane z najwyższą starannością z zastosowaniem markowych produktów budowlanych oraz zgodnie ze sztuką budowy domów w systemie szkieletowym oraz drewnie certyfikowanym C24 spełniającym najwyższą klasę wytrzymałościową oraz techniczną .Pomagamy również w przygotowaniach dokumentacji oraz posiadamy biuro projektowe .
W celu uzyskania większej ilości informacji zapraszamy do kontaktu telefonicznego , mailowego lub poprzez naszą stronę internetową .
Golden Barn
www.goldenbarn.pl
7 9 5 7 1 8 2 6 7
BEZ ŻADNYCH UKRYTYCH KOSZTÓW I NIE JASNYCH UMÓW !!
Co obejmuje kwota powyższego projektu :
-Pokrycie dachowe z nowoczesnej blachy na rąbek w kolorze antracyt
-Kominki wentylacyjne zainstalowane na dachu 2szt
-Izolacja budynku to wełna mineralna o gr 200mm
-Dodatkowa termika budynku za pomocą paroizolacji z ekranem termicznym na całej powierzchni budynku.
-Wiatroizolacja od strony zewnętrznej budynku
-Elwacja budynku pokryta deską elewacyjną świerkową zaimpregnowaną z palety kolorów do wyboru .
-Ściana kolankowa pokryta nowoczesną blachą na rąbek w kolorze antracyt
-Orynnowanie oraz wszelkie obróbki blacharskie w kolorze antracyt .
-Stolarka okienna w kolorze obustronnym antracyt .
-Wnętrze budynku wykończone do wyboru deska naturalna na pióro wpust lub płyty G-K.
-Podłogi wykończone panelem podłogowym 3 rodzaje do wyboru .
-Kompletna instalacja elektryczna wraz z puszkami w budynku
-Kompletna instalacja Wod-Kan w budynku
-Drewniane schody zabiegowe świerkowe
-Transport z montażem
-Projekt budowlany wraz z projektem płyty fundamentowej.
Rozmieszanie pomieszczeń :
-Na parterze duży salon z otwartym aneksem kuchennym oraz osobnym pomieszczeniem na łazienkę lub dodatkową sypialnią .
-Na piętrze dwie osobne sypialnie oraz osobne pomieszczenie na łazienkę lub garderobę przy zachowaniu antresoli .
Kwota nie obejmuje:
-Płyty fundamentowej
-Wylewki końcowej
-Ogrzewania budynku
-Drzwi wewnętrznych
-Białego montażu
Wszystkie przez nas budowane domy są wykonywane z najwyższą starannością z zastosowaniem markowych produktów budowlanych oraz zgodnie ze sztuką budowy domów w systemie szkieletowym oraz drewnie certyfikowanym C24 spełniającym najwyższą klasę wytrzymałościową oraz techniczną .Pomagamy również w przygotowaniach dokumentacji oraz posiadamy biuro projektowe .
W celu uzyskania większej ilości informacji zapraszamy do kontaktu telefonicznego , mailowego lub poprzez naszą stronę internetową .
Golden Barn
www.goldenbarn.pl
7 9 5 7 1 8 2 6 7
ID: 1012474471
xxx xxx xxx
Dodane 23 października 2025
Nowoczesna Stodoła 108m2 / Stan Deweloperski / Dom Drewniany
259 000 zł
Lokalizacja