Prywatne
Cena za m²: 5900 zł/m²
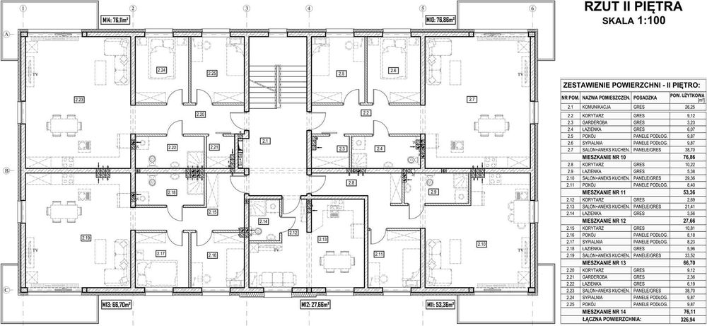
Poziom: 2
Umeblowane: Nie
Rynek: Pierwotny
Rodzaj zabudowy: Blok
Powierzchnia: 66,70 m²
Liczba pokoi: 3 pokoje
Opis
E&M Marcin Maliszewski to Najwyższa jakość w Najlepszej Cenie!
Zapraszamy do zapoznania się ofertą sprzedażową lokali mieszkalnych na nowoczesnym osiedlu w świetnej części Tuchomia!
Osiedle Słoneczna składać się będzie z dwóch, charakterystycznych, pięciokondygnacyjnych budynków.
Są one położone w bardzo atrakcyjnej części Tuchomia. Inwestycja będzie realizowana w III etapach.
I ETAP – II KWARTAŁ 2022 - Zakończony
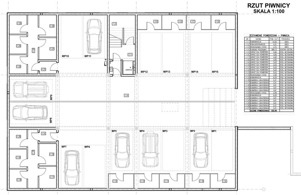
W pierwszym etapie inwestycji wybudowano budynek mieszkalny wielorodzinnego nr „B” położony na działce nr 754 w Tuchomiu. Budynek jest podpiwniczony, posiada 4 kondygnacje nadziemne, 1 kondygnację podziemną i poddasze nieużytkowe. W części podziemnej znajdują się przede wszystkim komórki lokatorskie, garaże dla rowerów, pomieszczenia gospodarcze i parking podziemny. Na kondygnacjach nadziemnych znajduje się 16 lokali mieszkalnych. W budynku zamontowano dźwig osobowy umożliwiający komunikację między piwnicą i parterem,
zapewniając w ten sposób dostęp do wszystkich pomieszczeń piwnicy i parteru dla osób poruszających się na wózkach inwalidzkich.
II ETAP – I KWARTAŁ 2025 - Zakończony
W drugim etapie inwestycji przewidziano wybudowanie budynku mieszkalnego wielorodzinnego nr „A” położonego na działce nr 754 w Tuchomiu. Budynek będzie podpiwniczony, posiadać będzie 4 kondygnacje nadziemne, 1 kondygnację podziemną i poddasze nieużytkowe. W części podziemnej znajdą się przede wszystkim komórki lokatorskie, garaże dla rowerów, pomieszczenia gospodarcze i parking podziemny. Na kondygnacjach nadziemnych znajdować się będzie 19 lokali mieszkalnych. W budynku przewidziano dźwig osobowy umożliwiający komunikację między piwnicą i parterem, zapewniając w ten sposób dostęp do wszystkich pomieszczeń piwnicy i parteru dla osób poruszających się na wózkach inwalidzkich.
III ETAP – III KWARTAŁ 2025 - Zakończony
W ramach trzeciego etapu inwestycji Deweloper zapewni bardzo dobrą ofertę dotyczącą aspektów życia codziennego. Zaplanowano miejsca wypoczynku, pasy zieleni a dla najmłodszych bezpieczny plac zabaw. Wszystko to po to by odpowiedzieć na potrzeby lokalnej społeczności.
Nasza oferta sprzedażowa w tym ogłoszeniu dotyczy realizacji II etapu inwestycji czyli sprzedaży jednego z 19 lokali mieszkalnych w stanie deweloperskim o wysokim standardzie:
• Okna PCV wielokomorowe 3-szybowe, o podwyższonej izolacyjności termicznej i akustycznej, okna dachowe trzyszybowe,
• Tynki w mieszkaniach - ściany nośne oraz ścianki działowe, sufity, tynki cementowo-wapienne nakładane maszynowo, zatarte na gładko,
• Instalacja C.O. wg projektu, wraz z osprzętem, we wszystkich pomieszczeniach ogrzewanie podłogowe wraz z szafą sterującą i głowicami regulacyjnymi na każdą pętlę, ogrzewanie z indywidualnych kotłów gazowych dwufunkcyjnych,
• Instalacja elektryczna wg projektu, w mieszkaniach - ułożona instalacja elektryczna wraz z wyłącznikami i gniazdami (bez wyposażenia w lampy świetlne), wraz z rozdzielnią
• Instalacja teletechniczna tv,
• Instalacja wentylacyjna – grawitacyjna, wspomagana mechanicznie
• Wideo-domofon
• Winda – przystosowana do obsługi osób niepełnosprawnych, poruszająca się od hali garażowej do poziomu "0",
• Hala garażowa: brama segmentowa aluminiowa, ocieplona, cichobieżna, unoszona mechanicznie,
Sam lokal mieszkalny nr 13 będący przedmiotem tego ogłoszenia znajduję się na 2 piętrze w budynku A. Jego powierzchnia użytkowa wynosi 66,70 mkw i składa się z 2 pokojów, 1 pokoju dziennego z aneksem kuchennym, łazienki i dużego korytarza.
Dodatkowo w bloku znajduje się 15 miejsc postojowych w hali garażowej w cenie jedynie 23000,00 PLN za miejsce! Dajemy zatem możliwość zakupu mieszkania wraz z miejscem postojowym. Ponadto do każdego z mieszkań przynależy jedna komórka w hali garażowej.
Zapraszamy do zapoznania się ofertą sprzedażową i rezerwacją mieszkania już dziś!
Zadzwoń i umów się na spotkanie, na miejscu możesz sprawdzić swoją zdolność kredytową oraz zrealizować cały proces finansowania inwestycji!
Jesteśmy dostępni od poniedziałku do piątku od godz 9 – 17 pod nr 69*******82 oraz można nas obserwować na stronie www.slonecznaosiedle.pl
Zapraszamy do zapoznania się ofertą sprzedażową lokali mieszkalnych na nowoczesnym osiedlu w świetnej części Tuchomia!
Osiedle Słoneczna składać się będzie z dwóch, charakterystycznych, pięciokondygnacyjnych budynków.
Są one położone w bardzo atrakcyjnej części Tuchomia. Inwestycja będzie realizowana w III etapach.
I ETAP – II KWARTAŁ 2022 - Zakończony
W pierwszym etapie inwestycji wybudowano budynek mieszkalny wielorodzinnego nr „B” położony na działce nr 754 w Tuchomiu. Budynek jest podpiwniczony, posiada 4 kondygnacje nadziemne, 1 kondygnację podziemną i poddasze nieużytkowe. W części podziemnej znajdują się przede wszystkim komórki lokatorskie, garaże dla rowerów, pomieszczenia gospodarcze i parking podziemny. Na kondygnacjach nadziemnych znajduje się 16 lokali mieszkalnych. W budynku zamontowano dźwig osobowy umożliwiający komunikację między piwnicą i parterem,
zapewniając w ten sposób dostęp do wszystkich pomieszczeń piwnicy i parteru dla osób poruszających się na wózkach inwalidzkich.
II ETAP – I KWARTAŁ 2025 - Zakończony
W drugim etapie inwestycji przewidziano wybudowanie budynku mieszkalnego wielorodzinnego nr „A” położonego na działce nr 754 w Tuchomiu. Budynek będzie podpiwniczony, posiadać będzie 4 kondygnacje nadziemne, 1 kondygnację podziemną i poddasze nieużytkowe. W części podziemnej znajdą się przede wszystkim komórki lokatorskie, garaże dla rowerów, pomieszczenia gospodarcze i parking podziemny. Na kondygnacjach nadziemnych znajdować się będzie 19 lokali mieszkalnych. W budynku przewidziano dźwig osobowy umożliwiający komunikację między piwnicą i parterem, zapewniając w ten sposób dostęp do wszystkich pomieszczeń piwnicy i parteru dla osób poruszających się na wózkach inwalidzkich.
III ETAP – III KWARTAŁ 2025 - Zakończony
W ramach trzeciego etapu inwestycji Deweloper zapewni bardzo dobrą ofertę dotyczącą aspektów życia codziennego. Zaplanowano miejsca wypoczynku, pasy zieleni a dla najmłodszych bezpieczny plac zabaw. Wszystko to po to by odpowiedzieć na potrzeby lokalnej społeczności.
Nasza oferta sprzedażowa w tym ogłoszeniu dotyczy realizacji II etapu inwestycji czyli sprzedaży jednego z 19 lokali mieszkalnych w stanie deweloperskim o wysokim standardzie:
• Okna PCV wielokomorowe 3-szybowe, o podwyższonej izolacyjności termicznej i akustycznej, okna dachowe trzyszybowe,
• Tynki w mieszkaniach - ściany nośne oraz ścianki działowe, sufity, tynki cementowo-wapienne nakładane maszynowo, zatarte na gładko,
• Instalacja C.O. wg projektu, wraz z osprzętem, we wszystkich pomieszczeniach ogrzewanie podłogowe wraz z szafą sterującą i głowicami regulacyjnymi na każdą pętlę, ogrzewanie z indywidualnych kotłów gazowych dwufunkcyjnych,
• Instalacja elektryczna wg projektu, w mieszkaniach - ułożona instalacja elektryczna wraz z wyłącznikami i gniazdami (bez wyposażenia w lampy świetlne), wraz z rozdzielnią
• Instalacja teletechniczna tv,
• Instalacja wentylacyjna – grawitacyjna, wspomagana mechanicznie
• Wideo-domofon
• Winda – przystosowana do obsługi osób niepełnosprawnych, poruszająca się od hali garażowej do poziomu "0",
• Hala garażowa: brama segmentowa aluminiowa, ocieplona, cichobieżna, unoszona mechanicznie,
Sam lokal mieszkalny nr 13 będący przedmiotem tego ogłoszenia znajduję się na 2 piętrze w budynku A. Jego powierzchnia użytkowa wynosi 66,70 mkw i składa się z 2 pokojów, 1 pokoju dziennego z aneksem kuchennym, łazienki i dużego korytarza.
Dodatkowo w bloku znajduje się 15 miejsc postojowych w hali garażowej w cenie jedynie 23000,00 PLN za miejsce! Dajemy zatem możliwość zakupu mieszkania wraz z miejscem postojowym. Ponadto do każdego z mieszkań przynależy jedna komórka w hali garażowej.
Zapraszamy do zapoznania się ofertą sprzedażową i rezerwacją mieszkania już dziś!
Zadzwoń i umów się na spotkanie, na miejscu możesz sprawdzić swoją zdolność kredytową oraz zrealizować cały proces finansowania inwestycji!
Jesteśmy dostępni od poniedziałku do piątku od godz 9 – 17 pod nr 69*******82 oraz można nas obserwować na stronie www.slonecznaosiedle.pl
ID: 1028483973
xxx xxx xxx
Dodane 13 października 2025
Nowe i słoneczne mieszkania w Tuchomiu! Gotowe do odbioru!
393 530 zł
Lokalizacja
Tuchomie
Pomorskie