Firmowe
Cena za m²: 5137.61 zł/m²
Rynek: Pierwotny
Powierzchnia: 109 m²
Powierzchnia działki: 315 m²
Rodzaj zabudowy: Bliźniak
Liczba pięter: Parterowy z użytkowym poddaszem
Opis
Nowe osiedle domów jednorodzinnych w Zduńskiej Woli przy ulicy Widawskiej to świetna lokalizacja, oraz nowoczesne, energooszczędne i ergonomiczne budynki dla osób chcących mieszkać w domu, który znajduje się na terenie miasta.
Świetna lokalizacja, dostęp do komunikacji miejskiej, szkoły i przedszkola to tylko niektóre atuty zamieszkania w jednym z tych domów.
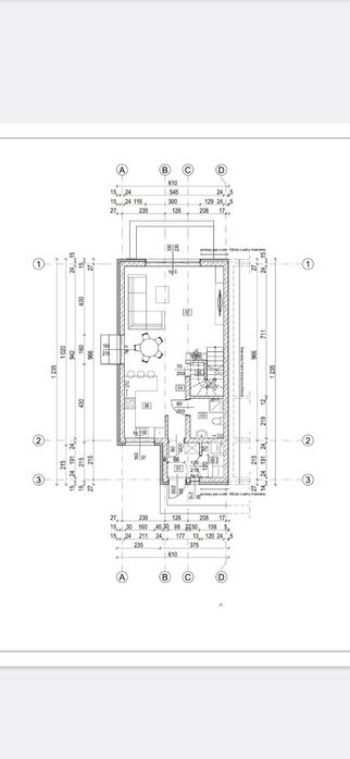
Sam dom oferuje:
Dolna kondygnacja to salon, kuchnia i jadalnia, oraz łazienka.
Poddasze to trzy sypialnie i łazienka.
Budynek zostanie przekazany nowemu właścicielowi w stanie deweloperskim.
Dane techniczne
Fundament
Ławy fundamentowe 60 cm x 40 cm, beton c 16/20, zbrojone drutem fi 12 strzemiono drut fi 6
Bloczek fundamentowy docieplony styropianem Aqua grubości 10 cm, obłożony folią kubełkową
Wylewka betonowa i grubości 10 cm.
Ściany zewnętrzne, nośne i działowe
Bloczki, beton komórkowy Solbet 24 cm, docieplone styropianem 15 cm+ klej, siatka i tynk cienkowarstwowy sylikonowy.
Ściany działowe, bloczek komórkowy grubości 12 cm.
Wieniec i słupy zbrojone drutem fi 12, strzemiona drut fi 6 co 25 cm.
Tynk gipsowy
Poddasze płyta G/K na ruszcie metalowym ,docieplone wełną o grubości 30 cm.
Schody strychowe
Instalacja wod - kan, instalacja elektryczna, instalacja alarmowa wyprowadzona pod czujniki, instalacja pod monitoring.
Ogrzewanie podłogowe
Wentylacją grawitacyjna
Posadzki docieplone styropianem 10 cm + wylewka ok. 7 cm.
Okna 3 szybowe + rolety antywłamaniowe
Parametry metalowe
Drzwi wejściowe
Strop system Teriva, docieplony styropianem 10 cm.
Dach
Więźba, membrana dachowa, łaty, kontrłaty
Dachówka betonowa Creaton KAPSTAD
Orynnowanie firmy Garnrat
Działka ogrodzona panelem ogrodzeniowym z podmurówką + brama i furtka.
Pompa ciepła KAISAI
Klimatyzacja
Oczyszczalnia biologiczna
Stelaż podtynkowy WC
Zestaw filtrów przepływowych.
Dodatkowo oferujemy projekt aranżacji wnętrz.
Inwestycja obejmuje cztery dwurodzinne budynki. Planowane oddanie pierwszych budynków to drugi kwartał 2025r.
Osoby zainteresowane zapraszam do kontaktu.
Pomagamy we wszystkich formalnościach związanych z zakupem nieruchomości, oraz formalnościach kredytowych.
Kupujący nie ponosi kosztów związanych z obsługą biura.
Współpracujemy z firmami remontowymi, które mogą pomóc w pracach wykończeniowych.
Dla Kupującego rabat 10% na zakupy w LEROY MERLIN.
Dane pochodzą od oferującego. Powyższy opis ma charakter informacyjny i nie stanowi oferty w rozumieniu Kodeksu Cywilnego
Świetna lokalizacja, dostęp do komunikacji miejskiej, szkoły i przedszkola to tylko niektóre atuty zamieszkania w jednym z tych domów.
Sam dom oferuje:
Dolna kondygnacja to salon, kuchnia i jadalnia, oraz łazienka.
Poddasze to trzy sypialnie i łazienka.
Budynek zostanie przekazany nowemu właścicielowi w stanie deweloperskim.
Dane techniczne
Fundament
Ławy fundamentowe 60 cm x 40 cm, beton c 16/20, zbrojone drutem fi 12 strzemiono drut fi 6
Bloczek fundamentowy docieplony styropianem Aqua grubości 10 cm, obłożony folią kubełkową
Wylewka betonowa i grubości 10 cm.
Ściany zewnętrzne, nośne i działowe
Bloczki, beton komórkowy Solbet 24 cm, docieplone styropianem 15 cm+ klej, siatka i tynk cienkowarstwowy sylikonowy.
Ściany działowe, bloczek komórkowy grubości 12 cm.
Wieniec i słupy zbrojone drutem fi 12, strzemiona drut fi 6 co 25 cm.
Tynk gipsowy
Poddasze płyta G/K na ruszcie metalowym ,docieplone wełną o grubości 30 cm.
Schody strychowe
Instalacja wod - kan, instalacja elektryczna, instalacja alarmowa wyprowadzona pod czujniki, instalacja pod monitoring.
Ogrzewanie podłogowe
Wentylacją grawitacyjna
Posadzki docieplone styropianem 10 cm + wylewka ok. 7 cm.
Okna 3 szybowe + rolety antywłamaniowe
Parametry metalowe
Drzwi wejściowe
Strop system Teriva, docieplony styropianem 10 cm.
Dach
Więźba, membrana dachowa, łaty, kontrłaty
Dachówka betonowa Creaton KAPSTAD
Orynnowanie firmy Garnrat
Działka ogrodzona panelem ogrodzeniowym z podmurówką + brama i furtka.
Pompa ciepła KAISAI
Klimatyzacja
Oczyszczalnia biologiczna
Stelaż podtynkowy WC
Zestaw filtrów przepływowych.
Dodatkowo oferujemy projekt aranżacji wnętrz.
Inwestycja obejmuje cztery dwurodzinne budynki. Planowane oddanie pierwszych budynków to drugi kwartał 2025r.
Osoby zainteresowane zapraszam do kontaktu.
Pomagamy we wszystkich formalnościach związanych z zakupem nieruchomości, oraz formalnościach kredytowych.
Kupujący nie ponosi kosztów związanych z obsługą biura.
Współpracujemy z firmami remontowymi, które mogą pomóc w pracach wykończeniowych.
Dla Kupującego rabat 10% na zakupy w LEROY MERLIN.
Dane pochodzą od oferującego. Powyższy opis ma charakter informacyjny i nie stanowi oferty w rozumieniu Kodeksu Cywilnego
ID: 961522233
Skontaktuj się
xxx xxx xxx
Dodane 03 stycznia 2026
Nowe domy Zduńska Wola,
560 000 zł
do negocjacji
Lokalizacja
Zduńska Wola
Łódzkie