Prywatne
Cena za m²: 2343.75 zł/m²
Rynek: Pierwotny
Powierzchnia: 160 m²
Powierzchnia działki: 17 000 m²
Rodzaj zabudowy: Wolnostojący
Liczba pięter: Parterowy z użytkowym poddaszem
Opis
Na sprzedaż
Działka usługowo budowlana / Dom 160 m2 + poddasze/ budynek gospodarczy Tarnów - Brzozówka
Polecam na sprzedaż nieruchomość składającą się z działki usługowo- budowlanej o łącznej powierzchni 17 ar.
Na gruncie dom o łącznej powierzchni 160m2.
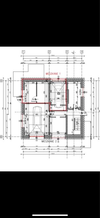
Budynek składa się z przyziemia, piętra oraz poddasza do adaptacji.
Przyziemie: 3 pomieszczenia gospodarczo- użytkowe, 40m2 garaż z kanałem.
Piętro : kuchnia , 4 pokoje, łazienka duży hall, klatka schodowa.
Poddasze : duża otwarta przestrzeń możliwa do adaptacji.
Materiał pustak ceramiczny / pustak betonowy / cegła pełna, Strop Kleina.
Budynek w stanie surowym otwartym, wybudowany solidnie, bez wilgoci.
Media : Prąd , woda , gaz na działce.
W chwili obecnej nieruchomość podzielona na część frontową- to 8 arowa działka usługowa z gotowymi warunkami na budowę hali lub budynku usługowo-handlowego do 250 m2.
Dom z przygotowanym projektem adaptacyjnym- podzielony na dwa osobne mieszkania na 1 piętrze oraz przyziemia w 2 równych częściach z miejscami garażowymi oraz techniczno-gospodarczymi- według załączonego projektu w materiale zdjęciowym tego ogłoszenia.
Poddasze to 2 odrębne mieszkania według projektu.
Dojazd do nieruchomości bezpośrednio z drogi głównej, droga wewnętrzna.
Budynek gospodarczy 40 m2.
Nieruchomość położona w atrakcyjnej lokalizacji tuż przy drodze krajowej 73 w miejscowości Brzozówka.
Ze względu na swoją lokalizacje to świetna inwestycja w nieruchomość mieszkaniową z gotowym projektem adaptacyjnym, z możliwością zabudowy usługowej.
Centrum Tarnowa 4km, Autostrada A4- 1,8 km, Lisia Góra- centrum 3km.
Sprzedaż bez pośredników , ogłoszenie prywatne
Cena ofertowa 375 000- za całość / budynek mieszkalny/działka budowlana/ działka usługowa.
Działka usługowo budowlana / Dom 160 m2 + poddasze/ budynek gospodarczy Tarnów - Brzozówka
Polecam na sprzedaż nieruchomość składającą się z działki usługowo- budowlanej o łącznej powierzchni 17 ar.
Na gruncie dom o łącznej powierzchni 160m2.
Budynek składa się z przyziemia, piętra oraz poddasza do adaptacji.
Przyziemie: 3 pomieszczenia gospodarczo- użytkowe, 40m2 garaż z kanałem.
Piętro : kuchnia , 4 pokoje, łazienka duży hall, klatka schodowa.
Poddasze : duża otwarta przestrzeń możliwa do adaptacji.
Materiał pustak ceramiczny / pustak betonowy / cegła pełna, Strop Kleina.
Budynek w stanie surowym otwartym, wybudowany solidnie, bez wilgoci.
Media : Prąd , woda , gaz na działce.
W chwili obecnej nieruchomość podzielona na część frontową- to 8 arowa działka usługowa z gotowymi warunkami na budowę hali lub budynku usługowo-handlowego do 250 m2.
Dom z przygotowanym projektem adaptacyjnym- podzielony na dwa osobne mieszkania na 1 piętrze oraz przyziemia w 2 równych częściach z miejscami garażowymi oraz techniczno-gospodarczymi- według załączonego projektu w materiale zdjęciowym tego ogłoszenia.
Poddasze to 2 odrębne mieszkania według projektu.
Dojazd do nieruchomości bezpośrednio z drogi głównej, droga wewnętrzna.
Budynek gospodarczy 40 m2.
Nieruchomość położona w atrakcyjnej lokalizacji tuż przy drodze krajowej 73 w miejscowości Brzozówka.
Ze względu na swoją lokalizacje to świetna inwestycja w nieruchomość mieszkaniową z gotowym projektem adaptacyjnym, z możliwością zabudowy usługowej.
Centrum Tarnowa 4km, Autostrada A4- 1,8 km, Lisia Góra- centrum 3km.
Sprzedaż bez pośredników , ogłoszenie prywatne
Cena ofertowa 375 000- za całość / budynek mieszkalny/działka budowlana/ działka usługowa.
ID: 941033626
xxx xxx xxx
Dodane 02 grudnia 2025
NOWA CENA Oferta, dom z projektem duza dzialka wsuper cenie
375 000 zł
do negocjacji
Lokalizacja
Tarnów
Małopolskie