Prywatne
Cena za m²: 2933.33 zł/m²
Rynek: Wtórny
Powierzchnia: 300 m²
Powierzchnia działki: 2 400 m²
Rodzaj zabudowy: Gospodarstwo
Liczba pięter: Jednopiętrowy
Opis
Do sprzedania dom o powierzchni 300m2 na działce 2500m2 w Chromcu
działka budowlana+ zabudowania gospodarcze
możliwość dokupienia przyległej działki budowlanej 3000m2
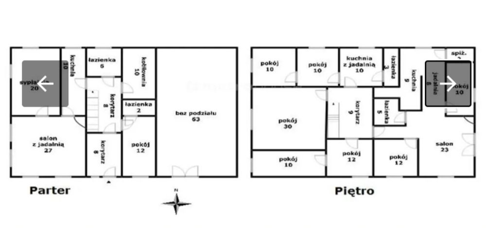
parter: przestronny salon, sypialnia, łazienka oraz kuchnia z kuchnią węglową,
dodatkowo pokój z łazienką i ogrzewaniem podłogowym
przyległe dwa pomieszczenia gospodarcze z wyjściem do ogrodu
zejście do dużej piwnicy 35m2
I piętro: osobne mieszkanie: pokój, kuchnia, jadalnia, łazienka
drugie mieszkanie: dwa pokoje, salon, jadalnia, łazienka oraz kuchnia ze spiżarnią + przygotowane do zrobienia niezależne wejście od podwórka, na całym mieszkaniu
ogrzewanie podłogowe
opcja zrobienia trzeciego mieszkania 3 pokojowego ( zrobione podłączenie wodno-kanalizacyjne)
strych: ponad 100m2 powierzchni ze skosami daje wiele możliwości aranżacyjnych
parter z kamienia i cegły, zrobione wylewki z dociepleniem, 2 piwnice
ogrzewanie piecem stałopalnym, możliwość przełączenia na ogrzewanie elektryczne
we wrześniu 2024 r. został zrobiony nowy dach ( dachówka ceramiczna), dwa nowe kominy od parteru, wymieniono wszystkie okna dachowe na drewniane.
Idealna propozycja dla większej rodziny lub na działalność turystyczną!
działka budowlana+ zabudowania gospodarcze
możliwość dokupienia przyległej działki budowlanej 3000m2
parter: przestronny salon, sypialnia, łazienka oraz kuchnia z kuchnią węglową,
dodatkowo pokój z łazienką i ogrzewaniem podłogowym
przyległe dwa pomieszczenia gospodarcze z wyjściem do ogrodu
zejście do dużej piwnicy 35m2
I piętro: osobne mieszkanie: pokój, kuchnia, jadalnia, łazienka
drugie mieszkanie: dwa pokoje, salon, jadalnia, łazienka oraz kuchnia ze spiżarnią + przygotowane do zrobienia niezależne wejście od podwórka, na całym mieszkaniu
ogrzewanie podłogowe
opcja zrobienia trzeciego mieszkania 3 pokojowego ( zrobione podłączenie wodno-kanalizacyjne)
strych: ponad 100m2 powierzchni ze skosami daje wiele możliwości aranżacyjnych
parter z kamienia i cegły, zrobione wylewki z dociepleniem, 2 piwnice
ogrzewanie piecem stałopalnym, możliwość przełączenia na ogrzewanie elektryczne
we wrześniu 2024 r. został zrobiony nowy dach ( dachówka ceramiczna), dwa nowe kominy od parteru, wymieniono wszystkie okna dachowe na drewniane.
Idealna propozycja dla większej rodziny lub na działalność turystyczną!
ID: 1032719302
xxx xxx xxx
Dodane 16 grudnia 2025
Nowa cena Dom w pięknej okolicy
880 000 zł
Lokalizacja
Chromiec
Dolnośląskie