Prywatne
Opis
Na sprzedaż – Sklep spożywczo-przemysłowy z działką nad jeziorem
Lokalizacja: Piasutno 25A k. Świętajna (woj. warmińsko-mazurskie)
Cena: do negocjacji
Oferuję na sprzedaż dobrze prosperujący sklep spożywczo-przemysłowy zlokalizowany w malowniczej miejscowości Piasutno, zaledwie 50 metrów od jeziora Piastuno. Nieruchomość obejmuje budynek handlowy oraz działkę o powierzchni 0,0505 ha, z bezpośrednim dostępem do drogi publicznej.
Parametry nieruchomości:
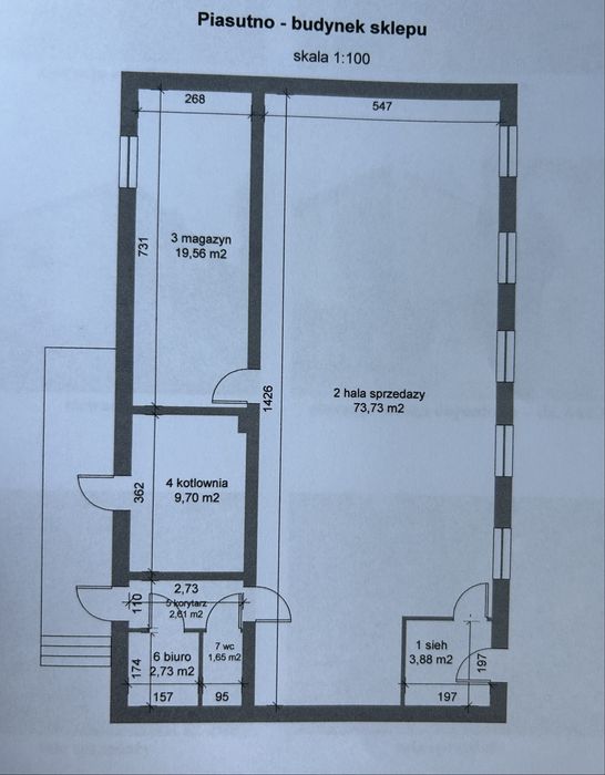
• Powierzchnia zabudowy: 140 m²
• Powierzchnia użytkowa: 113,85 m²
• Rok budowy: lata 70.
• Fundamenty: betonowe
• Dach: jednospadowy, kryty blachą
• Okna: PCV
• Elewacja: tynk zwykły, ocieplenie
• Układ funkcjonalny: korzystny, z możliwością adaptacji
Uzbrojenie techniczne:
• energia elektryczna
• woda z wodociągu wiejskiego
• kanalizacja wiejska
• instalacja telekomunikacyjna
• ogrzewanie CO
Stan zagospodarowania:
• działka ogrodzona
• bezpośredni wjazd z drogi publicznej
• wydzielony parking dla klientów
Atuty lokalizacji:
• tylko 50 m od brzegu jeziora Piastuno – idealne miejsce na sklep, punkt usługowy lub obiekt turystyczny
• spokojna okolica sprzyjająca rekreacji
• bliskość natury i atrakcji turystycznych regionu Warmii i Mazur
Możliwości wykorzystania:
• kontynuacja działalności handlowej
• adaptacja pod gastronomię, pensjonat, dom letniskowy lub całoroczny
W celu kontaktu proszę o wiadomość prywatną :)
Udzielamy informacji również na miejscu :)
66*******36
50*******02
Lokalizacja: Piasutno 25A k. Świętajna (woj. warmińsko-mazurskie)
Cena: do negocjacji
Oferuję na sprzedaż dobrze prosperujący sklep spożywczo-przemysłowy zlokalizowany w malowniczej miejscowości Piasutno, zaledwie 50 metrów od jeziora Piastuno. Nieruchomość obejmuje budynek handlowy oraz działkę o powierzchni 0,0505 ha, z bezpośrednim dostępem do drogi publicznej.
Parametry nieruchomości:
• Powierzchnia zabudowy: 140 m²
• Powierzchnia użytkowa: 113,85 m²
• Rok budowy: lata 70.
• Fundamenty: betonowe
• Dach: jednospadowy, kryty blachą
• Okna: PCV
• Elewacja: tynk zwykły, ocieplenie
• Układ funkcjonalny: korzystny, z możliwością adaptacji
Uzbrojenie techniczne:
• energia elektryczna
• woda z wodociągu wiejskiego
• kanalizacja wiejska
• instalacja telekomunikacyjna
• ogrzewanie CO
Stan zagospodarowania:
• działka ogrodzona
• bezpośredni wjazd z drogi publicznej
• wydzielony parking dla klientów
Atuty lokalizacji:
• tylko 50 m od brzegu jeziora Piastuno – idealne miejsce na sklep, punkt usługowy lub obiekt turystyczny
• spokojna okolica sprzyjająca rekreacji
• bliskość natury i atrakcji turystycznych regionu Warmii i Mazur
Możliwości wykorzystania:
• kontynuacja działalności handlowej
• adaptacja pod gastronomię, pensjonat, dom letniskowy lub całoroczny
W celu kontaktu proszę o wiadomość prywatną :)
Udzielamy informacji również na miejscu :)
66*******36
50*******02
ID: 1020001608
Skontaktuj się
Dodane 10 października 2025
Nieruchomość z potencjalem - sklep spozywczy
495 000 zł
do negocjacji
Lokalizacja
Piasutno
Warmińsko-mazurskie