Firmowe
Cena za m²: 6900 zł/m²
Poziom: 2
Umeblowane: Nie
Rynek: Pierwotny
Rodzaj zabudowy: Blok
Powierzchnia: 78,32 m²
Liczba pokoi: 3 pokoje
Opis
Na sprzedaż przestronne i funkcjonalne mieszkanie o powierzchni 78,32 m², położone na II piętrze nowoczesnego bloku z windą na osiedlu Powiśle.
Lokal zaprojektowany z myślą o komforcie i funkcjonalności – idealny dla rodziny lub osób ceniących przestrzeń.
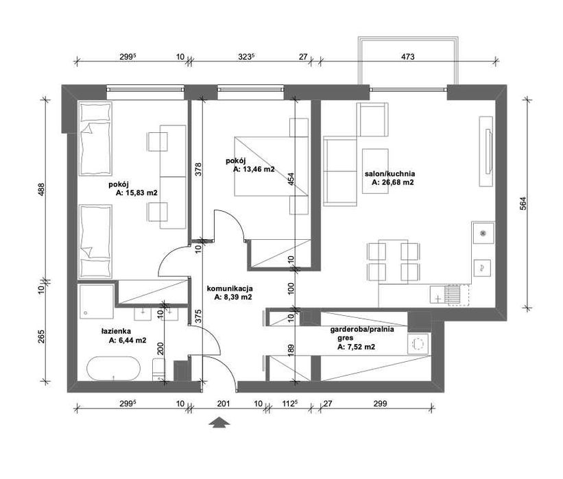
Projektowany układ pomieszczeń:
- Salon z aneksem kuchennym – 26,68 m²
- Pokój 1 – 13,46 m²
- Pokój 2 – 15,83 m²
- Łazienka – 6,44 m²
- Garderoba / pralnia – 7,52 m²
- Komunikacja – 8,39 m²
Wysokość pomieszczeń: 2,52 m
Dodatkowe informacje:
- winda w budynku,
- nowoczesna architektura i spokojna okolica,
- aranżacja wnętrza w projekcie ma charakter poglądowy,
- mieszkanie w stanie deweloperskim.
Biuro sprzedaży mieszkań:
Lipsko, ul. Zwoleńska (przy wjeździe na osiedle "Powiśle")
Lokal zaprojektowany z myślą o komforcie i funkcjonalności – idealny dla rodziny lub osób ceniących przestrzeń.
Projektowany układ pomieszczeń:
- Salon z aneksem kuchennym – 26,68 m²
- Pokój 1 – 13,46 m²
- Pokój 2 – 15,83 m²
- Łazienka – 6,44 m²
- Garderoba / pralnia – 7,52 m²
- Komunikacja – 8,39 m²
Wysokość pomieszczeń: 2,52 m
Dodatkowe informacje:
- winda w budynku,
- nowoczesna architektura i spokojna okolica,
- aranżacja wnętrza w projekcie ma charakter poglądowy,
- mieszkanie w stanie deweloperskim.
Biuro sprzedaży mieszkań:
Lipsko, ul. Zwoleńska (przy wjeździe na osiedle "Powiśle")
ID: 1036463478
xxx xxx xxx
Dodane 11 listopada 2025
Na sprzedaż nowe mieszkanie 78 m², Osiedle Powiśle – blok z windą
540 408 zł
Lokalizacja
Lipsko
Mazowieckie