Prywatne
Cena za m²: 18322.98 zł/m²
Poziom: Parter
Umeblowane: Nie
Rynek: Wtórny
Rodzaj zabudowy: Apartamentowiec
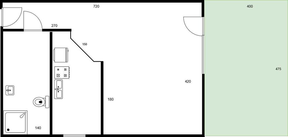
Powierzchnia: 32,20 m²
Liczba pokoi: 1 pokój
Opis
*Fell free to write or speak with me in English*
Na sprzedaż mieszkanie o powierzchni 32,20 m², usytuowane na parterze kameralnego, trzymieszkaniowego budynku szeregowego. To idealna propozycja dla osób szukających komfortu, prywatności i zielonej przestrzeni w spokojnej części miasta.
Mieszkanie ogrzewane jest nowym dwufunkcyjnym piecem kondensacyjnym, a wszystkie instalacje znajdują się w bardzo dobrym stanie. Dostępny jest również światłowód, co gwarantuje szybki i stabilny internet.
Wnętrze składa się z przestronnego pokoju dziennego z częściowo zabudowanym aneksem kuchennym oraz wyjściem do ogrodzonego, zagospodarowanego ogródka o powierzchni 19 m² (z odrębną księgą wieczystą, niezwiązanego ze wspólnotą).
Okolica wyróżnia się ciszą, spokojem i kameralnym sąsiedztwem. Lokalizacja zapewnia doskonałą komunikację – jedynie 3 minuty pieszo do przystanku autobusowego, z którego autobusy kursują bardzo często (co 5 minut w godzinach szczytu, co 10–15 minut poza nimi).
Atuty: prywatny ogródek 19 m², kameralny budynek – tylko 3 mieszkania, nowoczesne i tanie ogrzewanie i bdb stan instalacji, dostęp do światłowodu, świetna komunikacja z centrum miasta.
Czynsz miesięczny tylko 200 PLN.
Pośrednicy wykluczeni.
For Sale: 32.20 m² Apartment with Private Garden in Kliny-Zacisze
I offer a 32.20 m² apartment located on the ground floor of an intimate, three-unit terraced building. This is an ideal choice for those seeking comfort, privacy, and a touch of greenery in a peaceful part of the city.
The apartment is equipped with a new dual-function condensing boiler, and all installations are in excellent condition. Fiber-optic internet is also available, ensuring fast and reliable connectivity.
The interior consists of a spacious living room with a partially fitted kitchenette and direct access to a fenced, well-maintained private garden of 19 m² (with a separate land and mortgage register, not part of the housing community).
The area is quiet and serene, with a small and friendly neighborhood. The location offers excellent transport connections – only a 3-minute walk to the bus stop, with very frequent service (every 5 minutes during peak hours, every 10–15 minutes off-peak).
Key features:
private 19 m² garden, intimate building with only 3 apartments, modern heating system and excellent technical condition, fiber-optic internet available, great connectivity to the city center.
Very low monthly maintenance fee – only 200 PLN.
No agents, please.
Na sprzedaż mieszkanie o powierzchni 32,20 m², usytuowane na parterze kameralnego, trzymieszkaniowego budynku szeregowego. To idealna propozycja dla osób szukających komfortu, prywatności i zielonej przestrzeni w spokojnej części miasta.
Mieszkanie ogrzewane jest nowym dwufunkcyjnym piecem kondensacyjnym, a wszystkie instalacje znajdują się w bardzo dobrym stanie. Dostępny jest również światłowód, co gwarantuje szybki i stabilny internet.
Wnętrze składa się z przestronnego pokoju dziennego z częściowo zabudowanym aneksem kuchennym oraz wyjściem do ogrodzonego, zagospodarowanego ogródka o powierzchni 19 m² (z odrębną księgą wieczystą, niezwiązanego ze wspólnotą).
Okolica wyróżnia się ciszą, spokojem i kameralnym sąsiedztwem. Lokalizacja zapewnia doskonałą komunikację – jedynie 3 minuty pieszo do przystanku autobusowego, z którego autobusy kursują bardzo często (co 5 minut w godzinach szczytu, co 10–15 minut poza nimi).
Atuty: prywatny ogródek 19 m², kameralny budynek – tylko 3 mieszkania, nowoczesne i tanie ogrzewanie i bdb stan instalacji, dostęp do światłowodu, świetna komunikacja z centrum miasta.
Czynsz miesięczny tylko 200 PLN.
Pośrednicy wykluczeni.
For Sale: 32.20 m² Apartment with Private Garden in Kliny-Zacisze
I offer a 32.20 m² apartment located on the ground floor of an intimate, three-unit terraced building. This is an ideal choice for those seeking comfort, privacy, and a touch of greenery in a peaceful part of the city.
The apartment is equipped with a new dual-function condensing boiler, and all installations are in excellent condition. Fiber-optic internet is also available, ensuring fast and reliable connectivity.
The interior consists of a spacious living room with a partially fitted kitchenette and direct access to a fenced, well-maintained private garden of 19 m² (with a separate land and mortgage register, not part of the housing community).
The area is quiet and serene, with a small and friendly neighborhood. The location offers excellent transport connections – only a 3-minute walk to the bus stop, with very frequent service (every 5 minutes during peak hours, every 10–15 minutes off-peak).
Key features:
private 19 m² garden, intimate building with only 3 apartments, modern heating system and excellent technical condition, fiber-optic internet available, great connectivity to the city center.
Very low monthly maintenance fee – only 200 PLN.
No agents, please.
ID: 1025336997
xxx xxx xxx
Dodane 13 października 2025
Mieszkanie z własnym ogródkiem na os. Kliny Zacisze. Polski/English
590 000 zł
Lokalizacja
Kraków, Łagiewniki-Borek Fałęcki
Małopolskie