Prywatne
Cena za m²: 7129.63 zł/m²
Poziom: Parter
Umeblowane: Nie
Rynek: Pierwotny
Rodzaj zabudowy: Pozostałe
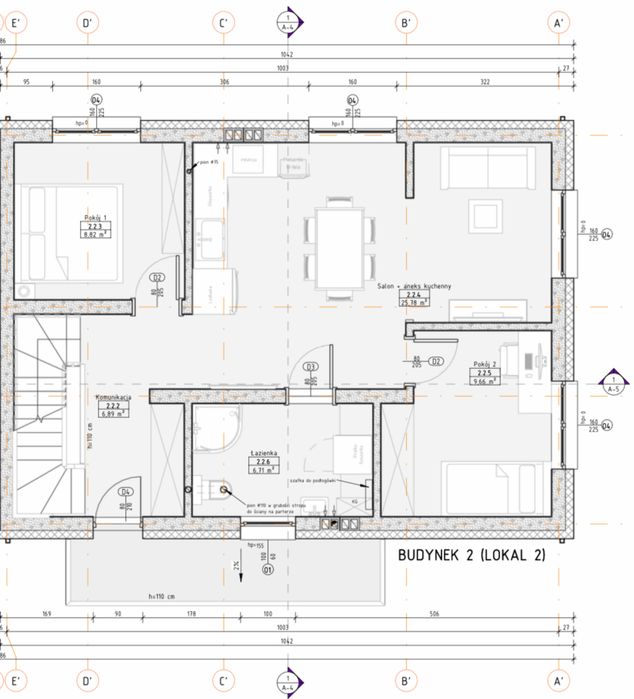
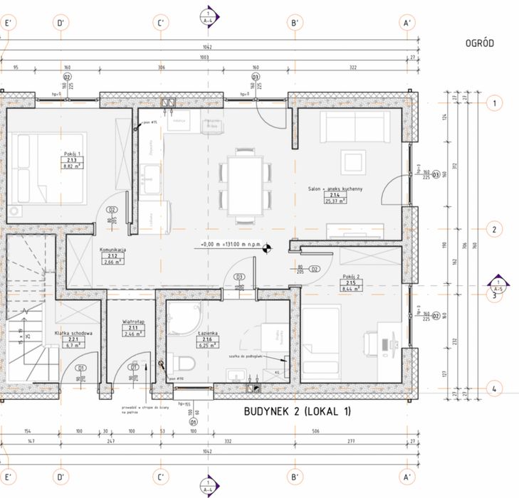
Powierzchnia: 54 m²
Liczba pokoi: 4 i więcej
Opis
Mieszkanie na parterze i piętrze ma tę samą cenę - adaptacja poddasza użytkowego po stronie kupującego.
Transakcja zabezpieczona zgodnie z Ustawą z dnia 16 września 2011r. o ochronie praw nabywcy lokalu mieszkalnego lub domu jednorodzinnego.
VIVID Development s.c. posiada na sprzedaż 8 nowych mieszkań w stanie deweloperskim z przynależnymi ogródkami i dwoma miejscami parkingowymi zlokalizowanych na kameralnym, cichym i dającym poczucie swobody osiedlu pod lokalizacją: 89-650 Czersk, ul. Łubianka.
Mieszkania są bardzo funkcjonalne mogą być urządzone jako trzy lub cztero pokojowe, a jeżeli wykorzystamy poddasze to mieszkanie na piętrze może liczyć nawet pięć pokoi, ponieważ czekają na Państwa przestronne wnętrza o wysokim standardzie.
Do mieszkania przynależy duży, prywatny ogród oraz dwa miejsce postojowe.
Apartament gwarantuje niezależność. Charakteryzuje się bardzo mały kosztami eksploatacyjnymi, dzięki zastosowaniu prywatnego i podłączonego do własnego licznika kotła gazowego oraz ogrzewania podłogowego, 6-cio komorowych, trójszybowych okien montowanych w systemie ciepłym (taśmy izolacyjne) oraz ocieplenia budynku styropianem o niskim współczynniku przenikania ciepła.
Mieszkania BEZCZYNSZOWE.
Kondygnacja: PARTER
Powierzchnia: 54 m2
Liczba pokoi: 3-4
Ogród: około 100 m2
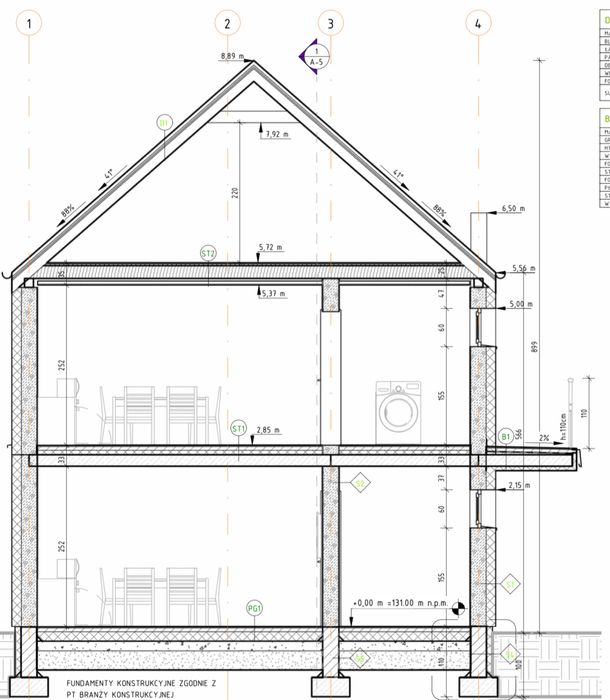
Kondygnacja: PIĘTRO
Powierzchnia: 64 m2 + poddasze 54 m2
Liczba pokoi: 3-4-5-6
Ogród: około 100 m2
Mieszkania zostały tak zaprojektowany, aby była możliwość wydzielenia dodatkowego pokoju dla małego dziecka lub gabinetu dla osoby pracującej w domu.
DOSTĘPNOŚĆ: II kwartał 2025
Wbicie łopaty: I kwartał 2025
Kupujący nie płaci podatku PCC 2%
Transakcja zabezpieczona zgodnie z Ustawą z dnia 16 września 2011r. o ochronie praw nabywcy lokalu mieszkalnego lub domu jednorodzinnego.
VIVID Development s.c. posiada na sprzedaż 8 nowych mieszkań w stanie deweloperskim z przynależnymi ogródkami i dwoma miejscami parkingowymi zlokalizowanych na kameralnym, cichym i dającym poczucie swobody osiedlu pod lokalizacją: 89-650 Czersk, ul. Łubianka.
Mieszkania są bardzo funkcjonalne mogą być urządzone jako trzy lub cztero pokojowe, a jeżeli wykorzystamy poddasze to mieszkanie na piętrze może liczyć nawet pięć pokoi, ponieważ czekają na Państwa przestronne wnętrza o wysokim standardzie.
Do mieszkania przynależy duży, prywatny ogród oraz dwa miejsce postojowe.
Apartament gwarantuje niezależność. Charakteryzuje się bardzo mały kosztami eksploatacyjnymi, dzięki zastosowaniu prywatnego i podłączonego do własnego licznika kotła gazowego oraz ogrzewania podłogowego, 6-cio komorowych, trójszybowych okien montowanych w systemie ciepłym (taśmy izolacyjne) oraz ocieplenia budynku styropianem o niskim współczynniku przenikania ciepła.
Mieszkania BEZCZYNSZOWE.
Kondygnacja: PARTER
Powierzchnia: 54 m2
Liczba pokoi: 3-4
Ogród: około 100 m2
Kondygnacja: PIĘTRO
Powierzchnia: 64 m2 + poddasze 54 m2
Liczba pokoi: 3-4-5-6
Ogród: około 100 m2
Mieszkania zostały tak zaprojektowany, aby była możliwość wydzielenia dodatkowego pokoju dla małego dziecka lub gabinetu dla osoby pracującej w domu.
DOSTĘPNOŚĆ: II kwartał 2025
Wbicie łopaty: I kwartał 2025
Kupujący nie płaci podatku PCC 2%
ID: 925106943
xxx xxx xxx
Dodane 15 września 2025
Mieszkanie z ogródkiem*Bezczynszowe*5 minut do centrum*Cisza*Spokój !!
385 000 zł
do negocjacji
Lokalizacja
Czersk
Pomorskie